Cano住宅 | Fran Silvestre Arquitectos | 2025 | 西班牙



该项目的构思遵循功能逻辑,并沿阿利坎特(Alicante)的一条主干道布局。住宅划分为三个清晰的区域:夜间区域、日间区域,以及用于训练和体育活动的空间。


▽鸟瞰© Jesús Orrico

vsszan207359091445581.jpg
vsszan207359091445582.jpg

▽半鸟瞰© Jesús Orrico

vsszan207359091445583.jpg

▽外观概览© Jesús Orrico

vsszan207359091445584.jpg

▽顶视图© Jesús Orrico

vsszan207359091445585.jpg
vsszan207359091445586.jpg



建筑沿地块的西侧布置。这样的布局拓展了与客厅相关的室外空间,加强了与花园和泳池的联系。同时,这种布置保留了现有的大型树木,并辅以新植树木,以期在未来形成更为密集的花园。主入口位于东侧一条较为宁静的街道上,从而增强了住宅的私密性。


▽草图© FRAN SILVESTRE ARQUITECTOS

vsszan207359091445587.jpg

▽花园一侧视角© Jesús Orrico

vsszan207359091445588.jpg

▽露台© Jesús Orrico

vsszan207359091445589.jpg

▽近景© Jesús Orrico

vsszan2073590914455810.jpg
vsszan2073590914455811.jpg

▽简洁的建筑体量© Jesús Orrico

vsszan2073590914455812.jpg



在日间区域与体育区域之间,安排了一个近乎南北向的过渡空间,既起到连接作用,也促进了交叉通风。设计的基本前提之一是将夜间区域朝东布置,确保与晨光的直接联系。


▽泳池© Jesús Orrico

vsszan2073590914455813.jpg

▽泳池近景© Jesús Orrico

vsszan2073590914455814.jpg



主空间追求更高的净高。体量通过两个较低的体块构成,中间嵌入一个较大的主体体块。该体块对应客厅区域,略微抬升,强调其存在感,并赋予建筑整体独特的身份感;其深邃的边缘进一步强化了这一特性,使体量仿佛悬浮在其所覆盖的空间之上。


▽模糊的室内外界限© Jesús Orrico

vsszan2073590914455815.jpg

▽近景© Jesús Orrico

vsszan2073590914455816.jpg
vsszan2073590914455817.jpg

▽细部© Jesús Orrico

vsszan2073590914455818.jpg
vsszan2073590914455819.jpg



该体块的厚度允许整合深度结构体系,使主空间可以在无中间支撑的情况下跨越整个宽度。因此,日间区域被设计为一个连续的环境,与外部铺装和水面直接相连,模糊了内外界限,强化了住宅的开放特性。


▽细部© Jesús Orrico

vsszan2073590914455820.jpg
vsszan2073590914455821.jpg



室内材料采用连续而温暖的色彩体系。一些垂直表面和家具元素选用橡木,赋予整体纹理和空间层次感。这一设计决定,加上照明的色温选择,为住宅赋予了理想的居家氛围。


▽室内材料采用连续而温暖的色彩体系© Jesús Orrico

vsszan2073590914455822.jpg

▽开敞的生活空间© Jesús Orrico

vsszan2073590914455823.jpg
vsszan2073590914455824.jpg

▽餐厅© Jesús Orrico

vsszan2073590914455825.jpg

▽厨房餐厅© Jesús Orrico

vsszan2073590914455826.jpg

▽由吧台看餐厅与厨房© Jesús Orrico

vsszan2073590914455827.jpg

▽室内外界限© Jesús Orrico

vsszan2073590914455828.jpg

▽视线通廊© Jesús Orrico

vsszan2073590914455829.jpg

▽走廊© Jesús Orrico

vsszan2073590914455830.jpg
vsszan2073590914455831.jpg

▽卧室© Jesús Orrico

vsszan2073590914455832.jpg



最终,这是一座从场地与功能中自然生长出的建筑——一个看似简单、却在现实中复杂实现的设计。


▽夜景© Jesús Orrico

vsszan2073590914455833.jpg
vsszan2073590914455834.jpg

▽夜景细部© Jesús Orrico

vsszan2073590914455835.jpg
vsszan2073590914455836.jpg

▽模型© FRAN SILVESTRE ARQUITECTOS

vsszan2073590914455837.jpg

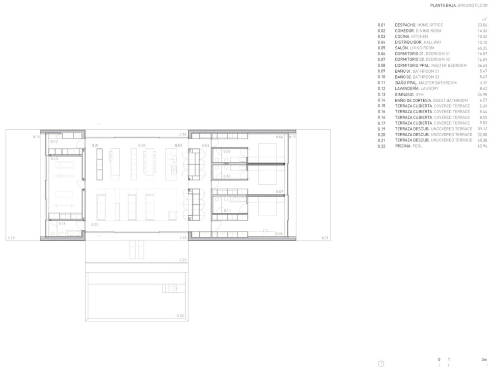
▽平面图© FRAN SILVESTRE ARQUITECTOS

vsszan2073590914455838.jpg

▽立面图© FRAN SILVESTRE ARQUITECTOS

vsszan2073590914455839.jpg

▽剖面图© FRAN SILVESTRE ARQUITECTOS

vsszan2073590914455840.jpg
vsszan2073590914455841.jpg
vsszan2073590914455842.jpg
vsszan2073590914455843.jpg
vsszan2073590914455844.jpg
vsszan2073590914455845.jpg
vsszan2073590914455846.jpg
vsszan2073590914455847.jpg


Screenshot
CANO HOUSE
ALICANTE, COMUNIDAD VALENCIANA
ARCHITECTURE: FRAN SILVESTRE ARQUITECTOS
PROJECT TEAM: Fran Silvestre / Project Architect
Carlos Lucas: Project Architect
INTERIOR DESIGN: ALFARO HOFMANN
DEVELOPER: Gaspar Sánchez Cano
TECHNICAL ARCHITECTS: Enrique Alario Catalá
STRUCTURAL ENGINEER: Windmill Structural Consultants
FOTOGRAFÍA: Jesús Orrico
VÍDEO: Jesús Orrico
CONSTRUCTOR: BUES SIMON GROUP
COLABORADORES: María Masià / Collaborating Architect
Pablo Camarasa / Collaborating Architect
Ricardo Candela / Collaborating Architect
Estefania Soriano / Collaborating Architect
Sevak Asatrián / Collaborating Architect
Susana León / Collaborating Architect
Javi Herrero / Collaborating Architect
Facundo Castro / Collaborating Architect
Anna Alfanjarín / Collaborating Architect
Laura Bueno / Collaborating Architect
Toni Cremades / Collaborating Interior Designer
Susana León / Collaborating Architect
David Cirocchi / Collaborating Architect
Neus Roso / Collaborating Architect
Nuria Doménech / Collaborating Architect
Andrea Raga / Collaborating Architect
Olga Martín / Collaborating Architect
Víctor González / Collaborating Architect
Pepe Llop / Collaborating Architect
Alberto Bianchi / Collaborating Architect
Andrea Blasco / Collaborating Interior Designer
Laura Palacio / Collaborating Architect
Carlos Perez / Collaborating Architect
Jovita Cortijo / Collaborating Architect
Claudia Escorcia / Collaborating Architect
Diana Murcia / Collaborating Architect
Olga Fernández / Collaborating Interior Designer
Daniel Fenollosa / Collaborating Architect
Andrés Jiménez/ Collaborating Architect
Álvaro Navarro / Collaborating Architect
Diana Chilingaryan / Collaborating Architect
Maria Barberá / Collaborating Architect
Roberto Marañón / Collaborating Architect
Martina Tomás / Collaborating Interior Designer
Paco Chinesta / Collaborating Architect
Ana de Pablo / Director of Finance and Administration
Sara Atienza / Director of Marketing and PR
Valeria Fernandini / Finance Department
José María Ibañez / Business developer CCG and México
LOCATION: Alicante
CONSTRUCTION YEARS: 2024 – 2025
BUILT AREA: 312,22 m²
PLOT AREA: 1.251,00 m²
PROJECT TYPOLOGY: Vivienda Unifamiliar Aislada
SPECIFICATIONS
SYSTEMS: Climate control
Underfloor heating, ducted air conditioning, and domestic hot water production via aerothermal system. 
Mechanical ventilation.  
Switches: JUNG
Interior lighting: Recessed ceiling coves. Linear LED luminaires.
Exterior lighting: Linear LED luminaires
FINISHES
Interior flooring: Living Ceramics
Exterior flooring: Living Ceramics
Wall finishes.
Solid Surface. Panelados lacados/laminados de madera y placa de yeso laminada.
Blinds Tecnicolor.
CARPENTRY AND METALWORK.
\\Interior carpentry: Custom-made by carpenter
Interior doors: Custom-made by carpenter
Exterior carpentry: IMG Windows
BATHROOMS
Sanitaryware: INSPIRA ROUND “ROCA”
Cabinetry: Custom-made furniture

AI文本分析中……
AI色彩命名中……

暂时没有评论,你回一个呗!~

您需要登录后才可以回帖 登录 | 注册序赞号

快速回复 返回顶部 返回列表