栩屿 | 宏福樘设计 | 2026 | 中国四川
vsszan207530140028491.gif
vsszan207530140028492.png
vsszan207530140028493.png
vsszan207530140028494.gif
vsszan207530140028495.png
vsszan207530140028496.png
vsszan207530140028497.png
vsszan207530140028498.gif



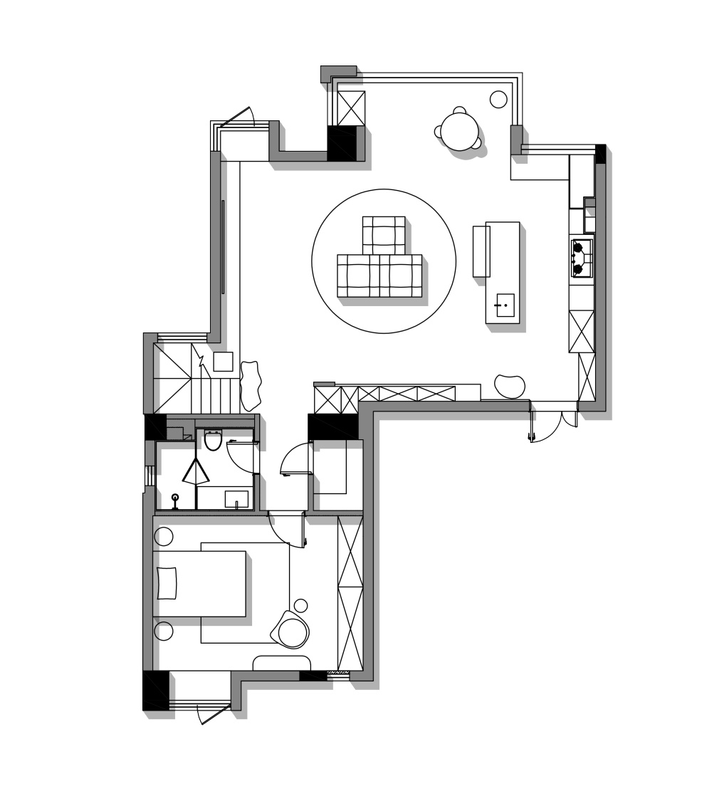
原始格局中,玄关与厨房动线交叠,狭促的空间被功能重叠所困。设计以释放墙体为起点,让入户区域重获呼吸的自由。右侧一组鞋柜搭配局部镜面,以反射延展视觉的纵深。左侧沿墙铺展的挂放区与悬浮柜体一气呵成,从玄关延绵至客厅,以原木的温润串联起功能与形式。至此,原本局促的入口,在材质的包裹与体块的悬挑中,化为归家时第一道舒展的序章。


vsszan207530140028499.png
vsszan2075301400284910.png
vsszan2075301400284911.png
vsszan2075301400284912.gif



原始封闭厨房被全然释放,通透敞亮的空间里,微水泥以纯净之姿覆裹墙与顶,化作容纳生活的画布。米色柜体铺陈出统一的视觉秩序,局部嵌入的洞石以天然肌理呼应侘寂的残缺之美,耐磨的本质在硬朗中沉淀质朴烟火气,与温润木材形成自然材质的无声对话。
中央岛台以几何块体的形态矗立于空间中心,将原本单一的操作区域梳理出环形的洄游动线,让烹饪不再是一个人的忙碌,而成为家人间擦肩时的轻声交谈。延伸出的台面不仅承载着备餐的功能,更以吧台的姿态邀人落座,它打破厨房与生活的边界,让料理的琐碎升华为日常的仪式。


vsszan2075301400284913.png
vsszan2075301400284914.png
vsszan2075301400284915.png



未循常规,将纳入的景观阳台顺势打造为餐厅,与吧台、厨房紧邻相依,让备餐与用餐的交互在方寸间自然流淌。
落座窗前,明朗通透的视野将风景邀入席间,纱帘柔化天光,将直射化为漫射的温柔。布艺的触感悄然渗入,为空间褪去硬质材质的清冷,织就一室舒软。洞石圆桌以天然肌理沉淀质朴的温度,四周错落着中古餐椅,形态各异的椅背与线条围合出松弛日常。


vsszan2075301400284916.png
vsszan2075301400284917.png
vsszan2075301400284918.png
vsszan2075301400284919.png
vsszan2075301400284920.png
vsszan2075301400284921.png



原始客厅面积极尽局促,拆除紧邻的卧室墙体后,空间得以全然释放。真皮块状沙发以围合的姿态落于中央,坐卧之间,视线与动线自由穿梭于客厅与餐厨之间,多元的生活场景在此悄然生长。
顶部不可拆除的梁体被木材温柔包裹,以拱形之姿消解结构的生硬。木材立面上墙,延展至窗台形成自然的包裹,再顺势衍生为悬浮的电视台面,整个视觉关系被这一脉温润的木质统一成和谐的序章。空间中,台灯与落地灯投下柔和的光晕,艺术油画在墙面静默对话,灵活的边几随需求而移动,让每一个角落都成为可停留的风景。


vsszan2075301400284922.png
vsszan2075301400284923.png
vsszan2075301400284924.png
vsszan2075301400284925.png
vsszan2075301400284926.gif



楼梯的重塑始于电视墙悬浮柜延伸而出的台面,第一级踏步以整块洞石铺就,天然的残缺肌理在悬挑处落下轻盈的起点。随后的木质踏步逐级而上,悬浮的结构让光线与视线自由穿行。
艺术涂料以自然的肌理覆裹墙面,为空间沉淀下温润的底色。楼梯下方的空余处置一隅端景,植物在缝隙间伸展姿态。对角处的镂空设计嵌入悬浮柜,光影在层板间游移,将步步有景的意趣悄然织入每一次抬阶而上的日常。


vsszan2075301400284927.gif
vsszan2075301400284928.png
vsszan2075301400284929.png
vsszan2075301400284930.png
vsszan2075301400284931.png
vsszan2075301400284932.png
vsszan2075301400284933.png
vsszan2075301400284934.gif



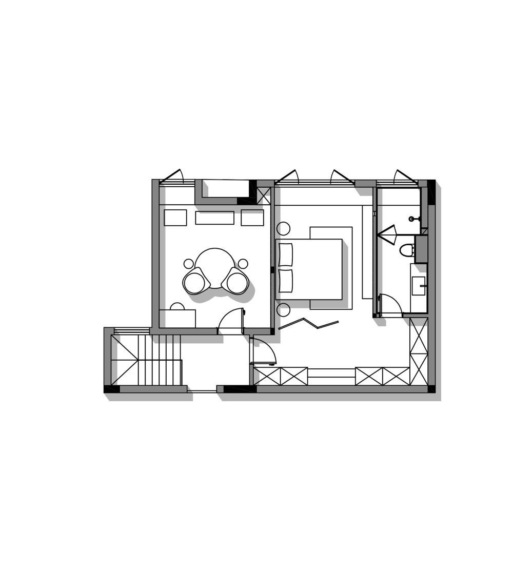
二楼主卧充分利用5800mm层高进行挑高搭建,在睡眠区之上置入一处独立的阅读区,让原本单一功能的卧室蜕变为拥有阁楼造型、衣帽间、卫浴的复合场域。
阁楼式的屋顶以斜面勾勒出自然的韵律,将休憩空间安然包裹。原始独立衣帽间拆除,L型步入式柜体沿墙直通,其中一部分根据夫妻日常需求置入小型西厨,嵌入冰箱与饮水设施,让休憩时刻的取用需求被纳入私密的尺度之内。大面积留白覆裹墙面与柜体,为空间注入透气与舒展。局部穿插富有天然肌理的洞石、木材,在功能与形式之间沉淀下温润的质感。


vsszan2075301400284935.png
vsszan2075301400284936.gif



主卧卫生间的氛围延续着空间整体的温润基调,仿洞石瓷砖以其天然的肌理铺陈于地面与立面,将空间包裹成一处静谧场域。浴缸的嵌入打破单一的功能逻辑,在实用之外预留出沉浸与放松的姿态。通顶玻璃隔断以极简的线条将干湿区域分离,却在完全通透中维系着视觉的统一。


vsszan2075301400284937.png
vsszan2075301400284938.png



与主卧的静谧相连,阁楼阅读区以滑动轨道楼梯作为媒介,开启垂直维度的对话。局部弧形造型,柔化空间转折,让视线在曲度中自然过渡。搭建层无自然采光,通过玻璃扶手消解封闭感,让光与影在通透的界面间游移。内部以木材通体定制,地板与柜体延续着同一脉温润的肌理,植物绿意点缀,在书本与休憩之间织入自然的呼吸。


vsszan2075301400284939.png
vsszan2075301400284940.png
vsszan2075301400284941.png
vsszan2075301400284942.png
vsszan2075301400284943.png
vsszan2075301400284944.png
vsszan2075301400284945.png
vsszan2075301400284946.png
vsszan2075301400284947.png



设计师 Designer :陈粒、吴毅杰
主编 Chief editor :san
视频 Video :大方
平面 Graphic designer :珺珺


    • 转自:宏福樘设计
    • 图片©宏福樘设计
    • 编辑:序赞网
    • 阅读原文
    AI文本分析中……
    AI色彩命名中……
    95qabc2026-3-20 19:57:29
    谢谢分享!!!谢谢分享!
    您需要登录后才可以回帖 登录 | 注册序赞号

    快速回复 返回顶部 返回列表