(王一户型改造299期)680㎡独栋别墅三版方案分享!
论坛封面-模板.jpg


原始结构图

66-Model.jpg


别的公司出的方案

未标题-1.jpg


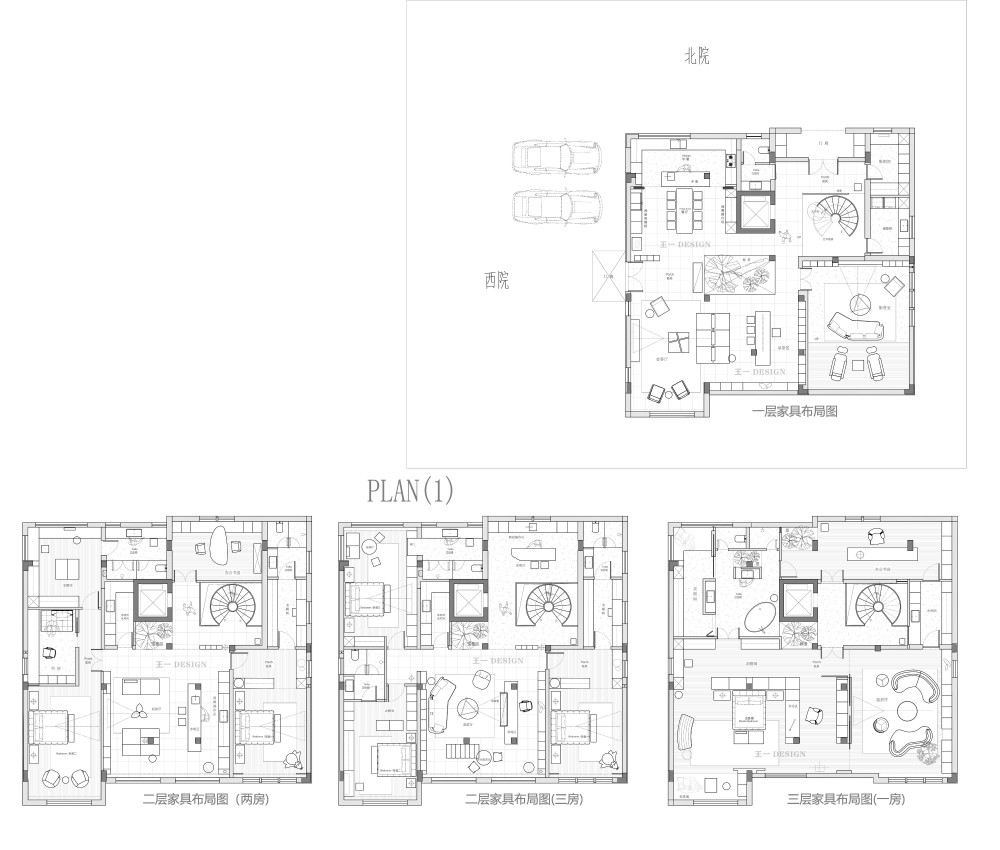
改造后的方案一

方案一.jpg


改造后的方案二

方案二.jpg


改造后的方案三

方案三.jpg


有温度的设计,遇见有爱的人!
对本案感兴趣的小伙伴们可以进我主页,关注微信公众号,有本案深度解析文章!
本文以及方案均为王一原创 禁止转载 分享至其他平台

无偿带徒计划已启动(纯公益),只要你认真好学我带你飞!

微信图片_20250219164936.png
AI文本分析中……
AI色彩命名中……
95qabc2026-4-9 17:30:06

谢谢分享!!!谢谢分享!
您需要登录后才可以回帖 登录 | 注册序赞号

快速回复 返回顶部 返回列表