中海·玖昌源邸 | DAS大森设计 | 2025 | 中国山东



项目落址于济南,极萃半壁人文精华资源,以东方礼序与雅奢之境为美学基因,根植地域文脉、建筑形式与人文传承,将齐鲁大地的金石气象与泉水的温润灵动,转化为一场当代雅者的审美雅集与心灵归栖。


vsszan207603180805451.png
vsszan207603180805452.png
vsszan207603180805453.png



作为归家与迎宾的首重礼制,空间摒弃繁冗,以沉稳之态定调东方门第。步履所及,几盏云石灯点缀其间,步步生辉。于此观览万象,尽显超然物外的专属礼仪。


vsszan207603180805454.png



沙盘空间以铜栅漏影为序,深邃墙面金箔入画,描摹东方花鸟之雅。星盘托城的双层沙盘错落而立:上方托举建筑绿意,下方长案铺陈城市宏图。于此驻足,方寸揽境,在沉稳奢隐的东方气场中,静阅一城的繁华与未来。


vsszan207603180805455.png
vsszan207603180805456.png
vsszan207603180805457.png
vsszan207603180805458.png



方寸叠穹,中正有序。设计师以金属与木作层层嵌套,勾勒出极具秩序感的几何背景,深灰硬包铺陈沉稳,将空间的对称之美与门第礼序推向极致。


vsszan207603180805459.png
vsszan2076031808054510.png
vsszan2076031808054511.png



浅米地毯的温润之上,环形云石吊灯如满月悬明,深黑大理石以金线穿引,犹如墨玉描金般定格视觉中心;古铜色穹顶向下合围,尽显迎宾的克制与从容。


vsszan2076031808054512.png



光影流转间,尽揽东方奢隐的从容;听几句知己低语,悦享圈层相聚的无尽余欢。


vsszan2076031808054513.gif
vsszan2076031808054514.png



多层水晶吊灯如星河悬瀑,洒落璀璨微芒;深棕圆桌与米白软包餐椅相对而立温润围合,沉稳中透着素雅。


vsszan2076031808054515.png
vsszan2076031808054516.png
vsszan2076031808054517.gif
vsszan2076031808054518.png
vsszan2076031808054519.png



健身与瑜伽室以洗练的线条内蕴张力,将庭院绿意无界引入,光影交错间力量与宁静在此和解。呼吸吐纳皆与自然同频,尽享隐奢生活的悠然自在。
礼序东方,境入超然。在齐鲁文脉的深厚基底上,借金石立骨,以泉水传神。旨在繁华深处,为当代雅者筑起一方万象包罗的东方美学居境。

vsszan2076031808054520.png

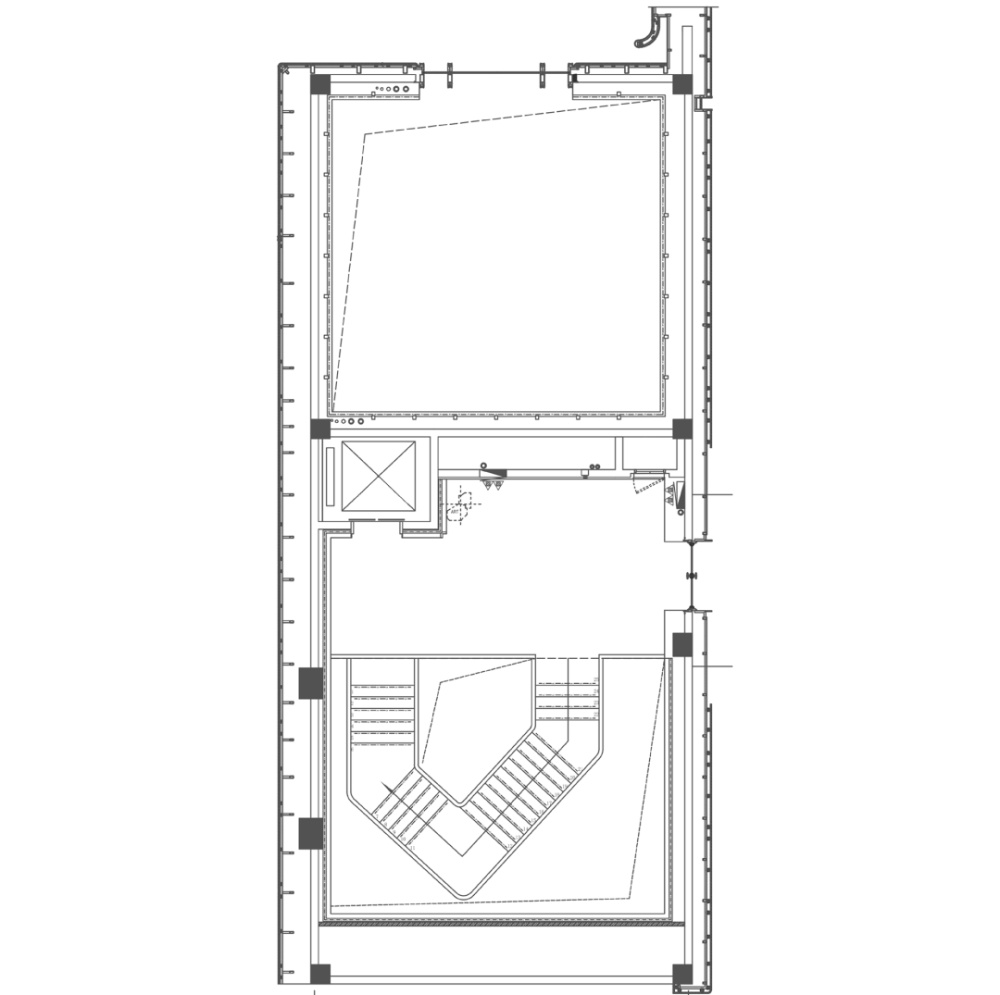
首层平面图

vsszan2076031808054521.png

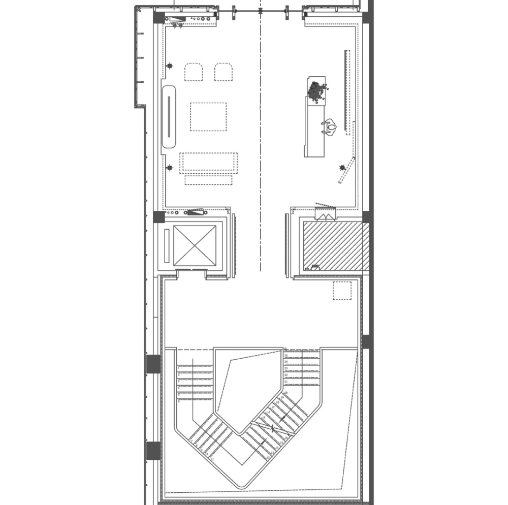
二层平面图



项目名称丨中海·玖昌源邸
项目地址丨山东·济南
业主团队丨张国梁、刘明辉、刘屾、高威涛、王鑫、梁超、王旭明、刘爱珉、徐梁杰
硬装设计丨ONE-CU壹方设计
软装设计丨DAS大森设计
完工时间丨2025年12月
项目面积丨2986㎡
项目摄影丨覃昭量
视频团队丨边界摄影


    • 转自:内外之间
    • 图片©DAS大森设计
    • 编辑:序赞网
    • 阅读原文
    AI文本分析中……
    AI色彩命名中……
    工具箱2026-3-18 10:13:30
    感谢楼主辛苦分享
    syhgdesign2026-3-19 00:31:15
    感谢楼主辛苦分享
    您需要登录后才可以回帖 登录 | 注册序赞号

    快速回复 返回顶部 返回列表