光叙留域 | 新澄设计 | 2026 | 中国台湾
vsszan123228250022421.jpg
vsszan123228250022422.jpg



在比例、光影与留白的整体控制下,居所被转化为一条具有节奏的生活轴线,使空间不仅承载机能,更成为情绪沉淀与时间流动的感知场域。


vsszan123228250022423.jpg
vsszan123228250022424.jpg



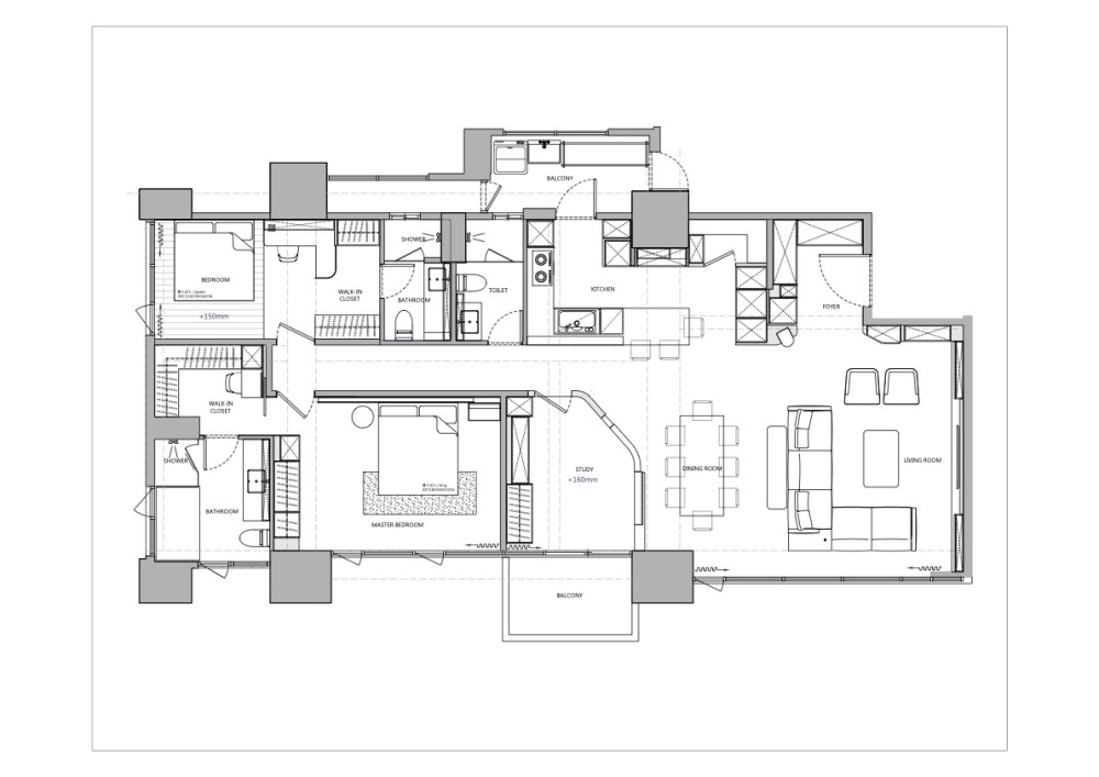
本案为一处42坪住宅空间,原始格局以多房配置为主,公共领域受走道与隔间切割而显得零碎局促,生活动线亦缺乏连续性。设计以「光作为空间媒介」为核心思考,透过格局减法与机能整合,重新建立由玄关延展至餐厨与客厅的生活序列,使行走、停留与交流在柔和光影之中自然展开。


vsszan123228250022425.jpg
vsszan123228250022426.jpg



公共场域采开放式布局,整合客厅、餐厅与厨房机能,以中岛与家具量体形成柔性界定,使空间维持视觉通透与尺度延伸。电视主墙导入可滑动设计,使墙体由静态分隔转化为具有时间性的空间介面,在开阖之间整合收纳、展示与场域转换,让生活模式随需求而产生变化。


vsszan123228250022427.jpg
vsszan123228250022428.jpg



私领域重新规划为双套房与多功能书房配置,使各自形成完整的生活单元,提升居住隐私与使用效率。原本封闭而狭长的走廊被转化为开放流动的过渡界面,使自然光得以深入室内,并沿着立面与天花的圆弧边界缓慢扩散,形塑柔和且安定的空间氛围。


vsszan123228250022429.jpg
vsszan1232282500224210.jpg



整体设计以低彩度材质为基底,透过石纹立面、木质纹理与间接照明的层层堆叠,建立细腻而克制的空间秩序。在比例、光影与留白的整体控制下,居所被转化为一条具有节奏的生活轴线,使空间不仅承载机能,更成为情绪沉淀与时间流动的感知场域。


vsszan1232282500224211.jpg
vsszan1232282500224212.jpg
vsszan1232282500224213.jpg
vsszan1232282500224214.jpg
vsszan1232282500224215.jpg
vsszan1232282500224216.jpg
vsszan1232282500224217.jpg
vsszan1232282500224218.jpg
vsszan1232282500224219.jpg
vsszan1232282500224220.jpg
    • 转自:新澄设计
    • 图片©新澄设计
    • 编辑:序赞网
    • 阅读原文
    AI文本分析中……
    AI色彩命名中……
    syhgdesign2026-3-27 01:18:51
    感谢楼主辛苦分享
    95qabc2026-3-29 00:39:39
    谢谢分享!!!谢谢分享!
    您需要登录后才可以回帖 登录 | 注册序赞号

    快速回复 返回顶部 返回列表