(王一户型改造300期)3600㎡合院别墅两版方案分享!
论坛封面-模板.jpg


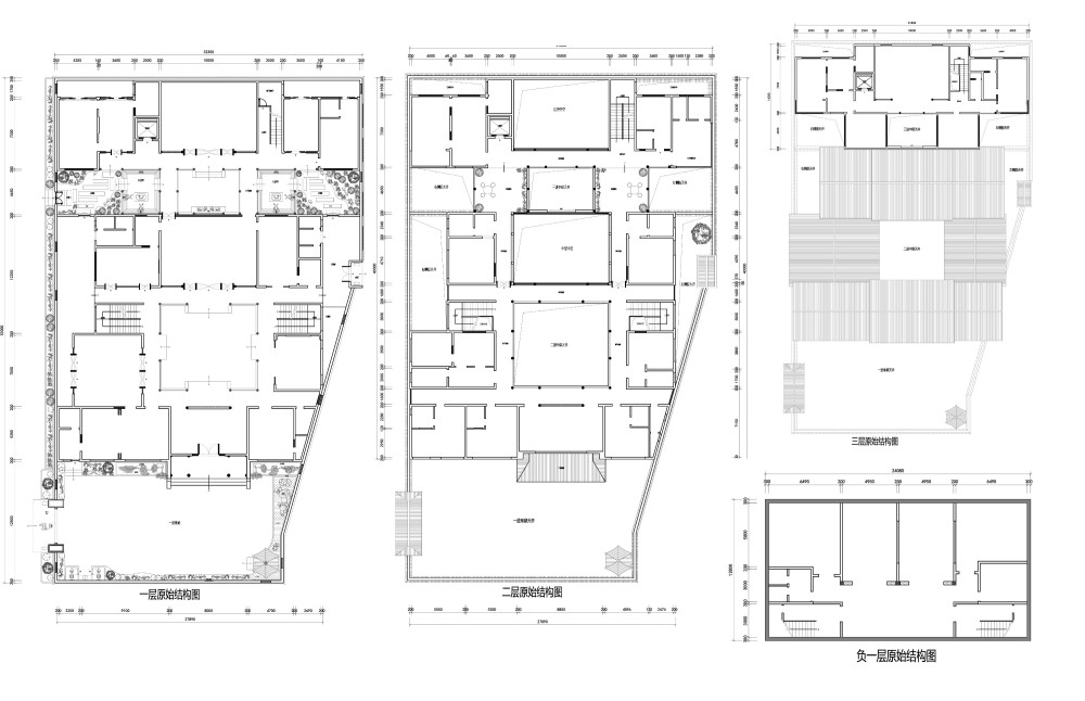
原始结构图


未标题-1.jpg

改造后的方案一
(负一层/一层布局)


方案一(0).jpg
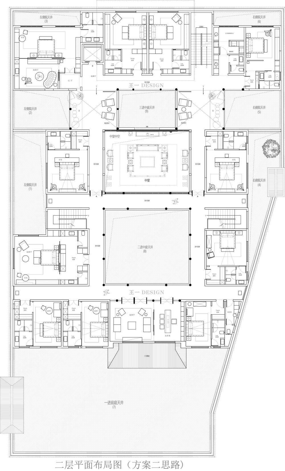
方案二(2).jpg


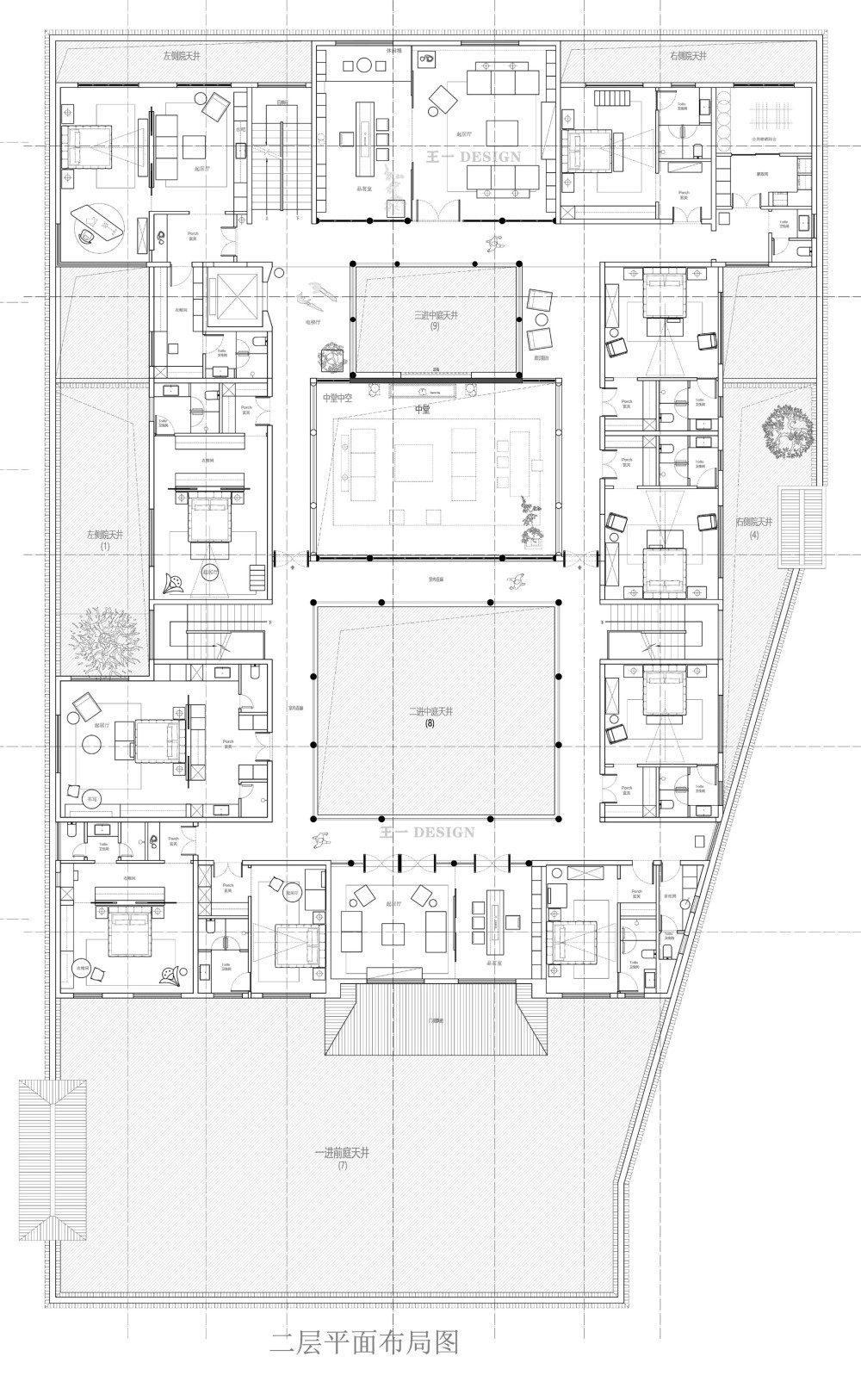
(二层布局)



方案一(2-1).jpg
方案一(2-2).jpg


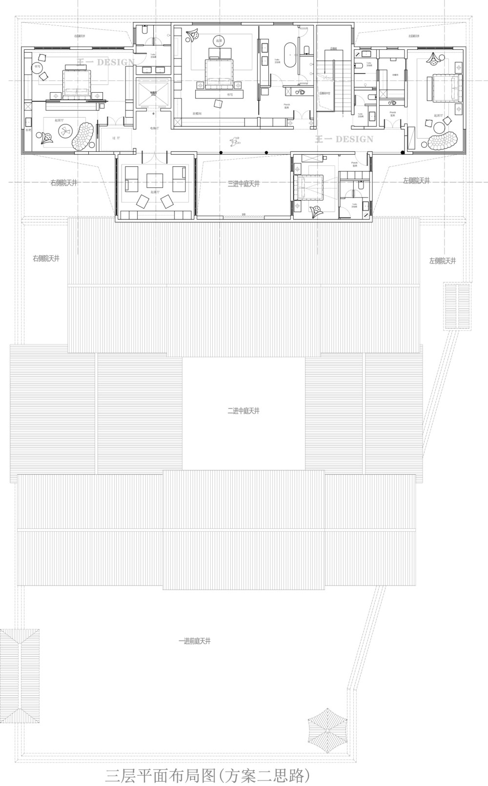
(三层布局)



方案一(3-1).jpg
方案一(3-2).jpg


改造后的方案二

方案二1.jpg
方案二(3).jpg
微信图片_20260329170800_2192_2.jpg

有温度的设计,遇见有爱的人!
对本案感兴趣的小伙伴们可以进我主页,关注微信公众号,有本案深度解析文章!
本文以及方案均为王一原创 禁止转载 分享至其他平台

无偿带徒计划已启动(纯公益),只要你认真好学我带你飞
微信图片_20250219164936.png
(王一户型改造300期)3600㎡合院别墅两版方案分享!_方案一(1-1).jpg
AI文本分析中……
AI色彩命名中……
95qabc2026-4-9 17:31:43

谢谢分享!!!谢谢分享!
您需要登录后才可以回帖 登录 | 注册序赞号

快速回复 返回顶部 返回列表