阳光下的包豪斯 | 菲拉设计 | 2026 | 中国浙江
vsszan207881010021491.png



F L Y  ¢  D E S I G N
# 阳光下的包豪斯 #
在时代美学与审美浪潮的汹涌更迭间,不求大同、向内悦己,他们期待自己的家可以不拘一格,有着独属的生活节奏。 中古包豪斯下生活气息如诗般弥漫,看似繁杂拥塞,实则暗合生活的韵律——乱中藏序。四季的阳光宛如灵动的舞者,掠过窗台、沙发与墙壁,光影流转,满载生活的诗意,缓缓驶向心灵的宁静港湾。


vsszan207881010021492.png
玄关 / Porch
vsszan207881010021493.png
玄关 / Porch
vsszan207881010021494.png
客厅 / Living Room
vsszan207881010021495.png
客厅 / Living Room


给足空间呼吸感,白色主调为纷繁有序的家定好纯粹底色,木色铺垫、蓝色点缀,灵动温馨的氛围之下,不锈钢材质的加入塑造其利落的力量感。墙面艺术漆特地还原他们在德国生活时期的家居墙面,故事的延续叙写与美感交融,家是承前启后的人生语句。


vsszan207881010021496.png
客厅 / Living Room
vsszan207881010021497.png
客厅 / Living Room
vsszan207881010021498.png
客厅 / Living Room
vsszan207881010021499.png
客厅 / Living Room


精装房格局不大动却在每一处都有微调,以微小的变动带来惊喜的收获。更改灰色地砖为木色地板,小体量的同色系家具与之呼应,木质的温润与不锈钢的冷冽理性中和,配合以不同体块、材质的穿插碰撞,错落有致满载生活的细语,小故事的拼图碎片串起生活的温柔全貌。


vsszan2078810100214910.png
客厅 / Living Room
vsszan2078810100214911.png
客厅 / Living Room
vsszan2078810100214912.png
客厅 / Living Room


自然之光的挥洒流动,与家居进行亲密抚触,居家时光自我放空、静静欣赏一场光与家的舞剧。阳光之下的中古包豪斯之家,温柔、浪漫亦是从容、心安,载着晨昏的低语,驶向永恒的岸。


vsszan2078810100214913.png
客厅 / Living Room
vsszan2078810100214914.png
餐厨区 / Dining Room & Kitchen
vsszan2078810100214915.png
餐厨区 / Dining Room & Kitchen
vsszan2078810100214916.png
餐厨区 / Dining Room & Kitchen


封闭式厨房调整为半开放式厨房,释放空间体感,在局限的体积下寻找新的配比为空间赋能。兼具橱柜与岛台的功能,增强餐厨之间的联系与实用性,岛台之上的可移动折叠窗,与右侧的口袋移门可形成一道完整屏障,将厨房与客餐厅独立开,确保油烟不外流。体感、美感与实用美学的完美配合,设计的魅力来自于贴近生活变幻的张力。


vsszan2078810100214917.png
餐厨区 / Dining Room & Kitchen
vsszan2078810100214918.png
餐厨区 / Dining Room & Kitchen
vsszan2078810100214919.png
餐厨区 / Dining Room & Kitchen
vsszan2078810100214920.png
过道 / Aisle
vsszan2078810100214921.png
书房 / Study


书房邻着过道的地方开拱形门洞,做嵌入式猫窝给猫猫安置新家,趣味性与实用性兼备。书房采用雾化玻璃与公区既有互动性又能保持其自身的私密性,不做大体量柜体,凭借不同形式的收纳柜、置物架有机组合,高收纳需求满足的同时书房仍有着灵活的可调度性。


vsszan2078810100214922.png
书房 / Study
vsszan2078810100214923.png
主卧 / Master Bedroom


卧室不做过度设计,精简的笔法呈现出的纯净温润归还睡眠应有的氛围。床尾满柜满足居者的高收纳需求之外,仍有充裕的空间可以拓展,在入户门位置,与床平行增设收纳空间,次净衣区与抽屉收纳,触及细节的温柔规划,居家松弛感与秩序感流淌着舒适宜居的理想生活状态。


vsszan2078810100214924.png
主卧 / Master Bedroom
vsszan2078810100214925.png
主卧 / Master Bedroom
vsszan2078810100214926.png
次卧 / Second Bedroom
vsszan2078810100214927.png
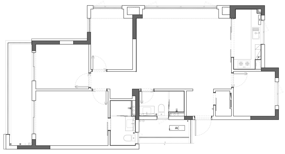
原始图
vsszan2078810100214928.png

平面图

·精装改造前后对比·





设计机构 / 菲拉设计
项目类型 / 精装改造
项目地址 / 浙江杭州·翠揽云境
户型 /  四室两厅
面积 / 126㎡


    • 转自:菲拉设计
    • 图片©菲拉设计
    • 编辑:序赞网
    • 阅读原文
    AI文本分析中……
    AI色彩命名中……

    暂时没有评论,你回一个呗!~

    您需要登录后才可以回帖 登录 | 注册序赞号

    快速回复 返回顶部 返回列表