海成 · 江帆郡会所 | 元禾大千 | 2025 | 中国重庆
vsszan207910020629082.png
vsszan207910020629083.png
vsszan207910020629084.png
vsszan207910020629085.png
vsszan207910020629086.png
vsszan207910020629087.png
vsszan207910020629088.png
vsszan207910020629089.png



接待大堂承袭此意向,将比例、光影与仪式感融入当代设计,平衡理性与浪漫。


vsszan2079100206290810.png



时光流转,音乐介质产生变化,我们用艺术回应凝固的永恒。金色号角奏响繁花乐章,绣球花瀑倾泻而下,构成了一幅极具视觉张力的画面,鸣响了关于生命与品质的礼赞。


vsszan2079100206290811.png
vsszan2079100206290812.png
vsszan2079100206290813.png



整体空间开阔通透,在宏大的交叉拱顶之下,隐藏的线性光奏响都会天际线的现代协奏曲。踏上黑白几何编织的仪式地面,感受空间的高挑与尊贵。


vsszan2079100206290814.png
vsszan2079100206290815.png
vsszan2079100206290816.png
vsszan2079100206290817.png
vsszan2079100206290818.png



水吧区以流线型体块与鎏金细节勾勒出一处轻盈而精致的停留场域。弧形吊顶与吧台的层叠处理,柔化了结构边界,也丰富了空间节奏。于此小酌、交谈、驻足,皆如一段缓缓展开的生活乐章。


vsszan2079100206290819.png
vsszan2079100206290820.png



艺术走廊影像展览以“重庆的水域”为主题,通过镜头捕捉和展示重庆这座城市独特而丰富的水资源景观及其与之相关的人文、生态等多方面内容。


vsszan2079100206290821.png
vsszan2079100206290822.png
vsszan2079100206290823.png
vsszan2079100206290824.png
vsszan2079100206290825.png
vsszan2079100206290826.png
vsszan2079100206290827.png



奏乐声起,舞台灯落,中央水晶钢琴静伫于光影的圆心,仿佛由整块剔透的乐章切割而成,引导观者进入花园音乐会。当音符尚未落下,晶体捕捉到的天光已在黑镜上,完成一场关于“虚与实”的视觉交响。


vsszan2079100206290828.png



羽翼衔金的守望者,在秩序森严的石柱序列中,定格了一个向上的梦境。穹顶一束微光倾泻而下,洗礼着每一个艺术细节。作为这座城市中心岛屿的精神隐喻:在滨江之畔,守候一份轻盈而纯粹的纯真。


vsszan2079100206290829.png
vsszan2079100206290830.png
vsszan2079100206290831.png
vsszan2079100206290832.png
vsszan2079100206290833.png



玻璃巨幕引景入室,将城市天际线化为流动背景。浅米色与暖棕交织出柔和基调,搭配织物与石材的细腻触感,营造出温润而松弛的交流氛围。


vsszan2079100206290834.png



经典印象派画与重庆当代艺术家,摄影艺术家,当代雕塑艺术家的作品并置对话,既致敬艺术,又深植在地文化,让国际化的海派格调与山城独有的江岸精神在此相遇、共舞。


vsszan2079100206290835.png
vsszan2079100206290836.png
vsszan2079100206290837.png
vsszan2079100206290838.png
vsszan2079100206290839.png



围合式家具布局打破距离感,在秩序中融入亲和力。光影流转,唤醒视觉与情感的多维感知,让日常升华为永不褪色的精神画卷。


vsszan2079100206290840.png
vsszan2079100206290841.png



茶几金属的暖调光泽,则在细节处悄然提亮,使整体气质在克制中流露出恰到好处的精致与轻奢。


vsszan2079100206290842.png
vsszan2079100206290843.png
vsszan2079100206290844.png
vsszan2079100206290845.png
vsszan2079100206290846.png



顶级生活并非浮华虚饰的堆砌,而在于功能、美学与情感间寻得精妙平衡。设计取自然为意,空间叙事渐次舒展,感官维度恣意围绕,绣球花云交织成梦幻穹顶,仿佛江边的繁花在一瞬间凝固,倾泻而下。在不同质感软视映衬下,空间情感的温和咏叹,将观者从“云端”的守望拉回到繁花包围中。


vsszan2079100206290847.png
vsszan2079100206290848.png
vsszan2079100206290849.png



陈列的抽象画作、书籍、珊瑚装饰与黑框照片,是知识的沉淀,也是灵感的触角。日常生活被升华为一种艺术仪式,每一隅都在向这座城市中心岛屿的艺术底蕴致敬。


vsszan2079100206290850.png
vsszan2079100206290851.png



生活,最终在最高亢、也最私密的环节,步入属于自己的“叹咏调”。木墙之间,圆镜如同一轮温和的满月悬于幽暗的木林中,内置发光带晕染出内省的氛围。瞰江时,将外界的喧嚣彻底阻隔,让心神在一片寂静的秩序中沉淀。


vsszan2079100206290852.png
vsszan2079100206290853.png
vsszan2079100206290854.png
vsszan2079100206290855.png
vsszan2079100206290856.png



山城岛屿,奏响四季繁花。音符流过的剎那,时空开始错位生长,步入其间,感受城市的磅礴与海派的精致,在音符掠过山茶花的瞬间,消融于艺术的共振之中。


vsszan2079100206290857.png
vsszan2079100206290858.png
vsszan2079100206290859.png
vsszan2079100206290860.png

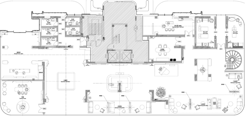
平面布置图



项目全名: 海成 · 江帆郡会所
项目地址:中国 重庆
软装设计:元禾大千
硬装设计:成都小境设计&麓品设计
设计时间:2025.08
完工时间:2025.12
空间面积:1200㎡
甲方单位:重庆海成实业(集团)有限公司
特别支持:陈勇,吴俊轩,沈嵩乔
摄影团队:邹锋翰4U STUDIO


    • 转自:元禾大千
    • 图片©元禾大千
    • 编辑:序赞网
    • 阅读原文
    AI文本分析中……
    AI色彩命名中……
    syhgdesign2026-4-3 01:13:40
    感谢楼主辛苦分享
    95qabc2026-4-6 20:03:41
    谢谢分享!!!谢谢分享!
    ppap7772026-4-29 22:37:28
    感谢分享!!感谢分享!!
    您需要登录后才可以回帖 登录 | 注册序赞号

    快速回复 返回顶部 返回列表