118㎡一人居 | 壹研设计 | 2026 | 中国山东


在城市的喧嚣里,一人居的空间不该是单调的“生存容器”,而应是能安放情绪、承载生活的“静谧剧场”。今天分享的118㎡设计,我们为一个追求独特、渴望安静的独居者打造——套房式功能+弹性客卧+独立书房,更藏下一只猫的悠然天地,拒绝跟风,只做“让心安静下来”的专属场域。


vsszan208145160129461.jpeg



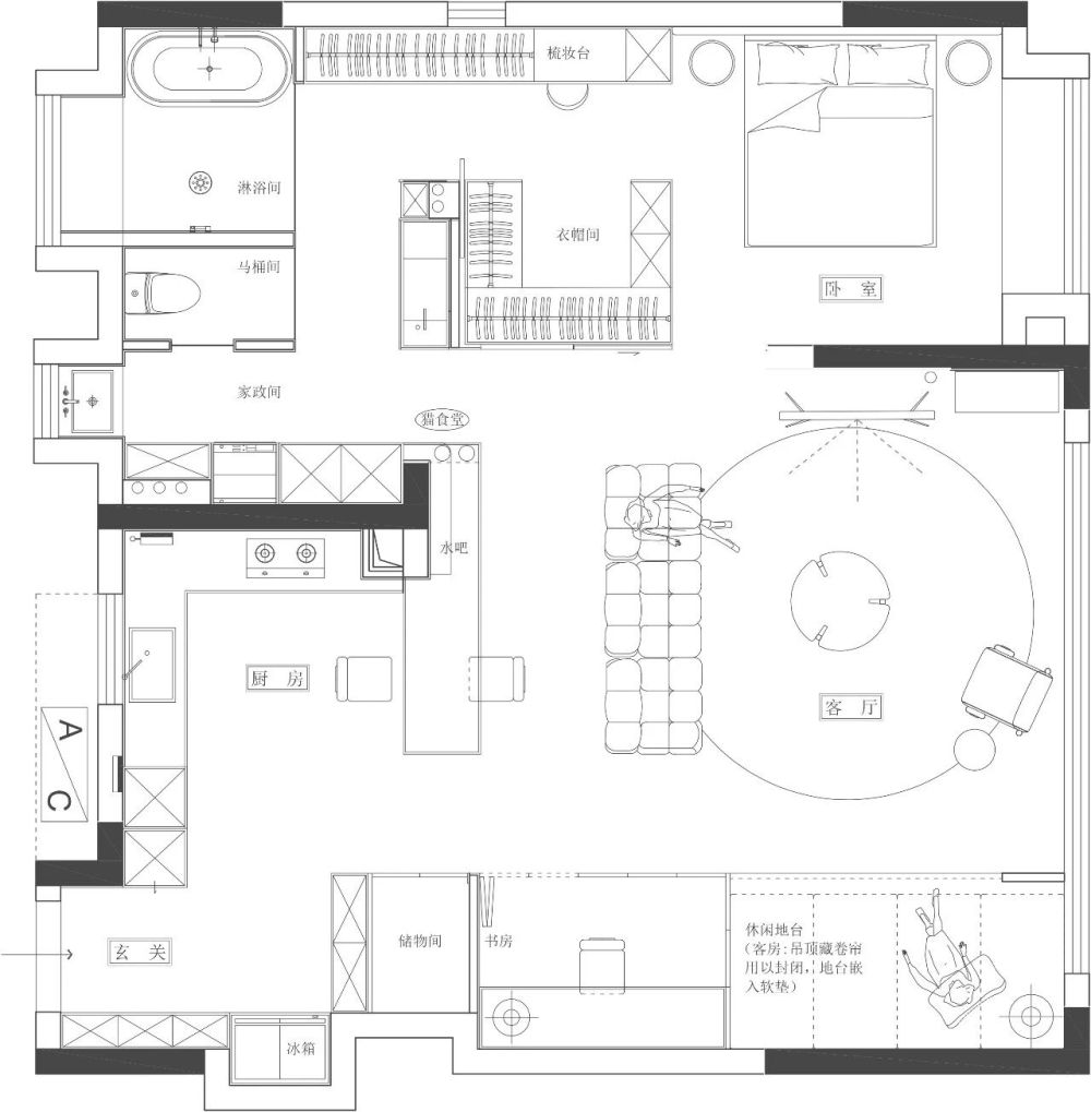
需求拆解:从“功能清单”到“空间叙事”
功能刚需:一人居但要“套房感”(卧室+衣帽间+卫浴一体化),偶尔留宿客人(弹性空间),独立书房;
生活氛围:安静、不随波逐流,要有让情绪沉淀的角落;
宠物友好:预留猫的活动空间;
效率优先:拒绝“双卫闲置”,优化空间利用率。
我们的解题思路,是用「洄游动线」打破传统布局的割裂感,让空间“活”起来——功能紧密相连,却彼此独立;动线灵活穿梭,视觉无限延伸,最终实现“隔而不断,一步一景”。


vsszan208145160129462.jpeg



客厅:“静谧感”的视觉锚点
风格克制:灰白色亚麻沙发+黑色木纹地板+暖色调石材点缀,没有繁杂装饰,用材质(棉麻、实木、石材)的质感营造宁静。大窗引入自然光,百叶帘调节光影,绿植点缀生机(也是猫的“瞭望台”)。
空间延伸:
通过多维度实现:玻璃隔断门(书房)、地台上方藏于吊顶的卷帘(弹性客房)、吧台矮隔断形成边界(开放厨房)、玻璃门(卫浴&家政)、藏匿于柜体间的黑色移门(衣帽间&主卧),皆围绕客厅展开。动线灵活穿梭,视觉因通透隔断无限延伸,隔而不断,让各功能空间既独立又联动,营造出空间层次递进的深邃韵味。


vsszan208145160129463.jpeg
vsszan208145160129464.jpeg
vsszan208145160129465.jpeg
vsszan208145160129466.jpeg
vsszan208145160129467.jpeg
vsszan208145160129468.jpeg



家政卫浴空间设计以“人宠共生”为核心,通过精细化功能整合与人性化布局,实现高效利用与舒适体验的双重提升:三分离卫生间:将“洗漱、如厕、淋浴”三大功能独立拆分(如洗手台外置、马桶间与淋浴间分离),提高了利用率和体验感。
家政模块:一体化定制柜体整合多维度宠物与家务需求——

吧台侧面嵌入猫食堂,旁边柜内规划猫厕所+猫囤粮区(隐蔽式柜门遮挡异味,分层收纳猫砂、粮袋);
中间规划扫地机器人+小洗衣机+洗烘组合+抽拉晾衣架;
侧边设洞洞板吸尘器挂架,垂直收纳节省空间,工具取用一目了然;
飘窗处设洗衣池,方便冲洗猫猫用品,上方也可简单晾晒;


vsszan208145160129469.jpeg
vsszan2081451601294610.jpeg
vsszan2081451601294611.jpeg
vsszan2081451601294612.jpeg
vsszan2081451601294613.jpeg
vsszan2081451601294614.jpeg



主卧套房:从“睡觉”到“生活方式”
动线设计以高效为原则,衣帽间居中连接睡眠区与卫浴空间,形成流畅的洄游路径。采用与柜体同材质的移门便于藏匿,视觉通透轻盈,让空间隔而不断,功能切换流畅自如,行动便捷不打扰。
材质运用注重温润与质感。墙面选用艺术涂料,呈现柔和细腻的肌理;地面材质由客厅黑色地板延伸而入,赋予空间静谧底色。


vsszan2081451601294615.jpeg
vsszan2081451601294616.jpeg
vsszan2081451601294617.jpeg


关 于 我 们 | About us[ 壹研设计 ] 位于安徽合肥,成立于2020年,由2位主理人共同创立,是一间专注于实景落地的小众设计工作室。我们秉承住宅设计应是回归居住本身的理念,着力于功能优化、改善装修体验和提升居住幸福感!而住宅其实是居者的一种延伸和映射,故而我们希望选择理念相和、尊重设计的同频屋主,一起打造富有归属感的住所!联 系 我 们 | Contact us
  • 电话/微信:189-5608-1652 / 187-2551-5082
  • 地址:安徽省合肥市蜀山一号4栋402
相 关 精 彩 推 荐 | More remmemdations

vsszan2081451601294618.jpeg
vsszan2081451601294619.jpeg
vsszan2081451601294620.jpeg
vsszan2081451601294621.jpeg
vsszan2081451601294622.jpeg
vsszan2081451601294623.jpeg
vsszan2081451601294624.jpeg
vsszan2081451601294625.jpeg
vsszan2081451601294626.jpeg
vsszan2081451601294627.jpeg


    • 转自:壹研设计
    • 图片©壹研设计
    • 编辑:序赞网
    • 阅读原文
    AI文本分析中……
    AI色彩命名中……

    暂时没有评论,你回一个呗!~

    您需要登录后才可以回帖 登录 | 注册序赞号

    快速回复 返回顶部 返回列表