松弛感·极简 | 菲拉设计 | 2026 | 中国浙江
vsszan208197180023021.gif



F L Y  ¢  D E S I G N⊙
# 松弛感·极简 #
于喧扰的人世间寻一处圣地,安其身、抚其心。家,装载琐碎日常,于细微处藏着生活百态,却始终是心灵归依的朝圣之所。在精神与空间内寻得一种契合,在风格与需求内寻得一种平衡,略带松弛感的极简,不失功能性的开放式处理,沉淀出专属于居者容纳生活所有可能性的从容场域。


vsszan208197180023022.png
客厅 / Living Room
vsszan208197180023023.png
客厅 / Living Room
vsszan208197180023024.png
客厅 / Living Room
vsszan208197180023025.png
客厅 / Living Room
vsszan208197180023026.png
客厅 / Living Room


在看似合理的原格局之下探寻空间更多的可能性,区域功能的保留与空间光感、体感的提升相互依偎。阳台包进室内,原次卧打开作为多功能区与客厅联通,而后得到整体大于部分之和,焕活空间感与通透的家是大气湛亮的,白色基调辅以原木的温润柔和与空间配合,克制之下的筋骨与软装,居家松弛之感随之而出。


vsszan208197180023027.png
客厅 / Living Room
vsszan208197180023028.png
客厅 / Living Room
vsszan208197180023029.png
客厅 / Living Room
vsszan2081971800230210.png
玄关 / Porch


拆改原入户玄关左侧的储藏间,代之以部分留白与收纳柜相配合;入户直面的原次卧墙体更改为悬浮式通透隔断,下方壁炉搭配上方展览区,视感与体感兼备的透景玄关将归家的第一感受全方位提升,舒缓松弛的温柔家便如温柔臂弯拥人入怀。


vsszan2081971800230211.png
玄关 / Porch
vsszan2081971800230212.png
玄关 / Porch
vsszan2081971800230213.png
玄关 / Porch
vsszan2081971800230214.png
多功能区 / Multi-functional area


如杠杆式的细微变动带来丰盈的收获,一个区域的多方位调整带来整个家居空间的迭新,原次卧空间与玄关互动、与客厅联通、与阳台融合,不同区域间的密切联系丰富空间感受,家是和谐而富有层次的感官空间。如今作为多功能区满足家庭多元需求,是阅读办公的书房、休闲放松的电竞室,与公区相连的环形动线,亦是小朋友在家玩耍的开阔之地。


vsszan2081971800230215.png
多功能区 / Multi-functional area
vsszan2081971800230216.png
多功能区 / Multi-functional area
vsszan2081971800230217.png
多功能区 / Multi-functional area
vsszan2081971800230218.png
餐厨区 / Dining Room & Kitchen
vsszan2081971800230219.png
餐厨区 / Dining Room & Kitchen


拆掉厨房移门做开放式厨房,结合岛台拓展操作空间,餐桌一侧嵌入式厨房电器与餐边柜强化其功能性,餐厨一体化设计调动空间活性,在烹饪与就餐间自在流转。


vsszan2081971800230220.png
餐厨区 / Dining Room & Kitchen
vsszan2081971800230221.png
餐厨区 / Dining Room & Kitchen
vsszan2081971800230222.png
餐厨区 / Dining Room & Kitchen
vsszan2081971800230223.png
餐厨区 / Dining Room & Kitchen


木色餐桌与黑色岛台衔接,餐椅吊灯黑与红的碰撞,静而有度——在清浅温润的空间之下不乏热烈涌动的家居情绪。尽现南北通透的布局让公区备显开阔与松弛,烟火日常也自带柔情诗意。


vsszan2081971800230224.png
餐厨区 / Dining Room & Kitchen
vsszan2081971800230225.png
餐厨区 / Dining Room & Kitchen
vsszan2081971800230226.png
主卧 / Master Bedroom
vsszan2081971800230227.png
主卧 / Master Bedroom


克制的结构体块为空间丰富筋骨感的同时并不喧宾夺主,纯净基底着以木色点缀,主卧简而松弛。床头对调——床尾增加一整墙衣柜强化收纳,床头临近房门位置设曲面隔断提升睡眠区的私密感;主卫门更换为木质移门,节省空间的同时,其本身便是一处制景。


vsszan2081971800230228.png
主卧 / Master Bedroom
vsszan2081971800230229.png
主卧 / Master Bedroom
vsszan2081971800230230.png
次卧 / Second Bedroom
vsszan2081971800230231.png
次卧 / Second Bedroom
vsszan2081971800230232.png
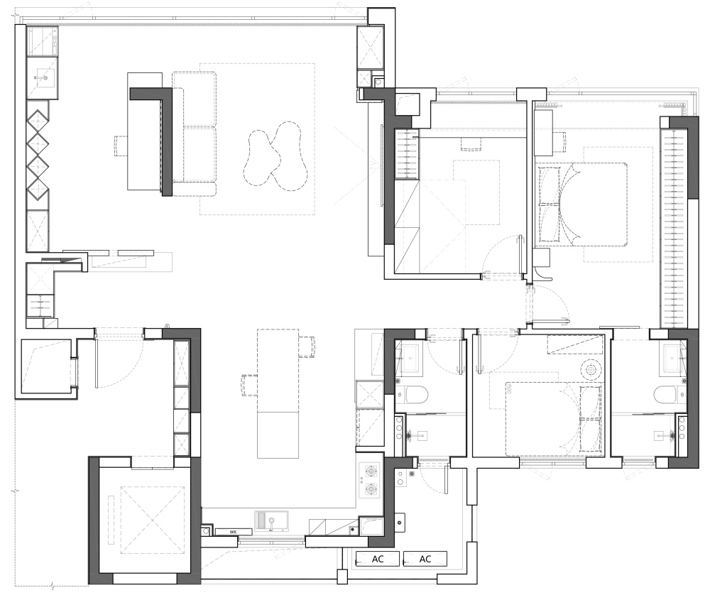
原始图
vsszan2081971800230233.png
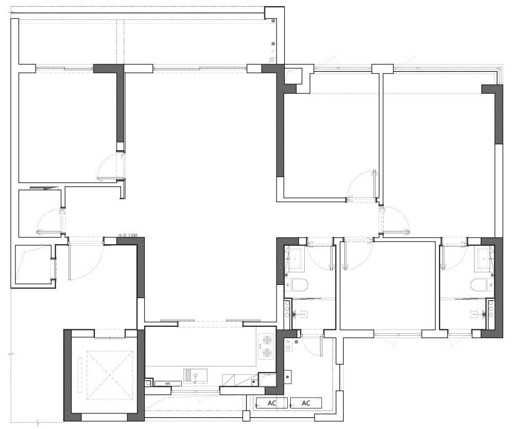
平面图

·精装改造前后对比·



设计机构 / 菲拉设计
项目类型 / 精装改造
施工单位 / 菲拉设计
项目地址 / 浙江杭州·翠揽云境
户型 /  四室两厅
面积 / 146㎡


    • 转自:菲拉设计
    • 图片©菲拉设计
    • 编辑:序赞网
    • 阅读原文
    AI文本分析中……
    AI色彩命名中……
    syhgdesign2026-4-21 01:19:06
    感谢楼主辛苦分享
    95qabc2026-4-21 20:26:01
    谢谢分享!!!谢谢分享!
    您需要登录后才可以回帖 登录 | 注册序赞号

    快速回复 返回顶部 返回列表