花园里 | V2纬图 | 2025 | 中国广东
vsszan208286230055411.png
vsszan208286230055412.png



你在窗前看风景 • 我在欣赏风景中的你


vsszan208286230055413.png
vsszan208286230055414.png



我认为设计的核心始终是需求、公共性与集体价值。先构建舒适的空间环境,再通过产品表达寻找与之契合的形式,层层递进、逐步叠加,最终实现品牌价值的整体提升。


vsszan208286230055415.png

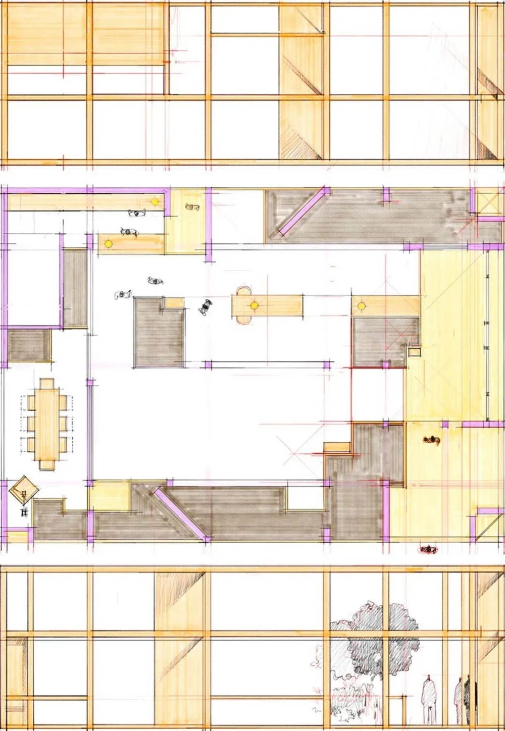
△平面流线手稿| Circulation Plan Sketch

vsszan208286230055416.png
vsszan208286230055417.png
vsszan208286230055418.png
vsszan208286230055419.png



初衷很简单:如同在城市中,建筑师、设计师与品牌方共同营造一片小镇,我愿做那个搭建小公园的人。不执着于强势表达,以留白姿态,在密集空间里营造一处可休憩、交流的柔软角落。


vsszan2082862300554110.png
vsszan2082862300554111.png
vsszan2082862300554112.png
vsszan2082862300554113.png



秉持初心,我与品牌方共同打造共享的“花园里”。我以主人视角统筹设计与执行,品牌方以实力支撑落地,彼此成就,营造专属空间,彰显品牌的价值。


vsszan2082862300554114.png

△平立面对照手稿 | Plan & Elevation Comparison Manuscript

vsszan2082862300554115.png

△天花手稿 | Ceiling Sketch

vsszan2082862300554116.png
vsszan2082862300554117.png

△雕塑作品|《杂耍》| 健伯

vsszan2082862300554118.png

vsszan2082862300554119.png



项目位于展会主通道,限高5.5米,总长12米与17米。周边临时建筑密集,展会期间人潮涌动,压迫感强。基于对场地、展商与设计师群体的理解,摒弃常规展位逻辑,打造一座开放的中心公园。产品门窗自然融入结构与景观,搭配绿植,让人流自然驻足感受。


vsszan2082862300554121.png
vsszan2082862300554122.png
vsszan2082862300554123.png
vsszan2082862300554124.png
vsszan2082862300554125.png
vsszan2082862300554126.png
vsszan2082862300554127.png
vsszan2082862300554128.png



模数布局以4米基础,将易反光的玻璃门窗布置在外围,并退让2米空间。面对产品限制,将局部模数进一步细化为2米,提升灵活性,加入45°斜线与三角关系,打破呆板。


vsszan2082862300554129.png
vsszan2082862300554130.png
vsszan2082862300554131.png
vsszan2082862300554132.png

△绘画作品|《秘境彩蝶》 | 邓猗夫


板材拼接在精准模数基础上预留容差空隙,兼顾美学与落地性,同时规划活动、休息、洽谈等多元功能用途。


vsszan2082862300554133.png
vsszan2082862300554134.png
vsszan2082862300554135.png
vsszan2082862300554136.png



顶部造型按消防要求,以网格、斜线搭配镜面与黑线圈条收口,利用轻微弯曲的自然影像比硬朗的框架结构,丰富顶层视觉,实现规整与变化的平衡。


vsszan2082862300554137.png
vsszan2082862300554138.png



框架完成后,空间稍显过于通透,增设实体板块,通过多层叠加与遮挡,打造若隐若现的半通透空间,开放同时增加围合感。


vsszan2082862300554139.png
vsszan2082862300554140.png
vsszan2082862300554141.png

△模 型|SketchUp model

vsszan2082862300554142.png
vsszan2082862300554143.png
vsszan2082862300554144.png



绿植高低错落,营造氛围、引导动线,且不影响门窗使用;灯光提前规划定位与测试,保障现场高效落地。


vsszan2082862300554145.png
vsszan2082862300554146.png
vsszan2082862300554147.png
vsszan2082862300554148.png
vsszan2082862300554149.png

△绘画作品|《等待-2》|邓猗夫

vsszan2082862300554150.png



执行阶段,面对材料繁杂、工期紧张等难题,通过分类编号、驻厂管理等方式简化流程,四天高效完成搭建。


vsszan2082862300554151.png
vsszan2082862300554152.png



开展期间,周边环境光映于层层递进的开放空间,光影流转,自成意外之美。由内而外散发的盎然绿意,吸引着人群放缓节奏,驻足探寻。于草木光影间,感受着空间的温润与松弛。


vsszan2082862300554153.png



常规的展位相对封闭,而这里不仅是品牌展示窗口,更是一片绿意、通透、友好的公共空间。
门窗与环境本就共生,从里看景、从外看境,让人觉得舒服,放松。设计没有标准答案,在当下语境中找到最适配的方式,便是设计的意义。


vsszan2082862300554154.png
vsszan2082862300554155.png



项目名称|花园里
项目位置|广州设计周
项目面积|204㎡
项目业主|圣米兰门窗
完成时间|2025年12月
总设计师|赵睿/ V2纬图
项目助理|危从全 黄志彬 李龙君 邓伟涛 伍启雕 岑月兰 叶增辉/ V2纬图
艺术 家 |邓猗夫 健伯
花艺 师 |陈韫瑜
绿植营造|薛慧思
展位搭建|广州羽墨空间设计有限公司
传媒管理|伍启雕何静韵/ V2纬图
项目摄影|李永茂;伍启雕/V2纬图
绘画作品|艺术家:邓猗夫,《等待-2》200×140cm/布面油画/2013年;《秘境彩蝶》260×230cm/布面丙烯/2025年;《苦B青年》100×80cm/布面油画/2012年;雕塑作品|艺术家:健伯,《杂耍》/玻璃钢着色+钢板/2017-2025(均为赵睿收藏)

vsszan2082862300554156.png

赵 睿

V2GETHER纬图设计创始人


设计总监
1994年进入设计行业,在建筑与室内设计践行的同时将创作边界延伸至绘画、装置和产品观念,主张建筑、生活、艺术融为一体。以其前瞻性眼光,全面的设计能力与对项目精准判断,为众多企业实现品牌溢价目标,商业价值最大化。多年与纬图团队行业深耕,凭研创精神与独特的作品气质获得业内嘉许无数。



    • 转自:环球设计
    • 图片©V2纬图
    • 编辑:序赞网
    • 阅读原文
    AI文本分析中……
    AI色彩命名中……
    syhgdesign2026-4-24 02:31:10
    感谢楼主辛苦分享
    95qabc2026-4-28 13:31:46

    谢谢分享!!!谢谢分享!
    ppap7772026-4-29 21:12:12
    感谢分享!!感谢分享!!
    您需要登录后才可以回帖 登录 | 注册序赞号

    快速回复 返回顶部 返回列表