威海保利山海赋 | 靳朝晖设计 | 2026 | 中国山东
vsszan208344270010321.png
vsszan208344270010322.png
vsszan208344270010323.png
vsszan208344270010324.png
vsszan208344270010325.png
vsszan208344270010326.png
vsszan208344270010327.png



山,岿然不移,予人居以沉稳之骨;海,潮涌不息,予空间以流动之魂。保利山海赋165样板间,将威海的山海气韵与百年商埠的在地记忆,织入空间经纬。独立玄关,借石材天然脉络的深邃与舒展,对话艺术雕塑的雅奢与剔透,于一进一启间,凝练成归家的第一幕仪式序章。


vsszan208344270010328.png
vsszan208344270010329.png



内简外奢,织就栖艺之境。客厅以山海文化为底色,勾勒「浮光景庭」当代雅奢长卷。材质不争,家具不显,器物不语——每一件单品皆克制而考究。天光如烟岚轻笼,让东方意蕴化作日常的吐纳。


vsszan2083442700103210.png
vsszan2083442700103211.png
vsszan2083442700103212.png
vsszan2083442700103213.png



以沙发为界,半开敞的多功能室,是家中可自由切换的精神角落。微办公的书房,或家庭阅读的港湾——不定义功能,只承载可能。界而不隔,让空间与生活自然交融。


vsszan2083442700103214.png



一张圆桌,围合家的温度。餐厅一侧墙面,大漆与螺钿叠合的艺术挂画,光影流转间绽放虹霓幻彩;另一侧陈列架,贝母板晕染月华般光泽,如海面晨曦初露。移门开合,中西厨自由切换。闭合时,烟火升腾的爆炒声响被妥帖隔绝;推开后,西厨岛台与餐厅相连,烹饪成为全家互动的温情剧目。厨房收纳暗藏章法,器物各归其位,秩序藏于烟火深处。于此,三餐四季,皆成雅集。


vsszan2083442700103215.png
vsszan2083442700103216.png



精装格局重塑,奢雅自此铺陈。肌理皮革以柔韧触感勾勒床头轮廓,纹样取意“凤凰于飞”,于素雅间见祥瑞之意。锻纹金属以细腻纹理凝练空间风骨。一室静谧,不动声色,却处处见格调。


vsszan2083442700103217.png
vsszan2083442700103218.png
vsszan2083442700103219.png



卫生间,是家的私密角落,亦是品质生活的象征。主卫双台盆设计,从容应对晨起时光。当夜色揉进灯光,香氛缭绕中,心情瞬间舒缓。沐浴时光搭配一杯红酒的微醺,便是一天的完美ENDING。


vsszan2083442700103220.png
vsszan2083442700103221.png



“芭蕾舞之梦”的设计主题,贯穿艺术挂画与空间装饰。明快的粉色如草莓汽水般轻盈,柔软的床品与梦幻的纱帘,守护少女的优雅与天真。置物架上,收藏盲盒的乐趣悄然陈列,也陈列着成长路上饱含爱意的惊喜。


vsszan2083442700103222.png
vsszan2083442700103223.png
vsszan2083442700103224.png



原木色打底,如森林土壤般温润踏实;明黄与草绿跳跃其间,仿佛阳光穿过树梢洒在青苔上。小怪兽与动物朋友们是童年最忠实的玩伴。这里没有规则的约束,只有启蒙期自由想象的天地——让孩子在童话的守护中,做一场五彩斑斓的梦。


vsszan2083442700103225.png
vsszan2083442700103226.png
vsszan2083442700103227.png
vsszan2083442700103228.png



旋转楼梯以弧线向下舒展,踏步错落,韵律如音阶层层递进。艺术雕塑与自高处垂落的吊灯浑然一体,每一片水晶折射出细碎光芒,似风铃在声响前凝固的一瞬。悬于半空的流光,落于地面的沉思,共同串联起垂直空间的艺术叙事。


vsszan2083442700103229.png
vsszan2083442700103230.png
vsszan2083442700103231.png
vsszan2083442700103232.png



东方奢华,不是金玉满堂的堆砌,而是气韵暗涌的克制。地下会客厅,是社交的延伸,也是个人志趣的安放之地。半围合沙发聚合圈层挚友,雪茄会客区、品茗区与水吧台,致献生活的高阶礼遇。


vsszan2083442700103233.png
vsszan2083442700103234.png



品茗区最动人的,是那一面鲁绣背景墙。铜丝编织疏密韵致,勾勒出山海肌理。远看如雾霭氤氲,近观方见金属光泽细密如诗。茶席之上,茶壶茶盏静候沸水唤醒——注水、出汤,一气呵成,袅袅茶香与金属微光在空气中缠绕。


vsszan2083442700103235.png
vsszan2083442700103236.png



背景墙暗纹隐现,如海浪翻涌时的磅礴,亦如花瓣迎风时的轻逸——动静之间,引思绪悠远。午后,手边一盏清茶漫开淡淡热气,案头摊开一本泛黄的书卷。空间布局兼顾功能与美学,将长者的情感与记忆悄然融入,让岁月在此安放。


vsszan2083442700103237.png
vsszan2083442700103238.png



保利山海赋
融合“第四代居”设计理念
将建筑从“居住容器”转变为“有机生命体”
家是归心之畔
是隐于繁华后的宁静
山海交融 人文荟萃
自然艺术与在地精神共生


vsszan2083442700103239.png
vsszan2083442700103240.png

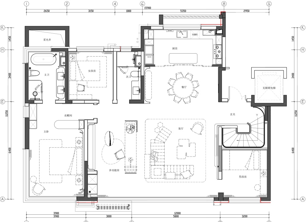
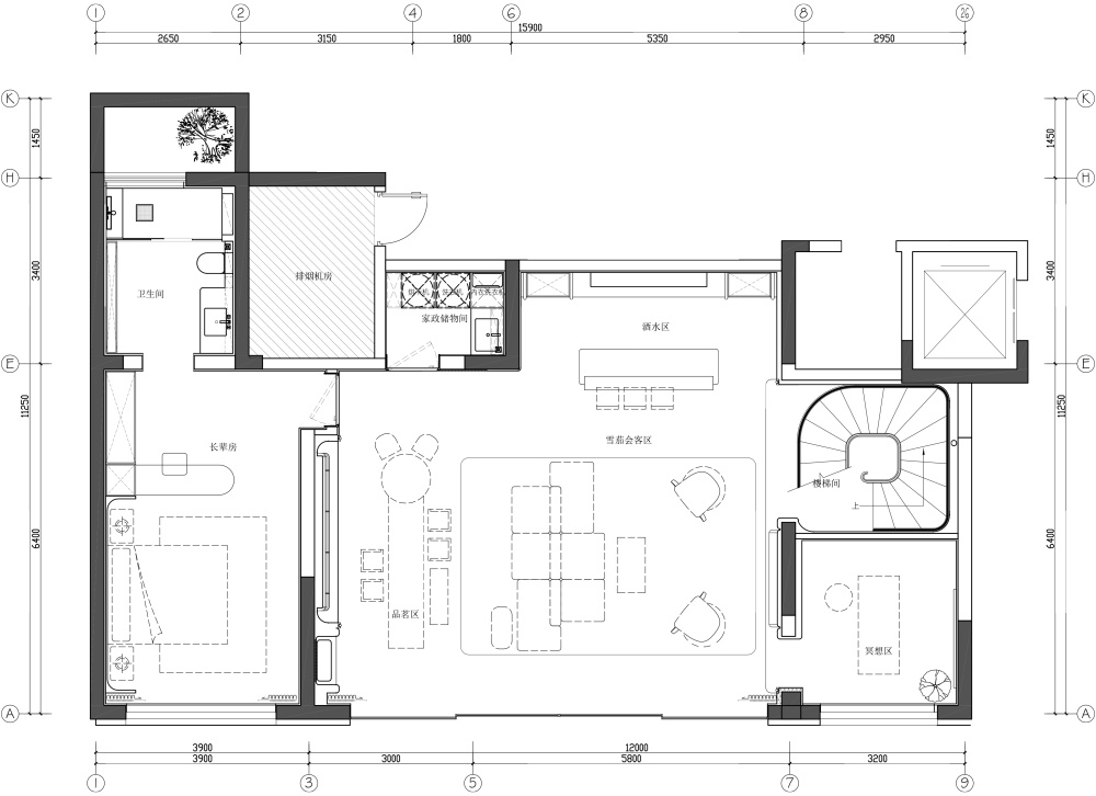
首层/负一层平面图



项目信息
项目名称|威海保利山海赋项目
项目区位 | 山东省威海市环翠区统一南路西、陶家夼北
业主单位|威海利陶置业有限公司
设计公司|北京靳朝晖设计有限公司
设计总监|范蓉
精装团队|訾铁成 徐晓敏 张天羽 赵浪
软装团队|韩东 高唯
摄影团队|初一图志
文案团队|李臻
品牌推广|张淼 陈雪


    • 转自:MMD靳朝晖设计
    • 图片©MMD靳朝晖设计
    • 编辑:序赞网
    • 阅读原文
    AI文本分析中……
    AI色彩命名中……
    动城2026-4-27 17:10:41
    学习啦,谢谢
    syhgdesign2026-4-28 02:18:26
    感谢楼主辛苦分享
    dvtpter2026-4-29 09:32:58
    ppap7772026-4-29 20:51:00
    感谢分享!!感谢分享!!
    95qabc2026-5-5 18:07:25

    谢谢分享!!!谢谢分享!
    95qabc2026-5-6 16:25:38

    谢谢分享!!!谢谢分享!
    您需要登录后才可以回帖 登录 | 注册序赞号

    快速回复 返回顶部 返回列表