HIGOLD全新悍高能量馆3.0Plus | PONE普利策|2026 | 中国广东
vsszan208422300112531.png
vsszan208422300112532.png



非标准时代
搭建支撑品牌研创
长期战略的价值框架
在功能定位固化、标准化思维僵化、产业链孤岛林立的传统五金赛道中,大多数企业仍在低价值红海里内卷。面对产品无法互换、柔性生产难、与未来智能定制趋势脱节等结构性扩展难题,行业亟需一场彻底的变革。
「悍高集团」正是这场变革的引领者。依托对产业生态的深度协同与持续创新,悍高突破了价值、产品、渠道与生态的多重壁垒,完成了从场景体验到全屋高端智能解决方案的战略跃迁。这一跨越,不仅推动悍高向智慧生态全面进化,更确立了其作为中国功能五金第一股的行业地位,成为全球五金领域结构性突围的标杆与定义者。
悍高通过功能集成与情感化设计,重塑物理与感知的边界,让原本冰冷的机械构件进化为有温度的智慧触点。未来的竞争焦点,已从单一场景构建,升级为融合人体工学、工艺美学、艺术体验与智能交互功能的整体价值交付。
悍高2026年全球首发的国际高端品牌「陀飞轮·Tourbillon」,正是这一价值跃迁的实体映证。该系列围绕高净值人群生活方式展开实践,以更本质人性化的方式,回应人们对理想生活的真实期待。作为悍高战略布局的关键一环,「陀飞轮·Tourbillon」的品牌展览继续由PONE普利策担纲呈现。其核心命题在于:如何重塑行业认知,向上延展高端价值,并清晰呈现从“场景解决方案”向“用户全生命周期服务”升级的战略进阶之路。


vsszan208422300112533.png
vsszan208422300112534.gif
vsszan208422300112535.png
vsszan208422300112536.png



深度挖掘用户体验
自2024年落地悍高全球巡展以来,节点模组与空间诱导机制,已成为PONE普利策构建悍高会展空间的系统方法。这一范式在持续挖掘用户体验的过程中,验证了其高效落地与跨场景复用的能力。基于此,本次迭代的核心命题在于:如何延续这一成熟架构,在适配品牌高端化与全球化进程的同时,持续深化用户体验,最终实现展览空间的可持续迭代与价值沉淀。
vsszan208422300112537.gif
vsszan208422300112538.png
vsszan208422300112539.png
vsszan2084223001125310.png

2026年悍高3.0 Plus展览空间,用迭代进化诠释何为“支撑生活品质和用户体验的体系”。设计延续既有的“策略-机制-体验”三层模型,在夯实可拆装、可适配、可存续的模组化内核基础上,着力链接与深化用户体验,实现功能与场景的精准适配。 这为悍高全球化展览矩阵确立了统一的表达共识,实现从品牌空间到全球用户生活的价值贯通。


vsszan2084223001125311.png



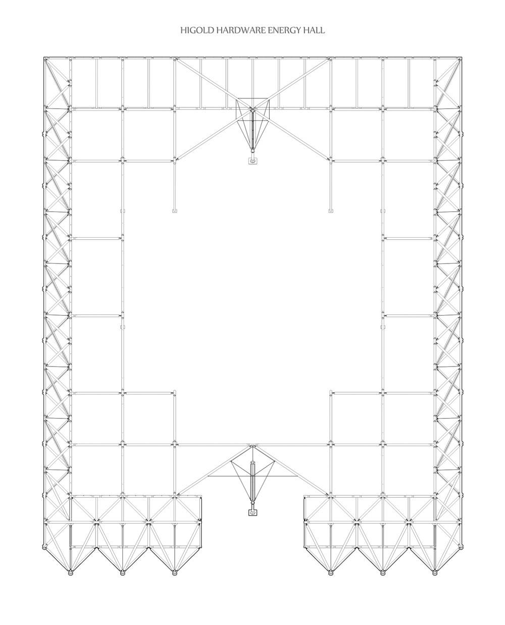
在既定的策略框架之上,3.0 Plus 展厅聚焦于空间形态与物理界面的系统性迭代,以强化场域叙事。外立面以三角单元桁架构建受力体系,形成黄金三角稳定结构和分支点。其几何形态呼应悍高精密制造与硬核研发的产业基因。内部则通过金属百叶帘与半开放界面,借助材质叠合与光影控制,柔化结构、塑造细腻的室内氛围。
基于此结构及机制的系统支撑,展厅进一步突破传统会展的时效局限,适配高端子品牌「陀飞轮·Tourbillon」的国际化美学体系,从而拓宽品牌在高端叙事与国际化表达上的维度,支撑品牌立体化呈现与战略升级。


vsszan2084223001125312.png
vsszan2084223001125313.png
vsszan2084223001125314.png
vsszan2084223001125315.png
vsszan2084223001125316.png
vsszan2084223001125317.png



适应生产新模式的主动尝试
系统机能建构,是适应生产新模式的主动尝试。旨在实现场域功能的整合分层、秩序重构与维度延展。设计以悍高原有五金系统为基础,加载高阶精工与艺术化收纳,构建起从宏观架构到微观技术的推演体系,逐层揭示品牌研发逻辑与技术内核,最终完成科创势能向人居价值的立体转译。


vsszan2084223001125318.png
vsszan2084223001125319.png
vsszan2084223001125320.png
vsszan2084223001125321.png
vsszan2084223001125322.png
vsszan2084223001125323.png
vsszan2084223001125324.png
vsszan2084223001125325.png



可生长的空间架构,展览构建开放嵌入式机能系统,兼容品牌产品迭代与多元展陈内容的协同拓展。系统化模型具备可持续迭代的发展势能,构筑集路径推演、场景递进、多维交互于一体的复合型感知场域。


vsszan2084223001125326.gif
vsszan2084223001125327.png
vsszan2084223001125328.png



场域通过内容密度差异化调控,构建浅层浏览与深度沉浸的二元场景体系。依据各展区属性匹配对应的信息层级与感知维度,在保障展陈体系完整性与动线系统性的基础上,建立起伏递进的观展时序,完成观者认知由表层接收至深度思辨的层级感知过程。


vsszan2084223001125329.png
vsszan2084223001125330.png
vsszan2084223001125331.png
vsszan2084223001125332.png
vsszan2084223001125333.png
vsszan2084223001125334.png
vsszan2084223001125335.png
vsszan2084223001125336.png
vsszan2084223001125337.png
vsszan2084223001125338.png



进化&兼容
和观众柔性链接
三角单元主桁架通过杆件轴心受力,力流清晰、传力直接,体现结构进化所追求的效能与理性。大跨度无柱支撑以较小截面实现高效率受力,在兼容开放展示需求的同时,形成开阔空间界面。统一模数的杆件与精准对位的转接构件,构成了可快速搭建的模块化预制拼装体系,在工业精度中为展览与观众的柔性链接建立了物理基础。


vsszan2084223001125339.png
vsszan2084223001125340.png
vsszan2084223001125341.png
vsszan2084223001125342.png

△ 节点解析



外部金属骨架结构清晰,通过半透的金属磨砂百叶帘柔化体量,并借助漫射光影营造通透均匀的氛围。内部则以棕褐色实墙与柔和光带形成包裹感。整体在理性框架中注入可触可感的温度,实现“骨架”与“内核”的清晰对话。


展厅呈现

vsszan2084223001125343.png



展览分为五个区域,展示HIGOLD悍高创新产品研发成果

一区:基础五金系列


vsszan2084223001125344.png
vsszan2084223001125345.png
vsszan2084223001125346.png
vsszan2084223001125347.png
vsszan2084223001125348.png
vsszan2084223001125349.png
vsszan2084223001125350.png


二区:厨房五金系列 / 陀飞轮美学收纳


vsszan2084223001125351.png
vsszan2084223001125352.png
vsszan2084223001125353.gif
vsszan2084223001125354.png
vsszan2084223001125355.png
vsszan2084223001125356.png
vsszan2084223001125357.png
vsszan2084223001125358.png


三区:衣柜五金系列 / 陀飞轮美学收纳


vsszan2084223001125359.png
vsszan2084223001125360.png
vsszan2084223001125361.png
vsszan2084223001125362.png
vsszan2084223001125363.png
vsszan2084223001125364.png


四区:水槽卫浴系列


vsszan2084223001125365.png
vsszan2084223001125366.png
vsszan2084223001125367.png
vsszan2084223001125368.png

展厅搭建

vsszan2084223001125369.png
vsszan2084223001125370.png
vsszan2084223001125371.png
vsszan2084223001125372.png
vsszan2084223001125373.png
△ 工地札记


精工结构 × 机制进化 「同构」Tourbillon
理性构造与感性场域的交织
品牌空间机制的系统预设
模组化 · 可迭代 · 可复用 · 可生长
开放嵌入 · 功能兼容
扩展协同 · 结构共享
面向全球的持续演化体系


项目名称|HIGOLD全新悍高能量馆3.0Plus
业主团队|悍高集团股份有限公司
设计团队|PONE普利策
设计内容|策划、空间、动画及视觉艺术
总设计师|何思玮、梁穗明
空间设计|刘嘉莉、华月柳、杨康明、黄鹏芬
设计策划|G.M Studio
文案策划|Carrie
项目摄影|不二山人、JJ
动画&CG视频制作|JJ、Junbin
展览地址|2026中国家博会(广州)
项目面积|1000㎡

本文内容由PONE团队独家策划出品,原创文字/视频/图片/CG动画/家具/产品等涉及版权所有,如需转载,请先与我们联系.


vsszan2084223001125374.png

何思玮(Golden Ho)& 梁穗明(Ming Lueng )


PONE普利策,由何思玮先生和梁穗明女士共同创立的创意先锋团队。专注于建筑、空间设计、商业品牌创新、办公、展览等。独特的视觉与思考,打破固有规则与认知。不断创新,以执着纯粹感知力全新定义设计的边界。


    • 转自:环球设计
    • 图片©PONE普利策
    • 编辑:序赞网
    • 阅读原文
    AI文本分析中……
    AI色彩命名中……
    syhgdesign2026-5-1 02:16:51
    感谢楼主辛苦分享
    95qabc2026-5-9 12:56:59
    谢谢分享!!!谢谢分享!
    您需要登录后才可以回帖 登录 | 注册序赞号

    快速回复 返回顶部 返回列表