
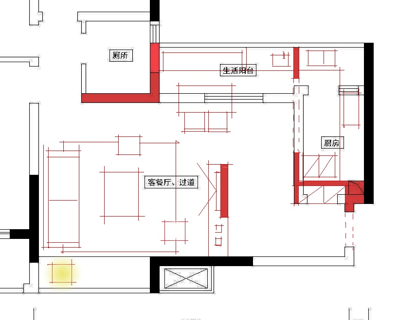
- 平面规划
- >
- 住宅
- >
- 100平米婚房待解救。
- 2015-06-02
- 4635
- 0
- 3
| |
AI文本分析中……
AI色彩命名中……
序赞Ai时刻等待着你的命令!~
与Ai对话形式持续执行相关Ai智能体任务。
________惜2015-6-2 10:00:52
| ||
Brutal丶柚子2015-6-2 12:11:04
| ||
s3978903922015-6-2 12:11:27
| ||
________惜2015-6-2 13:16:00
| ||
________惜2015-6-2 13:22:40
| ||
________惜2015-6-2 13:22:58
| ||
史朝锦2015-6-2 15:04:03
| ||
~辉.2015-6-2 15:40:42
| ||

卧室都没做平面的 都在想客餐厅呢



