日本广岛K形住宅
日本建筑事务所furumoto architect associates (ryuichi furumoto)给designboom送来了他们最新
设计的方案“K形住宅”,这是一座位于日本广岛的多层住宅,业主是一对夫妇和他们的
四个孩子。基地周边被中高层楼房包围,建筑师试图为业主创造一个能够降低环境噪音和
干扰的居住空间。

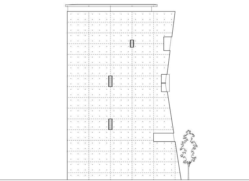
建筑的外形酷似字母“K”,住宅中段向内微微收缩,底部和顶部则向外扩张,共同形成一个
“K”字形的建筑轮廓。混凝土材料直接暴露在外,这种坚硬的材质风格和一系列潜入立面中
的长条玻璃窗形成对比。不同高度和宽度的长窗为室内空间带来了纵深的空间感受,同时也
创造了一个独特而动感的建筑造型。

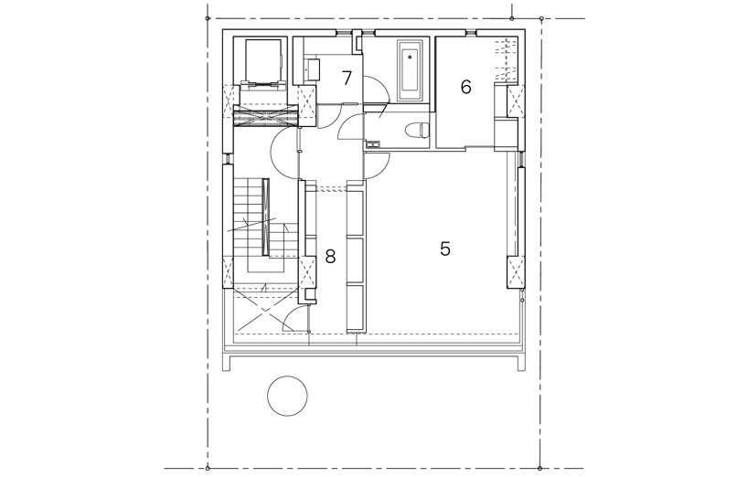
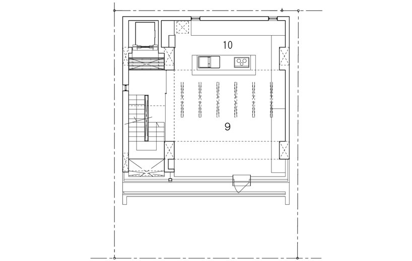
这个方案共包括三个停车位——两个在室内,一个在室外,且都布置在建筑首层。
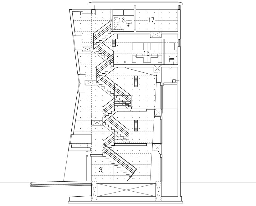
公共空间位于住宅三层,以保证必要的私密性。天花板上开了许多纤细的条形天窗,
让自然光线能照射到起居室内,用这种通透的光线来中和沉重冰冷的混凝土墙面。
住宅各层通过一个巨大的楼梯连接,折线形的楼梯不仅仅作为交通流线,同时也
在各个不同高度上设计了许多休息平台,在剖面上丰富了建筑的空间。

项目信息:
基地面积: 115.65 m2
建筑面积: 75.79 m2
总楼地面面积: 286.26 m2
结构设计: SAK structural engineering
承建商: daiki-kk



日本广岛K形住宅_k01.jpg
日本广岛K形住宅_k02.jpg
日本广岛K形住宅_k03.jpg
日本广岛K形住宅_k04.jpg
日本广岛K形住宅_k05.jpg
日本广岛K形住宅_k06.jpg
日本广岛K形住宅_k09.jpg
日本广岛K形住宅_replace.jpg
日本广岛K形住宅_k10.gif
日本广岛K形住宅_k11.gif
日本广岛K形住宅_k12.gif
日本广岛K形住宅_k13.gif
日本广岛K形住宅_k14.gif
日本广岛K形住宅_k15.gif
日本广岛K形住宅_k16.gif
日本广岛K形住宅_k17.gif
日本广岛K形住宅_k18.gif
日本广岛K形住宅_k19.gif
日本广岛K形住宅_k20.gif
日本广岛K形住宅_k21.gif
日本广岛K形住宅_k22.gif
AI文本分析中……
AI色彩命名中……

序赞Ai时刻等待着你的命令!~

与Ai对话形式持续执行相关Ai智能体任务。

yxhp2011-10-9 10:47:07
日本的建筑还是很喜欢的,简洁大气,但作为住宅这种上下垂直交通还是很不方便的
您需要登录后才可以回帖 登录 | 注册序赞号

快速回复 返回顶部 返回列表