Rigot 难民临时公寓(2019)(acau architecture)设计
公寓, 日内瓦, 瑞士
  • 建筑师:acau architecture
  • 面积:7070 m²
  • 项目年份:2019
  • 摄影师: Marcel Kultscher, Enric Rovira Ferrer
  • 厂家:Arquivo Contemporâneo, AutoDesk, Bontempo Brasília, Carminati tapetes, Danilo Vale, Deca, Decortiles, Divino Galeria, Docol, Estilo em Pedras, Hunter Douglas, Líder Interiores, Sallva
  • 设计团队:Antoine Dellenbach, Darius Golchan, Enric Rovira Ferrer, Liliana Franco Teixeira
  • 客户:Hospice général – Service immobilier, 1227 Les Acacias
  • 施工方:Entreprise Générale SA, JPF Construction SA, 1630 Bulle
  • 执行建筑师:Pasquier Glasson sa, Bulle
  • 市政工程师:Thomas Jundt SA, Geneva
  • 概念策划:Bois Initial SA, 1110 Morges
  • 防火工程师:Charpente Concept SA, 1258 Perly-Certoux
  • 木材工程师:JPF-DUCRET SA, 1400 Yverdon-les-Bains
  • 框架结构:JPF-Ducret (VD, FR), Dasta (GE), Casaï (GE)
  • 制材厂:Epicéa :Despond SA Bulle (FR) et Zahnd SA Rueyres (VD)
  • 橡木厂:Burgat Saint Aubin (NE) et Corbat (JU)
  • 木材品牌:COBS (parois des modules, plafonds et ossatures, ainsi que pour le chêne des revêtements de façade et coursives)
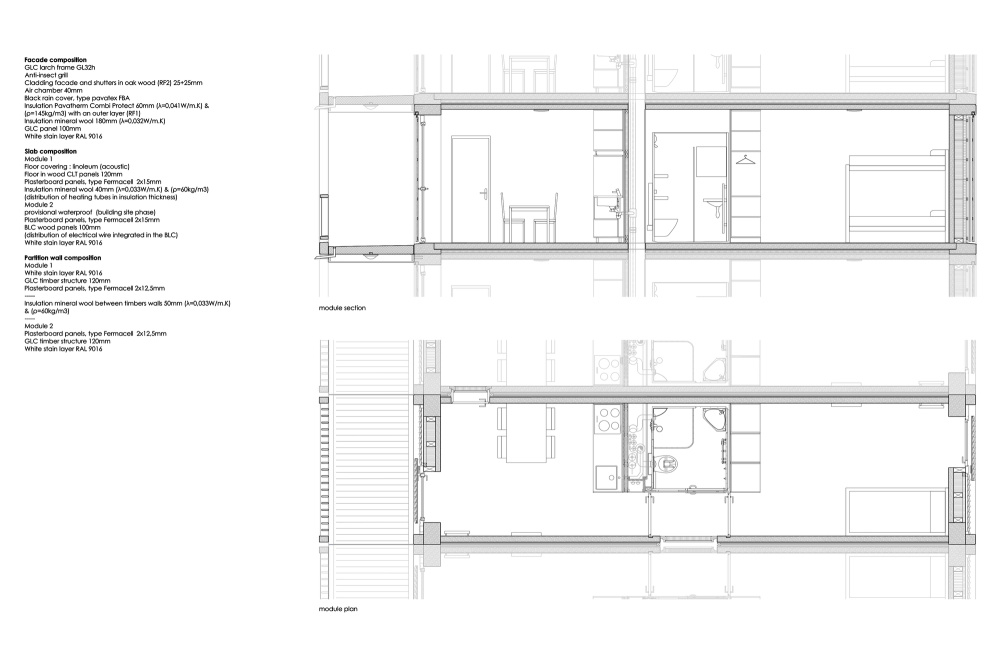
  • 项目位于日内瓦的Rigot公园中,靠近西蒙斯第学校的法国大道旁。公园作为项目场地,旨在建设安置370名难民的紧急临时场所。该项目包括两座对称的5层建筑,由230个预制木制模块组成。住宅课通过一个对公共庭院开放的画廊进入,公共庭院与西蒙斯第有轨电车站和Rigot公园相连。通过这样的建设模式,该项目旨在限制其对环境的各种影响。这些建筑将会在十年内搬走,场地将会恢复到原始状态。考虑到场地的修复和拆除后材料的回收利用,地基是木制的,可以在下一个建筑场地重复使用。
  • 桩基和木制地基的基础网络设计减少了项目对于自然场地的影响,这种完全的干式施工避免了施工期间对地表水网络的任何污染,也减少了项目拆除阶段回收混凝土的负担。 该项目预测了在此居住人口的特殊性,即该群体并非为典型的有两个孩子的家庭。为了应对需求的变化,该项目提出了能够不断发展的公寓类型。 模块化的系统允许住宅单元在2到8个房间之间变化,防火门可将厨房空间转变为卧室。
  • 公寓的模块化及细分也使得其可以考虑其他用途,如酒店或学生公寓。预制模块的组合将能够建设具有不同容积的建筑物,以供未来重建之用。预制模块的完成和交付对施工现场规划至关重要。这种并行规划三个工地(基础/模块预制/装配和组装)的组织方式,使项目能够在短时间内完成。
  • 自项目开工便使用来自日内瓦森林的木材作为基础和建筑围护结构,该过程由当地木材制造商完成,从而减少“灰色能源”的产生。除了加固立面的落叶松窗框外,用于该项目的木材量估计为3200米,采用经认证的瑞士博伊斯木材(原COBS)。对表达木结构特色的探索使理性美学成为该项目的本质。从提供统一尺寸的原始锯材板开始,立面的组成和部分外部装置的施工都基于这种积极的约束。对于建筑立面的表现,栏杆和覆层采用的建筑元素则有所减少。 文字描述由建筑师提供
    译者: 王梦薇
    • 项目完工照片 | Finished Photos
    vsszan3298251050311.jpg
    vsszan3298251050312.jpg
    vsszan3298251050313.jpg
    vsszan3298251050314.jpg
    vsszan3298251050315.jpg
    vsszan3298251050316.jpg
    vsszan3298251050317.jpg
    vsszan3298251050318.jpg
    vsszan3298251050319.jpg
    vsszan32982510503110.jpg
    vsszan32982510503111.jpg
    vsszan32982510503112.jpg
    vsszan32982510503113.jpg
    vsszan32982510503114.jpg
    vsszan32982510503115.jpg
    vsszan32982510503116.jpg
    vsszan32982510503117.jpg
    vsszan32982510503118.jpg
    vsszan32982510503119.jpg
    vsszan32982510503120.jpg
    vsszan32982510503121.jpg
    vsszan32982510503122.jpg
    vsszan32982510503123.jpg
    vsszan32982510503124.jpg
      • 转载自:Archdaily
      • 设计师:acau architecture
      • 分类:公寓
      • 语言:简体中文
      • 阅读原文
      AI文本分析中……
      AI色彩命名中……

      序赞Ai时刻等待着你的命令!~

      与Ai对话形式持续执行相关Ai智能体任务。

      暂时没有评论,你回一个呗!~

      您需要登录后才可以回帖 登录 | 注册序赞号

      快速回复 返回顶部 返回列表