美国纽约华盛顿街77号办公空间(2020)(Worrell Yeung Architecture)设计
适应性利用, 共享办公室室内设计, 布鲁克林, 美国
  • 建筑师:Worrell Yeung Architecture
  • 面积:31500 ft²
  • 项目年份:2020
  • 摄影师: Naho Kubota
  • 厂家:Alcon Lighting®
  • Mep/Fp/Fa/灯光顾问:Engineering Solutions
  • 电梯:Jenkins Huntington
  • 结构施工方:Silman Engineers
  • 景观设计:MVVA
  • 安保设计:Lerner Solutions
  • 施工费:Corcon Construction
  • 规范顾问:RPO, Inc.
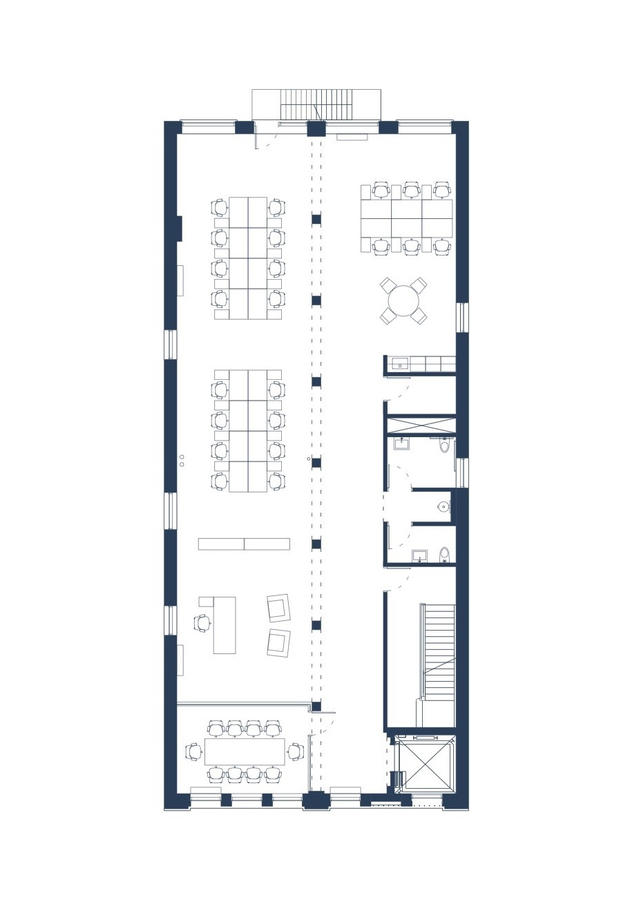
  • 建筑师对华盛顿街77号的翻新与再设计,这栋六层高的楼总面积3530平方米,建于上世纪二十年代,砖石结构,曾用作工厂。紧邻该楼的另外四座历史建筑也是项目的一部分。场地位于华盛顿街交公园大道的街角,距布鲁克林造船厂不远。这个颇具雄心的适应性再利用项目参考了当地社区丰富的历史与仓库这种上世纪初常见于纽约的设计类型。
  • 这次改造在尊重场地历史的同时,创造了一个灵活多用的办公空间,可以调整、变化以满足一系列不同租户的需求。一个宽阔的艺术家工作室和一个摄影工作室占据着旁边的单层建筑。“这些现有建筑拥有非常丰富的历史和独特的肌理,我们希望我们的设计去强调这些原有的东西,同时进行升级改造以适应新的用途与功能”,合伙人 Max Worrell 说。极简的当代风格细节处理与原有材料岁月的光泽对比,这些用心琢磨的新旧并置充分展示了建筑体的历史。
  • 场地中央的六层工厂建筑是整个建筑体的核心。它的右边与南边是三个单层结构,由一个草木葱郁的私人中心庭院连接。这个庭院向天空敞开,是移除原来覆盖这块空间的屋顶而得来的。工厂左侧原有的车库被拆除,由 Michael van Valkenburgh Associates 再设计,转化成一个茂盛的花园,此外这里还添加了一个供所有租客使用的自行车存储区域。
  • 通过拆除填充砖石墙体, Worrell Yeung 复原了单层结构原来的临街立面,在公园大道上创造了令人印象深刻的视觉效果。自然光被引入作为艺术、摄影工作室的室内空间。对于街角的艺术家工作室,建筑师设计了一个巨大玻璃砖侧窗,引入漫射的自然光,在夜间它会像灯笼一样发光,激活这个街角。这些建筑体的地面层外墙体被漆成深蓝色,统一为一个总体。
  • Worrell Yeung 希望展示这个场地的历史,它对项目设计产生了最重要的影响。在花园中,临街的原有黄色木质大门被留下,砖石外墙被原样保留,显示着之前结构留下的痕迹。作为对布鲁克林造船厂的参考,花园中的长椅是三条实心橡木,它们是一位造船商在过去十年的各种风暴后从纽约、马萨诸塞和新罕布什尔收集的,若照往常它们会被用来翻新船只。
  • 这种策略延续到中央六层工厂建筑的室内。钻石钢板地面、粗糙的钢栏杆和门、混凝土地面,诸如此类的材料选择呼应了老布鲁克林工厂内在的工业特质(粗犷、耐用、不经雕琢)。 Worrell Yeung 与造船厂的木工 Bien Hecho 合作,挽救老地板中的木接头,把它们重组成定制的会议室长桌和前厅长椅。纹理厚重、覆着层层油漆的砖墙被清洁、刷上保护层、配以整洁的混凝土地面和白墙。
  • 在前厅,一扇大窗将光从私人庭院引入(庭院可由旁边的单层建筑进入)。网格图案在前厅反复出现,在钻石钢板、在玻璃砖元素、在独特的胶合板墙体,在整个建筑体里也都是这样。
  • 最值得注意的是,为了创意性地满足电梯的防护板要求, Worrell Yeung 将贯穿全项目的网格图案应用在了覆盖电梯口的钢制网格上。从街上抑或从出租车里都可以在建筑外表面观察到电梯优雅的存在。正如合伙人 Jejon Yeung 所说,“这些设计介入是对工厂建筑与造船厂仓库审美上的认可,网格曾被它们用在推拉窗、围栏和船舶码头上”。
    文字描述由建筑师提供
    译者:高可萌
    • 项目完工照片 | Finished Photos
    vsszan3311251655231.jpg
    vsszan3311251655232.jpg
    vsszan3311251655233.jpg
    vsszan3311251655234.jpg
    vsszan3311251655235.jpg
    vsszan3311251655236.jpg
    vsszan3311251655237.jpg
    vsszan3311251655238.jpg
    vsszan3311251655239.jpg
    vsszan33112516552310.jpg
    vsszan33112516552311.jpg
    vsszan33112516552312.jpg
    vsszan33112516552313.jpg
    vsszan33112516552314.jpg
    vsszan33112516552315.jpg
    vsszan33112516552316.jpg
    vsszan33112516552317.jpg
    vsszan33112516552318.jpg
    vsszan33112516552319.jpg
    vsszan33112516552320.jpg
    vsszan33112516552321.jpg
    vsszan33112516552322.jpg
    vsszan33112516552323.jpg
    vsszan33112516552324.jpg
    vsszan33112516552325.jpg
    vsszan33112516552326.jpg
    vsszan33112516552327.jpg
    vsszan33112516552328.jpg
    vsszan33112516552329.jpg
    vsszan33112516552330.jpg
    vsszan33112516552331.jpg
    vsszan33112516552332.jpg
    vsszan33112516552333.jpg
    vsszan33112516552334.jpg
    vsszan33112516552335.jpg
    vsszan33112516552336.jpg
    vsszan33112516552337.jpg
    vsszan33112516552338.jpg
    vsszan33112516552339.jpg
    vsszan33112516552340.jpg
    vsszan33112516552341.jpg
    vsszan33112516552342.jpg
    vsszan33112516552343.jpg
    vsszan33112516552344.jpg
    vsszan33112516552345.jpg
    vsszan33112516552346.jpg
    vsszan33112516552347.jpg
    vsszan33112516552348.jpg
    vsszan33112516552349.jpg
    vsszan33112516552350.jpg
    vsszan33112516552351.jpg
    vsszan33112516552352.jpg
    vsszan33112516552353.jpg
      • 转载自:Archdaily
      • 设计师:Worrell Yeung Architecture
      • 分类:适应性利用
      • 语言:简体中文
      • 阅读原文
      AI文本分析中……
      AI色彩命名中……

      序赞Ai时刻等待着你的命令!~

      与Ai对话形式持续执行相关Ai智能体任务。

      暂时没有评论,你回一个呗!~

      您需要登录后才可以回帖 登录 | 注册序赞号

      快速回复 返回顶部 返回列表