仁川常青教堂(2020)(Oh Jongsang)设计
教堂, Seo-gu, 韩国
  • 建筑师:Oh Jongsang
  • 面积:501 m²
  • 项目年份:2020
  • 厂家:DAELIM BATH, HANGLAS, Lumion, Trimble Navigation
  • 主创建筑师:Oh Jongsang
  • 设计团队:Oh Jongsang
  • 客户:Evergreen Church
  • 当你能自由使用土地的时候,换句话说,当建筑面积与土地面积的比例很小的时候,建筑楼的布局就成为确定建筑方向的有力手段。当要填满60%,80%的土地的时候,我们并没有多种选择。如果土地可以有很多空地,那么案例的数量就会大大增加。
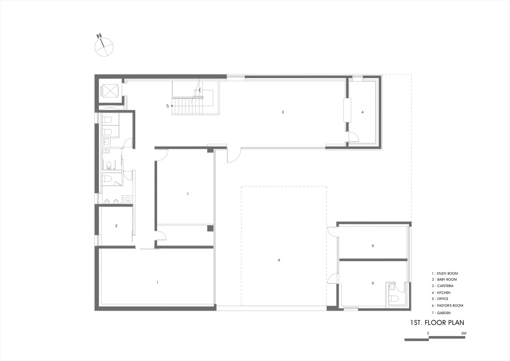
  • 视野的选择、城市的意向、邻居间的关系都更加多样与自由。常青教堂在820平方米的场地上制定了38%的建筑面积与土地面积比例的规划。客户提供的“口袋光源”已经为建筑师带来了可喜的便利。教堂场地四面八方都环绕着建筑楼。前面、后面、右边、左边……同样高度的建筑都在靠近边界的地方。
  • 这是一个密集新城区的总体景观。在这种情况下,建筑师应该如何定位自己?小比率的建筑与土地面积的比例是解决这个问题的答案。腾空中心区域并摆脱密集的现状似乎是唯一的解决办法。相对于它的面积来讲较为开阔的中心庭院就是为此设计的。除了马路旁的停车位,所有的空地都是居中布置的。在路上,大开的出入口之间的庭院带给你一种奇妙的神秘感。当你进入建筑楼时,你可以轻易地看到庭院是这个建筑的中心。建筑楼内的所有空间都组成了一个窗户向中心敞开的带院落的空间。
  • 形态和空间 建筑以精致的形态,裸露的混凝土和砖砌建造而成。在室内选用简化的外部材料,如裸露的混凝土和砖块,使其具有统一感。一个沐浴在自然光下的静谧小教堂由此建成。城市型的小教堂竣工了。希望这栋教堂能够成为使用者和邻里们的小型庇护所。 文字描述由建筑师提供
    译者:许珑还
    • 项目完工照片 | Finished Photos
    vsszan3909071804511.jpg
    vsszan3909071804512.jpg
    vsszan3909071804513.jpg
    vsszan3909071804514.jpg
    vsszan3909071804515.jpg
    vsszan3909071804516.jpg
    vsszan3909071804517.jpg
    vsszan3909071804518.jpg
    vsszan3909071804519.jpg
    vsszan39090718045110.jpg
    vsszan39090718045111.jpg
    vsszan39090718045112.jpg
    vsszan39090718045113.jpg
    vsszan39090718045114.jpg
    vsszan39090718045115.jpg
    vsszan39090718045116.jpg
    vsszan39090718045117.jpg
    vsszan39090718045118.jpg
    vsszan39090718045119.jpg
    vsszan39090718045120.jpg
      • 转载自:Archdaily
      • 设计师:Oh Jongsang
      • 分类:教堂
      • 语言:简体中文
      • 阅读原文
      AI文本分析中……
      AI色彩命名中……

      序赞Ai时刻等待着你的命令!~

      与Ai对话形式持续执行相关Ai智能体任务。

      暂时没有评论,你回一个呗!~

      您需要登录后才可以回帖 登录 | 注册序赞号

      快速回复 返回顶部 返回列表