工作室12公寓(2020)(T + T建筑师)设计
Residential, Moscow, Russia
  • 设计师:T+T Architects
  • 面积: 15900 m²
  • 年份:2020
  • 摄影:Ilya Ivanov
  • 建造商: Purmo, REHAU, Facro, IZOVOL, Mastech, RGC, Technoservice, Tekhnonikol, WhiteHills
  • Lead 设计师:Trukhanov Sergey Brovkin A., Makarov N., Kupriyanov V., Stepanova E., Fadeev A., Orekhova E., S singer M., Trusova O.
  • Client:KR Properties
  • Developer:KR Properties
  • City:Moscow
  • Country:Russia
  • “Studio 12” is an apartment complex for creativity, work of art entrepreneurs, and artists. Spacious lofts with attics and additional daylight, terraces, and panoramic windows allow you to easily work with space, create flexible interiors of apartments, offices, and workshops in various styles and with a wide range of functionality.
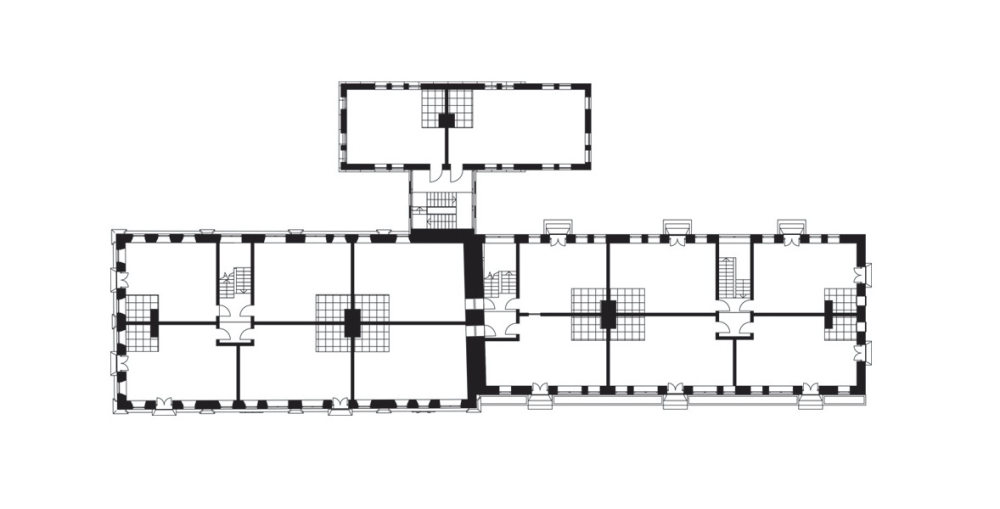
  • “Studio 12” is a continuation of the “Studio 8” project and developed in the format of complex territory revitalization. Loft-quarter consists of four buildings with a height of 3-5 floors. There are located 2-level attic apartments with additional daylight and 2-level apartments with a separate entrance. All types of apartments have a flexible layout and panoramic windows. Parking lots are carefully located along the perimeter of the complex.
  • The architectural image of the Loft-quarter, created by T+T Architects specialists, developed on the basis of images that are inspired by the location. According to the idea of the authors of the concept, this place should be associated with the era of the 60’s. This was a time of dreamers and adventurers, a time when the world needed bright architectural solutions and bold concepts.
  • In Moscow, this era is associated with the conquest of space, industrial development, construction of Ostankino TV tower. One of the starting points for creating “Studio 12” became “Zvezdny gorodok”, a tiny residential complex located near VDNH. Low-rise closed block is hidden in the quiet street but at the same time meeting the most modern standards of life and work. This non-standard and cozy project for the megapolis in which large-scale forms and regional developments prevail.
  • The industrial style of the district’s development dictated the development of the quarter in the loft-style. Elements of industrial architecture are structurally supplemented with modern engineering and design solutions. During the analysis of the area and buildings, it was decided to preserve the historical buildings that are suitable for restoration.
  • The design project is designed in the tradition of the loft-style, the architectural style combines a space for business and comfortable life. Yards are planned to be filled with original art-objects and a large amount of outdoor furniture. Green zones create a sense of comfort and security, which allows all residents to relax and work right in the yard.
  • The format of “live and work” almost not found on the territory of Moscow, but extremely popular. Ability to organize offices and workshops on the first floor and use other floors of the building for living premises won over representatives of creative professions.
    • 项目完工照片 | Finished Photos
    vsszan4172122103531.jpg
    vsszan4172122103532.jpg
    vsszan4172122103533.jpg
    vsszan4172122103534.jpg
    vsszan4172122103535.jpg
    vsszan4172122103536.jpg
    vsszan4172122103537.jpg
    vsszan4172122103538.jpg
    vsszan4172122103539.jpg
    vsszan41721221035310.jpg
    vsszan41721221035311.jpg
    vsszan41721221035312.jpg
    vsszan41721221035313.jpg
    vsszan41721221035314.jpg
    vsszan41721221035315.jpg
    vsszan41721221035316.jpg
    vsszan41721221035317.jpg
    vsszan41721221035318.jpg
    vsszan41721221035319.jpg
    vsszan41721221035320.jpg
    vsszan41721221035321.jpg
    vsszan41721221035322.jpg
    vsszan41721221035323.jpg
    vsszan41721221035324.jpg
    vsszan41721221035325.jpg
    vsszan41721221035326.jpg
    vsszan41721221035327.jpg
      • 转载自:Archdaily
      • 设计师:T+T Architects
      • 分类:Residential
      • 语言:英语
      • 阅读原文
      AI文本分析中……
      AI色彩命名中……

      序赞Ai时刻等待着你的命令!~

      与Ai对话形式持续执行相关Ai智能体任务。

      暂时没有评论,你回一个呗!~

      您需要登录后才可以回帖 登录 | 注册序赞号

      快速回复 返回顶部 返回列表