太原中海国际中心(2019)(AECOM)设计
办公设施, 太原市, 中国
  • 建筑师:AECOM
  • 面积:270747 m²
  • 项目年份:2019
  • 摄影师: Xuetao Zhang
  • 主创建筑师:钟兵
  • 设计团队:蔡洋涌,陈国强,吴尔拉,梁得昌,王蕊,褚彬,谢冬冬,代文魁
  • 施工图设计方:太原市建筑设计研究院
  • 委托方:太原冠泽置业有限公司
  • City:太原市
  • Country:中国
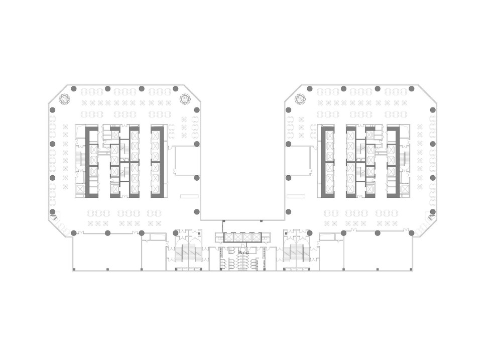
  • 由AECOM作为方案方参与设计的太原中海国际中心历时5年现已竣工,建筑面积约27万㎡,共53层,高度230米。目前是AECOM在中国区设计落成的最高的双子塔。项目集办公、商业、餐饮等功能于一体,双塔中轴线对称布局,裙房底层架空形成与城市共享的开放空间,以挺拔的晶体切割双塔结合立面优雅的曲线肌理,象征着“龙城”太原的双龙飞翔,同时也寓意汾水波动,展现出山西悠久的历史文化及自然资源特色,是太原市核心位置地标性、高品质、超高层写字楼的代表。
  • 汾河之岸 太原之心 “襟四塞之要冲,控五原之都邑”,太原有2500多年的建城史,地处太原盆地,三面环山,一水南流。本案场地东临汾河,北连迎泽大街,一条南北向的“母亲河”,一条东西向的“发展轴”,伫立在这一纵一横的双轴交汇处,几乎是太原城的几何中心,因此成为与自然、城市对话的时空节点,也是“观景”与“被观”的核心位置,由于230m的高度与21万㎡的规模,还是这个超高层组团的“龙头”,设计尝试用端庄中正的方式去契合这座文化古都渊远流长的历史及淳厚大气的气质。
  • 晶体切割 双塔对话 为了解决超高容积率带来的空间压力,平衡方正形态的效率与造型的丰富性的矛盾,对塔楼的四个转角做不同的切割动作,形成多面晶体,改善了塔楼的高细比,用不对称的单体构成中轴对称的双塔,加强双塔之间的对话与完形,让塔楼的光影更加丰富,在不同的城市界面呈现不同的表情。
  • 水平肌理 曲线意象 幕墙表皮细密的水平线条,出挑尺度有微妙的深浅变化,通过倒影和阴影加强这种变化,在垂直方向形成连续曲线波动的意象。以单元幕墙的建构方式,水平出挑构件与玻璃幕墙的分格一致并以抓点方式衔接,便于高精度安装,两者之间留出100mm缝隙,让连续的玻璃面减少积尘,更易自洁;而裙房以折面玻璃的方式与塔楼的晶体相呼应;大堂用更为通透的两层通高玻璃肋抓点幕墙来强化室内外视觉联系。
  • 双龙飞升 水波灵动 太原古称“龙城”,寓意“龙兴之地”,千年的“龙城”与万年的“汾水”,共构形成这块土地的文化底蕴和自然基因,设计通过几组垂直方向展开的曲线,既尝试创造“双龙腾飞”的动势,又表达水波荡漾的光影姿态,用轻盈抽象的手法隐喻这座城市的独特意象,也让厚重安静的建筑产生了向上的动感。
  • 开放转角 城市视野 充分利用双塔的高度和独特位置带来的景观优势,标准层采用无角柱的设计策略,强化8个转角的双向视野,使眺望汾河与城市的画面更连续通透,转角处空间感受更轻盈开扬;让双塔近观城市与汾河公园,东望太行、西眺吕梁的观景体验发挥到极致,从而让使用者拥有独特的空间记忆,和城市发生密切的关联。这种做法也使得转角在体量的切割塑造中拥有更大的灵活度。
  • 塔楼落地 裙房悬浮 塔楼体量直接落地,让塔身切面更完形,同时增加其高细比,让双塔更加挺拔利落。将折面玻璃构成的裙房抬升至空中,其下形成15m高,25m宽,40m进深,1000㎡大小的半室外、有顶盖的大尺度共享空间,释放相对局促的地面,让内外街区得以贯通。同时双大堂的主入口由正北向转至东西,朝向该广场,形成极强的对话与交流,也为室内大堂提供了有弹性的外溢空间。强化了这组建筑的城市性与开放度。
  • 结语 该项目负责人、AECOM中国区建筑设计副总裁钟兵先生说:“太原老城内有著名的“双塔寺”,一对始建于400年前高 54m的双塔,曾经俯瞰古城,承载着这座城市的悠久历史。今天,我们希望这对伫立在汾河岸边的新双塔也能成为象征城市不断演进的新标志。”
    • 项目完工照片 | Finished Photos
    vsszan4327161135171.jpg
    vsszan4327161135172.jpg
    vsszan4327161135173.jpg
    vsszan4327161135174.jpg
    vsszan4327161135175.jpg
    vsszan4327161135176.jpg
    vsszan4327161135177.jpg
    vsszan4327161135178.jpg
    vsszan4327161135179.jpg
    vsszan43271611351710.jpg
    vsszan43271611351711.jpg
    vsszan43271611351712.jpg
    vsszan43271611351713.jpg
    vsszan43271611351714.jpg
    vsszan43271611351715.jpg
    vsszan43271611351716.jpg
    vsszan43271611351717.jpg
    vsszan43271611351718.jpg
    vsszan43271611351719.jpg
    vsszan43271611351720.jpg
    vsszan43271611351721.jpg
    vsszan43271611351722.jpg
    vsszan43271611351723.jpg
    vsszan43271611351724.jpg
    vsszan43271611351725.jpg
    vsszan43271611351726.jpg
    vsszan43271611351727.jpg
    vsszan43271611351728.jpg
    vsszan43271611351729.jpg
    vsszan43271611351730.jpg
    vsszan43271611351731.jpg
    vsszan43271611351732.jpg
    vsszan43271611351733.jpg
    vsszan43271611351734.jpg
    vsszan43271611351735.jpg
    vsszan43271611351736.jpg
    vsszan43271611351737.jpg
    vsszan43271611351738.jpg
    vsszan43271611351739.jpg
    vsszan43271611351740.jpg
    vsszan43271611351741.jpg
    vsszan43271611351742.jpg
    vsszan43271611351743.jpg
    vsszan43271611351744.jpg
    vsszan43271611351745.jpg
    vsszan43271611351746.jpg
    vsszan43271611351747.jpg
    vsszan43271611351748.jpg
    vsszan43271611351749.jpg
    vsszan43271611351750.jpg
    vsszan43271611351751.jpg
    vsszan43271611351752.jpg
    vsszan43271611351753.jpg
    vsszan43271611351754.jpg
    vsszan43271611351755.jpg
    vsszan43271611351756.jpg
    vsszan43271611351757.jpg
    vsszan43271611351758.jpg
    vsszan43271611351759.jpg
    vsszan43271611351760.jpg
    vsszan43271611351761.jpg
    vsszan43271611351762.jpg
      • 转载自:Archdaily
      • 设计师:AECOM
      • 分类:办公设施
      • 语言:简体中文
      • 阅读原文
      AI文本分析中……
      AI色彩命名中……

      序赞Ai时刻等待着你的命令!~

      与Ai对话形式持续执行相关Ai智能体任务。

      暂时没有评论,你回一个呗!~

      您需要登录后才可以回帖 登录 | 注册序赞号

      快速回复 返回顶部 返回列表