澳大利亚西澳大学EZONE学生中心(2020)(Hassell)设计
大学, Crawley, 澳大利亚
  • 建筑师:Hassell
  • 面积:9656 m²
  • 项目年份:2020
  • 摄影师: Douglas Mark Black
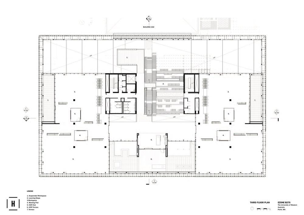
  • 西澳大学EZONE学生中心是一个学生社区与家长共享的空间,旨在为西澳大学克劳利校区提供一个全新的西面入口。该中心包括了三个工程实验室、一个高水平工作坊、14个灵活学习空间。建筑师还为该中心配置了咖啡厅和优美的室外社交空间。建筑师希望借此去营造一个促进知识交流的大学校园环境。
  • 同时,为了使得学生和家长能更好地了解这个中心的各个空间职能。校方还设计了特定的项目参访路线,让学生不错过任何一个机会与资源。同时,建筑师还将绿植引入中心的内部和屋顶,以让建筑能更好地与周边环境融为一体。
  • 建筑师试图打破传统建筑设计的内外空间界限,设计了一个能激发互动与交流合作的环境。建筑师还运用了多项可持续设计技巧,包括光伏电池玻璃天窗、风力发电机、以及能根据热量和光照调节角度的立面。同时,这种特殊的幕墙设计,还为该中心赋予了一个独特的形象符号,并呼应了校区内常见的西澳大学标志。此外,这种幕墙语言的探索,在跟中心所容纳的数学和工程学科进行致敬的同时,还提供了多个绝佳的观景图框。
  • Hassell建筑事务所的负责人David Gulland称该项目对团队内的所有人来说都是一次独特且值得纪念的体验。他说:“团队中的许多成员都毕业于西澳大学,因此这个项目的完成就具有了非凡的意义。同时,我们坚信这个中心本身会成为一个有利的学习工具:不管是开放且带有绿植的交流空间,还是学科专属的实验室环境。我们希望该中心的落成,能使整个校区成为一个知识与灵感交流碰撞的场地。”
    • 项目完工照片 | Finished Photos
    vsszan4455181738521.jpg
    vsszan4455181738522.jpg
    vsszan4455181738523.jpg
    vsszan4455181738524.jpg
    vsszan4455181738525.jpg
    vsszan4455181738526.jpg
    vsszan4455181738527.jpg
    vsszan4455181738528.jpg
    vsszan4455181738529.jpg
    vsszan44551817385210.jpg
    vsszan44551817385211.jpg
    vsszan44551817385212.jpg
    vsszan44551817385213.jpg
    vsszan44551817385214.jpg
    vsszan44551817385215.jpg
    vsszan44551817385216.jpg
    vsszan44551817385217.jpg
      • 转载自:Archdaily
      • 设计师:Hassell
      • 分类:大学
      • 语言:简体中文
      • 阅读原文
      AI文本分析中……
      AI色彩命名中……

      序赞Ai时刻等待着你的命令!~

      与Ai对话形式持续执行相关Ai智能体任务。

      暂时没有评论,你回一个呗!~

      您需要登录后才可以回帖 登录 | 注册序赞号

      快速回复 返回顶部 返回列表