圣基尔达侧院的房子(2013)(Andrew Child Architect)设计
Houses, Renovation, Melbourne, Australia
  • 设计师:Andrew Child Architect
  • 面积:  190 m²
  • 年份:2013
  • 摄影:Rhiannon Slatter
  • 建造商: Masson for Light, Miele, Aneeta Windows, Astra Walker, Dining Light, Graphisoft, Morpholio
  • 设计团队:Andrew Child
  • 业主:Jane Chapman
  • 工程师:Hocking Engineers
  • City:Melbourne
  • Country:Australia
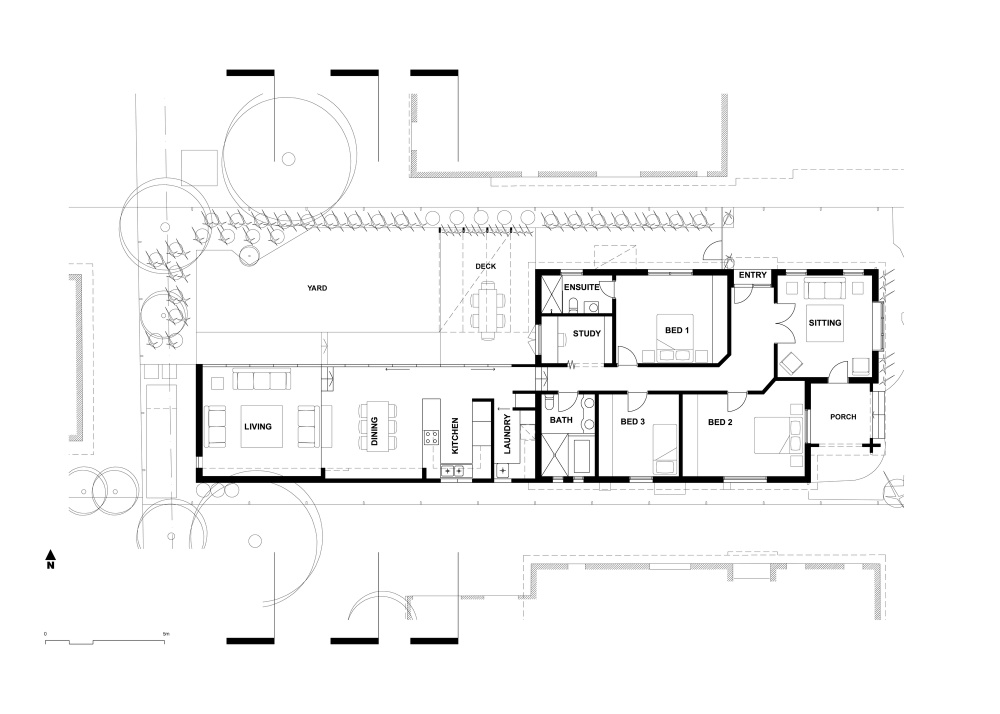
  • 设计师描述 | Designer description: In an inner suburb of Melbourne, Australia, the owners had a beautiful solid brick Federation Bungalow with an unfortunate and dark 1990’s rear extension that had no connection to its west-facing backyard. In removing the old extension and siting the new contemporary addition on the south boundary, new light-filled north-facing kitchen, dining, and living areas were created with a more useful and pleasant side yard.
  • The floor levels of this new extension closely follow those of the site to enable easy access and relationship with the new yard. This also creates a different floor to ceiling heights under a single ceiling level to create distinct yet interconnected spaces. The timber battens to the ceiling above the Dining space further distinguish it from the adjacent Kitchen and Living spaces whilst still being connected to them. All living spaces for the extension have a northerly aspect to maximise the possibility for winter solar gain. A custom-designed sunshade to the new long north elevation provides protection from harsh summer sun yet still allows maximum warming winter sun to permeate through and under to penetrate deep into the interior.
  • The concrete floor finish to the living area provides a thermal mass adjacent to the north-facing windows to maximise the benefits of this winter sun. The extension was conceived as a single volume of efficient construction. It has a simple flat roof with interconnected spaces differentiated by changes in floor level that follow the gently sloping site.
    • 项目完工照片 | Finished Photos
    vsszan4492191858111.jpg
    vsszan4492191858112.jpg
    vsszan4492191858113.jpg
    vsszan4492191858114.jpg
    vsszan4492191858115.jpg
    vsszan4492191858116.jpg
    vsszan4492191858117.jpg
    vsszan4492191858118.jpg
    vsszan4492191858119.jpg
    vsszan44921918581110.jpg
    vsszan44921918581111.jpg
    vsszan44921918581112.jpg
    vsszan44921918581113.jpg
    vsszan44921918581114.jpg
      • 转载自:Archdaily
      • 设计师:Andrew Child Architect
      • 分类:Houses
      • 语言:英语
      • 阅读原文
      AI文本分析中……
      AI色彩命名中……

      序赞Ai时刻等待着你的命令!~

      与Ai对话形式持续执行相关Ai智能体任务。

      暂时没有评论,你回一个呗!~

      您需要登录后才可以回帖 登录 | 注册序赞号

      快速回复 返回顶部 返回列表