加拉特住宅区建筑(2020)(COR Arquitectos)设计
Residential Architecture, Housing, Residential, Gallarate, Italy
  • 设计师:COR Arquitectos, Álvaro Siza
  • 面积:  3266 m²
  • 年份:2020
  • 摄影:Francesca Ióvene - fondaco studio
  • 设计团队:Álvaro Siza & COR arquitectos (Roberto Cremascoli, Edison Okumura, Marta Rodrigues)
  • Construction Supervision: Luca Morganti, Alessandro Bonicalzi
  • Structural 工程师:Alberto Battioni
  • Post Tensioned Concrete Calculations: Piero Perucchini
  • Static Testing: Pietro Boerio
  • Thermal, Electrical, Soundproofing 工程师:Gamma Progetti
  • Security Coordinator:Claudio Grimoldi
  • 合作者:Andrea Alberio, Massimo Bassani, Francesco Beia, Alessandro Fontana
  • Contractor:Bonicalzi Costruzioni
  • Timeline:2012-2020
  • Number Of Apartments:20
  • City:Gallarate
  • Country:Italy
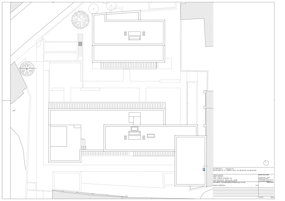
  • Written by Romullo Baratto. Situated in a suburban property in Gallarate, in the Italian region of Lombardy, stand the two blocks of travertine marble, Álvaro Siza's newest project: a housing condominium with 20 apartments developed in partnership with the Portuguese office COR Arquitectos. Facing the busy Via Roma and the peaceful Via Postporta, the complex recreates two local typologies - the Italian courtyard and the secluded villa - in a set of volumes that hints at the shapes of another one of Siza's masterpieces, the Porto School of Architecture.
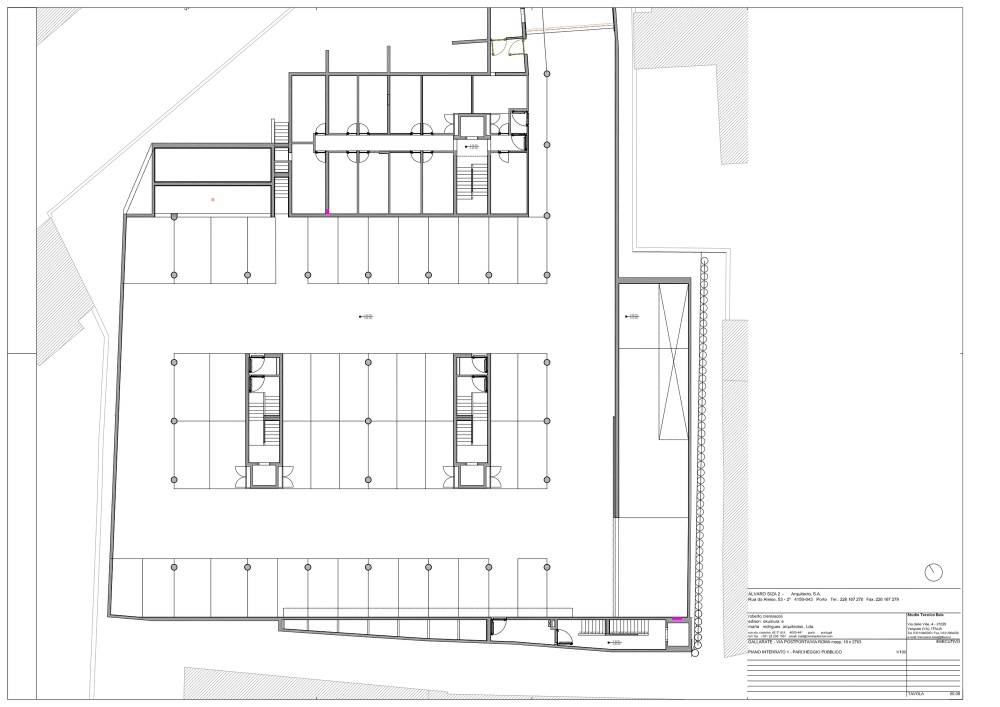
  • The project consists of two four-story blocks with two underground floors dedicated to the garage. Between the buildings, a public promenade connects the blocks and leads to a historical building that is incorporated into the complex.
  • The project seems to address a side of Siza's work that is concerned with housing issues - a program already explored in the projects for the Bouça neighborhood in Porto, Schilderswijk in The Hague, Schlesisches Tor in Berlin, and Campo di Marte in Venice. This time, however, not in the form of social housing, but of high-end apartments - made clear by the large glazed openings and marble cladding on the facades.
  • "The clients were the owners and also the builders. When the relationship with the client is going well, the work goes well too", says Roberto Cremascoli, from COR Arquitectos, in an interview with DOMUS journalist Giulia Ricci. After recently building a series of large-scale projects, mostly in Asia, it seems that his work in Italy was indeed successful, showing that when it comes to housing projects, Siza has still got it.
  • With information from DOMUS
    • 项目完工照片 | Finished Photos
    vsszan4996011551501.jpg
    vsszan4996011551502.jpg
    vsszan4996011551503.jpg
    vsszan4996011551504.jpg
    vsszan4996011551505.jpg
    vsszan4996011551506.jpg
    vsszan4996011551507.jpg
    vsszan4996011551508.jpg
    vsszan4996011551509.jpg
    vsszan49960115515010.jpg
    vsszan49960115515011.jpg
    vsszan49960115515012.jpg
    vsszan49960115515013.jpg
    vsszan49960115515014.jpg
    vsszan49960115515015.jpg
    vsszan49960115515016.jpg
    vsszan49960115515017.jpg
    vsszan49960115515018.jpg
    vsszan49960115515019.jpg
    vsszan49960115515020.jpg
    vsszan49960115515021.jpg
    vsszan49960115515022.jpg
    vsszan49960115515023.jpg
    vsszan49960115515024.jpg
    vsszan49960115515025.jpg
    vsszan49960115515026.jpg
    vsszan49960115515027.jpg
    vsszan49960115515028.jpg
    vsszan49960115515029.jpg
    vsszan49960115515030.jpg
    vsszan49960115515031.jpg
    vsszan49960115515032.jpg
    vsszan49960115515033.jpg
    vsszan49960115515034.jpg
    vsszan49960115515035.jpg
    vsszan49960115515036.jpg
    vsszan49960115515037.jpg
    vsszan49960115515038.jpg
    vsszan49960115515039.jpg
    vsszan49960115515040.jpg
    vsszan49960115515041.jpg
    vsszan49960115515042.jpg
    vsszan49960115515043.jpg
    vsszan49960115515044.jpg
    vsszan49960115515045.jpg
    vsszan49960115515046.jpg
    vsszan49960115515047.jpg
    vsszan49960115515048.jpg
    vsszan49960115515049.jpg
    vsszan49960115515050.jpg
    vsszan49960115515051.jpg
    vsszan49960115515052.jpg
    vsszan49960115515053.jpg
    vsszan49960115515054.jpg
    vsszan49960115515055.jpg
    vsszan49960115515056.jpg
    vsszan49960115515057.jpg
    vsszan49960115515058.jpg
    vsszan49960115515059.jpg
    vsszan49960115515060.jpg
    vsszan49960115515061.jpg
    vsszan49960115515062.jpg
    vsszan49960115515063.jpg
    vsszan49960115515064.jpg
    vsszan49960115515065.jpg
    vsszan49960115515066.jpg
      • 转载自:Archdaily
      • 设计师:COR Arquitectos
      • 分类:Residential Architecture
      • 语言:英语
      • 阅读原文
      AI文本分析中……
      AI色彩命名中……

      序赞Ai时刻等待着你的命令!~

      与Ai对话形式持续执行相关Ai智能体任务。

      暂时没有评论,你回一个呗!~

      您需要登录后才可以回帖 登录 | 注册序赞号

      快速回复 返回顶部 返回列表