韩国两路之间‘桥梁’咖啡馆(2020)(Studio stof)设计
适应性利用, 咖啡店室内设计, Yongsan-gu, 韩国
  • 建筑师:Studio stof
  • 面积:105 m²
  • 项目年份:2020
  • 摄影师: Kim Donggyu
  • 厂家:AGO, Artemide, Beech wood, Flos, Haustone
  • 设计团队:Studio stof, Park Seongjae, Lee Seongmo, Kwon Yoonsun
  • 客户:Seo Kimoon, Kang Hoyong
  • City:Yongsan-gu
  • Country:韩国
  • 毫不夸张地说,韩国正在经历着前所未有的复兴的咖啡业开始于小型烘培店的活力。这个国家的年轻烘培师持续引领着这个行业的发展,践行着自己的价值观。
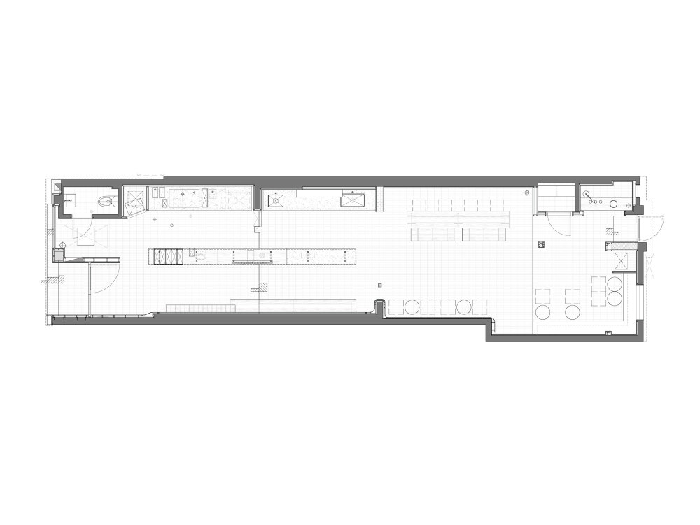
  • 其中的一家咖啡店是韩国的咖啡烘培品牌庞特( PONT ),它在首尔开设了一家展示厅,空间设计工作室 STOF为其翻修了一家的老旧的木制房屋。庞特所在的首尔永山是一个高楼林立、老旧社区并存的地区,那里的时间几乎停止流动。PONT 的空间原本是一个长条形的建立于1940年代的铁路办公室,当时连接了这个城镇两个水平的道路。它面对每条路的面都有一个门,那看起来像一个通往街区的捷径。
  • STOF 董事朴成杰认为,PONT(法语意义为桥梁)的品牌价值在于联系生产者和消费者,这也符合建筑的联系两条道路的空间结构。因此,为了在视觉上强调“联系之路”这个意象,STOF刻意放置了墙体、天花板等,作为反映区域道路的设施,并引导空间内人的活动。
  • 空间内的柱子和天花板拥有各种材质,例如砖块、金属和木材,它们是保留下的见证历史的结构物,显示了时光流逝的痕迹。从外到内,单层墙体轻轻地将原有墙体包裹成一个曲面,并引导空间内地移动,地板上的土红色创造了这个空间作为通往不同道路的通道的意象,而不是仅仅把它塑造为一个商店的内部。
  • 一个长的纵向木制吧台看起来像一个通往入口的桥梁,它既是咖啡师的工作空间,优势咖啡师与顾客的交流地点。这样,它被设计成在视觉上尽量无阻挡得地方,另一侧摆放的顾客的长椅围合出一个开敞自由的空间。
    文字描述由建筑师提供
    译者:李熙盈


    • 项目完工照片 | Finished Photos
    vsszan5185061423011.jpg
    vsszan5185061423012.jpg
    vsszan5185061423013.jpg
    vsszan5185061423014.jpg
    vsszan5185061423015.jpg
    vsszan5185061423016.jpg
    vsszan5185061423017.jpg
    vsszan5185061423018.jpg
    vsszan5185061423019.jpg
    vsszan51850614230110.jpg
    vsszan51850614230111.jpg
    vsszan51850614230112.jpg
    vsszan51850614230113.jpg
    vsszan51850614230114.jpg
    vsszan51850614230115.jpg
    vsszan51850614230116.jpg
    vsszan51850614230117.jpg
    vsszan51850614230118.jpg
      • 转载自:Archdaily
      • 设计师:Studio stof
      • 分类:适应性利用
      • 语言:简体中文
      • 阅读原文
      AI文本分析中……
      AI色彩命名中……

      序赞Ai时刻等待着你的命令!~

      与Ai对话形式持续执行相关Ai智能体任务。

      羊暖心2021-7-22 16:11:01
      舒适的 空间诀绝子
      LEECR2021-8-11 10:33:17
      谢谢分享!!!谢谢分享!!!!66666666666
      您需要登录后才可以回帖 登录 | 注册序赞号

      快速回复 返回顶部 返回列表