美国劳伦斯灰街722号住宅(2020)(Studio 804)设计
Landscape Architecture, Houses, Lawrence, United States
  • 设计师:Studio 804
  • 面积:  2000 ft²
  • 年份:2020
  • 摄影:Corey Gaffer – Gaffer Photography
  • 建造商: AutoDesk, FunderMax, Owens Corning, Tremco, ConTech Lighting, Daltile, Elkay, Fisher & Paykel, Hansgrohe, Kohler, Pella EFCO, Prosoco, Richlite, Sherwin-Williams, 475 High Performance Building Supply, Architectural Grille, Atlas Roofing, Bradford White, Cleveland Forge, Draper Shade, +24Duravit, EXLTUBE, Famco, Fiberlite Technologies, Inc., Jamsill, Knight Wall Systems, MOSA Tile via Virginia Tile, National Gypsum, OTIIMA, Penofin, Renvu, Richelieu, SFS Intec, Samsung, Schluter System, Square D, Steel It, Stego, Sunlite Science & Technology, Tristar Glass inc, VaproShield, Velux, WR Meadows, WT Shade-24
  • Lead 设计师:Studio 804, Inc. University of Kansas, School of Architecture and Design Dan Rockhill, Executive Director and Distinguished Professor
  • Students Of Studio 804 2020:Abbie Ford Abby Eleeson Ace Brown Brady Whitehill Casey Chura Dakota Tubbs Gabby Foster Jack Swezy Jean-Marc Juston Kaitlyn Hoines Kelly Schorn Leah Ferrara Lindsey Freund Maddy Irwin Maggy Dickherber Nate Hulse Norah Swift Riley Estrada Ryan Evenson Tiffany Nguyen Vinny Hyunh
  • Structural Engineer:Barney Schwabauer, Norton & Schmidt
  • City: Lawrence
  • Country:United States
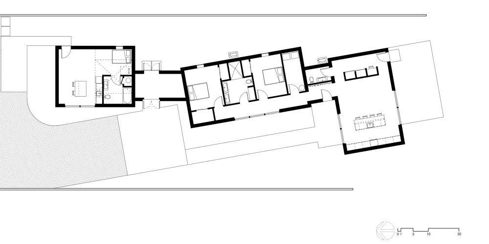
  • 设计师描述 | Designer description: The 722 Ash Street House consists of a 1500 sf primary house with a contiguous 500 sf accessory dwelling. The project is set in the rich culture of North Lawrence, its rear property line abuts the Lawrence levee trail which runs for nine miles along the north bank of the Kansas River.
  • North Lawrence is known for its quality soil, large trees, curbless streets and random size parcels before it breaks into larger farms further from the urban center. It is built on the typical orthogonal grid of American development, but it represents the older growth of the city prior to urban planners and zoning regulations. The rumble of freight trains and farm trucks in the shadows of the towering grain elevators are only blocks away. It is home to many who enjoy being only a bridge crossing away from Lawrence’s vibrant downtown but are far enough away to maintain their independence from many of the restrictions on living near the historic district. They can work in their large gardens and toiling in their garages and shops in a manner more rural than urban.
  • The house on 722 Ash St. is imbued with the character of North Lawrence and the Levee Trail area. The design was inspired by the Midwestern farmstead vernacular of the region. These timeless vernacular qualities house all the accommodations necessary for modern, sustainable living. A unique feature of this house is the Accessory Dwelling Unit permitted in the zoning district. It is a small separate residence on the same lot that can be used for income property or for extended family members. It also supports the city of Lawrence’s goals of increased density close to downtown rather than continued sprawl into the countryside.
  • The buildings use technology and common-sense design to reduce the building’s footprint and assure the owners low energy use and costs. A 4.9 Kw solar collection system is located on the only south facing gable and the super insulated envelopes (r-62 roof and r-35 walls) of all three forms easily exceeds the standards. Studio 804 continues their long standing pattern of maintaining the highest level of sustainable design while remaining contextually sensitive to the surrounding community. This house, like every Studio 804 project since 2008, is USGBC LEED Platinum Certified.
  • Studio 804 is a comprehensive one year fully hands on design build experience offered by the University of Kansas Department of Architecture. It is a not-for profit 501(c)3 corporation whose participants are graduate students committed to the continued research and development of affordable, sustainable and inventive building solutions. We design and build a new building every year.  
  • Studio 804 are leaders in sustainable design and has competed 14 LEED Platinum Certified buildings and 3 Passive House Institute US certified buildings. All designed and built by students. 
    • 项目完工照片 | Finished Photos
    vsszan6140270936211.jpg
    Ai图片分析,需要登录阅读
    vsszan6140270936212.jpg
    Ai图片分析,需要登录阅读
    vsszan6140270936213.jpg
    Ai图片分析,需要登录阅读
    vsszan6140270936214.jpg
    Ai图片分析,需要登录阅读
    vsszan6140270936215.jpg
    Ai图片分析,需要登录阅读
    vsszan6140270936216.jpg
    Ai图片分析,需要登录阅读
    vsszan6140270936217.jpg
    Ai图片分析,需要登录阅读
    vsszan6140270936218.jpg
    Ai图片分析,需要登录阅读
    vsszan6140270936219.jpg
    Ai图片分析,需要登录阅读
    vsszan61402709362110.jpg
    Ai图片分析,需要登录阅读
    vsszan61402709362111.jpg
    Ai图片分析,需要登录阅读
    vsszan61402709362112.jpg
    Ai图片分析,需要登录阅读
    vsszan61402709362113.jpg
    Ai图片分析,需要登录阅读
    vsszan61402709362114.jpg
    Ai图片分析,需要登录阅读
    vsszan61402709362115.jpg
    Ai图片分析,需要登录阅读
    vsszan61402709362116.jpg
    Ai图片分析,需要登录阅读
    vsszan61402709362117.jpg
    Ai图片分析,需要登录阅读
    vsszan61402709362118.jpg
    Ai图片分析,需要登录阅读
    vsszan61402709362119.jpg
    Ai图片分析,需要登录阅读
    vsszan61402709362120.jpg
    Ai图片分析,需要登录阅读
    vsszan61402709362121.jpg
    Ai图片分析,需要登录阅读
    vsszan61402709362122.jpg
    Ai图片分析,需要登录阅读
      • 转载自:Archdaily
      • 设计师:Studio 804
      • 分类:Landscape Architecture
      • 语言:英语
      • 阅读原文
      Ai 分析中……

      暂无用户创作记录!~

      记录用户以此项目图片为灵感使用Ai进行二次创作。

      暂时没有评论,你回一个呗!~

      您需要登录后才可以回帖 登录 | 注册序赞号

      快速回复 返回顶部 返回列表