葡萄牙阿莫拉住宅(2020)(CTRL + Architects)设计
Apartamentos, São Paulo, Brasil
  • 设计师:CTRL + Architects
  • 面积:3600 m²
  • 年份:2020
  • 摄影:Maura Mello
  • 建造商:Adobe, AutoDesk, Concresteel, Deca, Eliane, Ibratin, Microsoft, Pormade, Sherwin-Williams, Thyssen-Krupp, Trisoft
  • Arquitetos Responsáveis:Anna Rossi, Felipe Gallani, Stefano Fiocca
  • 客户:Amici Incorporadora
  • 工程:Pasqua e Graziano
  • Engenharia 1:IN prediais
  • Engenharia 2:MGA Solos
  • 景观设计:Gabriella Ornaghi e Bianca Vasone
  • Consultor 1:GP&D
  • Consultor 2:Kaplan Ambiental
  • Consultor 3:Claudinei Passoni
  • Cidade:São Paulo
  • País:Brasil
  • 设计师描述 | Designer description:Em uma cidade como São Paulo, onde os apartamentos são tipicamente construídos numa lógica de linha de produção, desprovidos de identidade própria, criar um verdadeiro lar se torna um dos desafios da nossa vida moderna. Assim, o projeto pode ser uma ferramenta para destacar identidades positivamente. Localizado no limite da cidade, o Edifício Amora foi construído a partir da antiga casa dos avós de um dos arquitetos, carregando toda a memória afetiva de uma construção tradicional do bairro. Seu principal partido foi a busca por espaços e elementos que não fossem agressivos ao contexto em que está inserido, manifestando fragmentos dessa memória aos moradores, pedestres e vizinhos. O projeto se organizou a partir de um único volume que, aberto em suas circulações comuns, se faz permeável, privilegiando o contato com a paisagem do bairro e sua massa verde.
  • Ao atravessar o plano de entrada do edifício, feito em chapas expandidas de alumínio, o morador mantém o contato com o horizonte, atravessando percursos abertos e cobertos que conectam as áreas de interesse. A transição apartamento-cidade pode então ser desfrutada, recuperando a importância de se valorizar o momento durante, em trânsito, além do estar. Sustentabilidade foi outro ponto importante, que refletiu na decisão de não alterar bruscamente a topografia do terreno, dispondo a garagem em nível com a rua e aproveitando o recuo do fundo para a construção de uma horta e pomar comunitários. O recuo frontal também foi aproveitado para dispor uma massa verde que envolve todos os acessos do edifício, voltada para a rua e não para o interior. De certa forma, estes jardins procuram recuperar os Pinheiros de Natal e Amoreiras – origem do nome do edifício – que existiam na antiga casa.
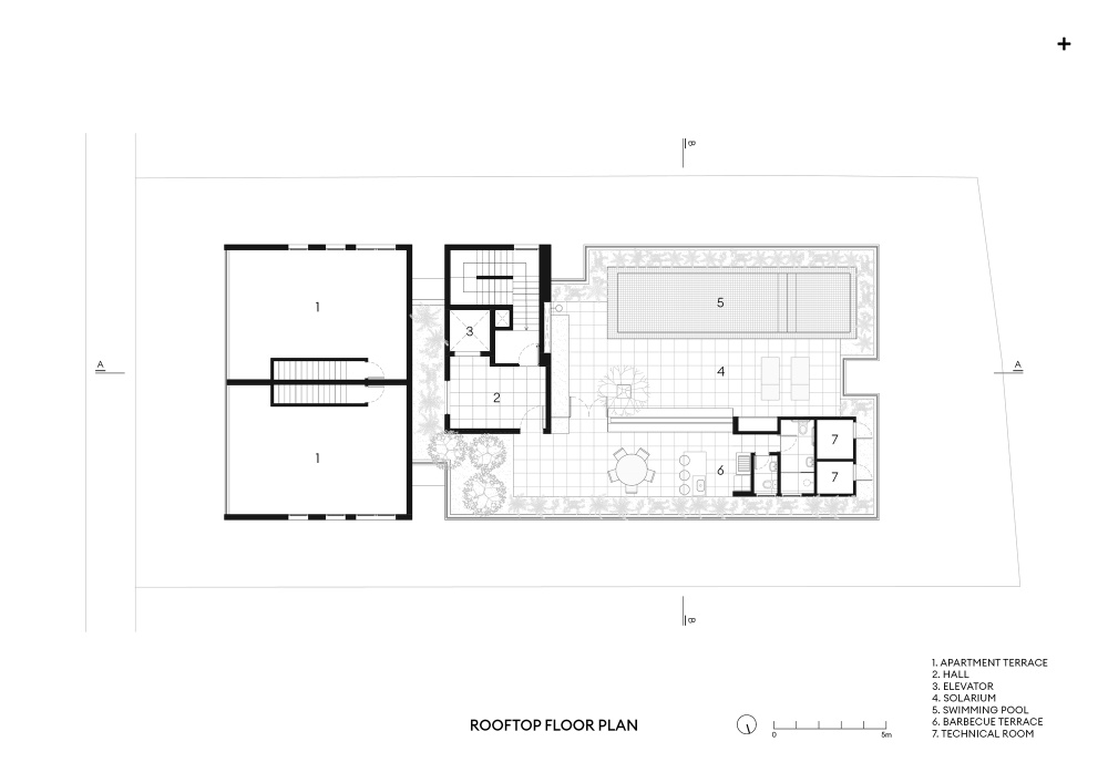
  • Os apartamentos foram projetados pensando na necessidade dos moradores da região:estúdios para estudantes e apartamentos compactos para pequenas famílias. Cada uma das plantas foi pensada para garantir flexibilidade adaptativa dos espaços, permitindo a ampliação com apartamentos adjacentes. Por isso, a reconfiguração das plantas em todos os pavimentos é livre. Essa variabilidade da tipologia procura a melhor adequação do edifício aos moradores, e não o contrário. Em sua cobertura, por fim, os percursos contínuos e diários encontram um descanso, disponível a todos. Uma generosa piscina, espaço para festas, churrascos e encontros é cercado por um jardim que percorre todo o perímetro. A vista para o parque faz lembrar o valor e privilégio de ainda se ter contato com a natureza.
    • 项目完工照片 | Finished Photos
    vsszan6268291645131.jpg
    vsszan6268291645132.jpg
    vsszan6268291645133.jpg
    vsszan6268291645134.jpg
    vsszan6268291645135.jpg
    vsszan6268291645136.jpg
    vsszan6268291645137.jpg
    vsszan6268291645138.jpg
    vsszan6268291645139.jpg
    vsszan62682916451310.jpg
    vsszan62682916451311.jpg
    vsszan62682916451312.jpg
    vsszan62682916451313.jpg
    vsszan62682916451314.jpg
    vsszan62682916451315.jpg
    vsszan62682916451316.jpg
    vsszan62682916451317.jpg
    vsszan62682916451318.jpg
    vsszan62682916451319.jpg
    vsszan62682916451320.jpg
    vsszan62682916451321.jpg
    vsszan62682916451322.jpg
    vsszan62682916451323.jpg
    vsszan62682916451324.jpg
    vsszan62682916451325.jpg
    vsszan62682916451326.jpg
    vsszan62682916451327.jpg
    vsszan62682916451328.jpg
      • 转载自:Archdaily
      • 设计师:CTRL + Architects
      • 分类:Apartamentos
      • 语言:葡萄牙语
      • 阅读原文
      AI文本分析中……
      AI色彩命名中……

      序赞Ai时刻等待着你的命令!~

      与Ai对话形式持续执行相关Ai智能体任务。

      暂时没有评论,你回一个呗!~

      您需要登录后才可以回帖 登录 | 注册序赞号

      快速回复 返回顶部 返回列表