巴西Petry之家(2019)(Estúdio MRGB)设计
Casas, Brasilia, Brasil
  • 设计师:Estúdio MRGB
  • 面积:420 .0m²
  • 年份:2019
  • 摄影:Hermes Romão
  • 建造商:Alutec, Bontempo, Centrogran, Deca, Hill House, Lumini, Madipê, Portinari
  • Arquitetos Responsáveis:Igor Campos, Hermes Romão, Rodolfo Marques
  • 设计团队:Ana Orefice, Ana Carolina Moreth, Filipe Bresciani, Larissa Pontes, Lucas Felipe Campos
  • 工程:André Torres
  • 景观设计:Ana Paula Roseo
  • Cidade:Brasilia
  • País:Brasil
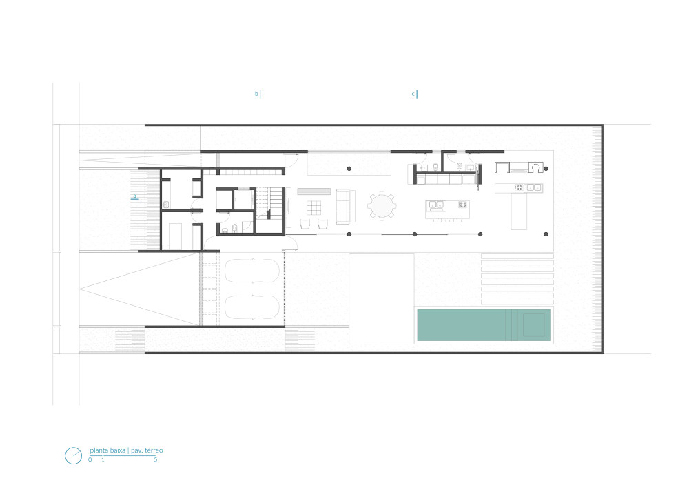
  • 设计师描述 | Designer description:Localizada em um condomínio de Brasília, o projeto da Casa Petry é fruto de uma análise criteriosa do terreno e de suas características. Trata-se, portanto, de uma obra cuja essência baseia-se na identificação das particularidades do lote e do entorno. O sítio é fisicamente caracterizado por um desnível longitudinal de um metro e vinte centímetros, com dimensões de dezessete por trinta e cinco metros. Além disso, os lotes vizinhos têm sua ocupação consolidada e definida por residências que ocupam a porção frontal dos lotes em sua totalidade, com alturas significativas.
  • Logo, os seguintes desafios foram lançados e, naturalmente, as respostas que construímos estabeleceream-se como fio condutor para o projeto da residência:
    [1] Como inserir uma obra de aproximadamente 470.0m² de área a ser construída em dois pavimentos, tendo em vista as restrições dimensionais do lote'>
vsszan6272291745461.jpg
Ai图片分析,需要登录阅读
vsszan6272291745462.jpg
Ai图片分析,需要登录阅读
vsszan6272291745463.jpg
Ai图片分析,需要登录阅读
vsszan6272291745464.jpg
Ai图片分析,需要登录阅读
vsszan6272291745465.jpg
Ai图片分析,需要登录阅读
vsszan6272291745466.jpg
Ai图片分析,需要登录阅读
vsszan6272291745467.jpg
Ai图片分析,需要登录阅读
vsszan6272291745468.jpg
Ai图片分析,需要登录阅读
vsszan6272291745469.jpg
Ai图片分析,需要登录阅读
vsszan62722917454610.jpg
Ai图片分析,需要登录阅读
vsszan62722917454611.jpg
Ai图片分析,需要登录阅读
vsszan62722917454612.jpg
Ai图片分析,需要登录阅读
vsszan62722917454613.jpg
Ai图片分析,需要登录阅读
vsszan62722917454614.jpg
Ai图片分析,需要登录阅读
vsszan62722917454615.jpg
Ai图片分析,需要登录阅读
vsszan62722917454616.jpg
Ai图片分析,需要登录阅读
vsszan62722917454617.jpg
Ai图片分析,需要登录阅读
vsszan62722917454618.jpg
Ai图片分析,需要登录阅读
vsszan62722917454619.jpg
Ai图片分析,需要登录阅读
vsszan62722917454620.jpg
Ai图片分析,需要登录阅读
vsszan62722917454621.jpg
Ai图片分析,需要登录阅读
vsszan62722917454622.jpg
Ai图片分析,需要登录阅读
vsszan62722917454623.jpg
Ai图片分析,需要登录阅读
vsszan62722917454624.jpg
Ai图片分析,需要登录阅读
    转载自:Archdaily
  • 设计师:Estúdio MRGB
  • 分类:Casas
  • 语言:葡萄牙语
  • 阅读原文
Ai 分析中……

暂无用户创作记录!~

记录用户以此项目图片为灵感使用Ai进行二次创作。

暂时没有评论,你回一个呗!~

您需要登录后才可以回帖 登录 | 注册序赞号

快速回复 返回顶部 返回列表