巴西里瓦斯公寓(2018)(Estúdio MRGB)设计
Houses, House Interiors, Brazil
  • 设计师:Estúdio MRGB
  • 面积:  750 m²
  • 年份:2018
  • 摄影:Joana França
  • 建造商: Arquivo Contemporâneo, Arte ofício, Chance, Deca, Evviva Bertolini, Hill House, Marmoraria Alvorada, Porinari, Raspatac, TG Technical Group, Vidromex
  • Lead 设计师:Bruno Ribas, Igor Campos, Hermes Romão, Rodolfo Marques
  • Project Team:Ana Orefice, Flávia Groba
  • 工程师:Stumm Engenharia
  • Lanscape:Ana Paula Roseo
  • Country:Brazil
  • 设计师描述 | Designer description: Placed 20 kilometers apart from Brasília’s Plano Piloto center, the Casa Ribas overhangs in a plot with reduced dimensions and appropriates it in a way to balance the privacy-conviviality binom.
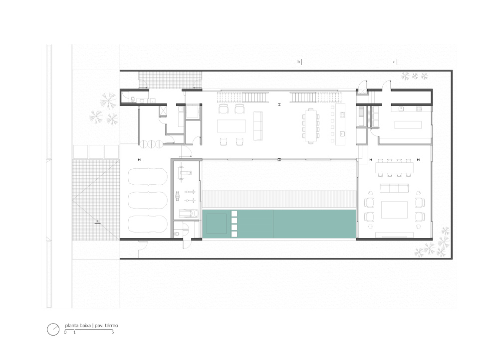
  • Four concrete walls placed longitudinally and spanning fifteen meters from each other anchors, inside its limits, two steel pavilions separated by a patio. This initial partí structures the house in a way to dispose of these metallic pieces the intimate spaces and, beneath their shadows, the communal spaces.  
  • The patio was articulated here as the central element of spatial organization. It was placed to distribute light and vegetation in a panoramic way to the ground floor level and to produce a silent communication with the upper floor level.
  • The load-bearing concrete walls, afar from their static duty to anchor the steel beams the structures of the upper pavilions, also have an infrastructural character - it withholds service spaces on the ground floor and, circulation on the upper floor.
  • It is possible to say that the ensemble generated from the project’s actions and interactions resulted, therefore, a house where the re-establishment of a nonexistent landscape must be strong enough to establish dialogues: sometimes more silent, sometimes more outspoken.
    • 项目完工照片 | Finished Photos
    vsszan6313301435111.jpg
    vsszan6313301435112.jpg
    vsszan6313301435113.jpg
    vsszan6313301435114.jpg
    vsszan6313301435115.jpg
    vsszan6313301435116.jpg
    vsszan6313301435117.jpg
    vsszan6313301435118.jpg
    vsszan6313301435119.jpg
    vsszan63133014351110.jpg
    vsszan63133014351111.jpg
    vsszan63133014351112.jpg
    vsszan63133014351113.jpg
    vsszan63133014351114.jpg
    vsszan63133014351115.jpg
    vsszan63133014351116.jpg
    vsszan63133014351117.jpg
    vsszan63133014351118.jpg
    vsszan63133014351119.jpg
    vsszan63133014351120.jpg
    vsszan63133014351121.jpg
    vsszan63133014351122.jpg
    vsszan63133014351123.jpg
      • 转载自:Archdaily
      • 设计师:Estúdio MRGB
      • 分类:Houses
      • 语言:英语
      • 阅读原文
      AI文本分析中……
      AI色彩命名中……

      序赞Ai时刻等待着你的命令!~

      与Ai对话形式持续执行相关Ai智能体任务。

      暂时没有评论,你回一个呗!~

      您需要登录后才可以回帖 登录 | 注册序赞号

      快速回复 返回顶部 返回列表