意大利GNR Il通用住宅改建(2019)(Archisbang)设计
公寓, 更新项目, 伊夫雷亚, 意大利
  • 建筑师:Archisbang
  • 面积:450 m²
  • 项目年份:2019
  • 摄影师: Aldo Amoretti
  • 设计团队:Silvia Minutolo, Marco Giai Via, Alberto Perino
  • 结构工程:Marco Cuccureddu
  • 建造商:Perino Costruzioni S.r.l.
  • City:伊夫雷亚
  • Country:意大利
  • 该项目的设计包括提高能源使用效率和翻新结构,并将这个来自上个世纪六十年代的住宅重新打造,将其分为三个独立的公寓。人们可以从原有的结构中欣赏到建筑庞大的体量,这也与周边伊夫雷亚丘陵的居民区形成了强烈的对比。该项目则通过移除原有建筑中的所有悬挑部分突出了其巨大的体积,并且建筑中的虚与实都被重新设计,成为大的方形开口,而屋顶空间则会被改造为可用区域,成为私人屋顶,让住户可以从这里欣赏到阿尔卑斯山和伊夫雷亚山的美景。
  • 建筑仅保留了骨架,并对其进行了加固,以提高它的抗震性能。能源效率的提高设计包括了外部的隔热系统,它覆有由天然石灰砂浆粗糙涂抹在表面的轻质水泥板。该建筑庞大的存在让人们对其有着堡垒的印象,这一特征与其中的块透明开口形成了鲜明对比。建筑物与地面严肃紧密的关系则由一块巨石强调,它也是建筑所在的地方。建筑师在南面对负空间的设计和两倍层高的空间让这块重要的石头可以被所有楼层看见。
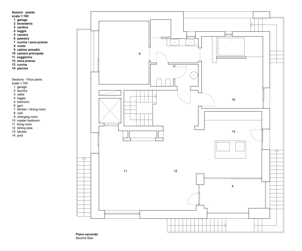
  • 为了满足当今不断变化的社会对建筑灵活度的需求,建筑被分为三个单元:三个公寓、三处入口和三种覆在立面上的饰面。一层为车库和岩石酒窖。所有公寓单元都可以通过电梯和室内楼梯到达,外部金属楼梯则让公寓入口和屋顶入口互相独立。在二层,每两个小型公寓共享了一个起居空间,它可以根据需求使用可以180度旋转的木制面板进行重新建造。
  • 主要公寓位于顶层,屋顶则被在北侧的林木环绕。主卧的墙面由粗糙的钢筋混凝土制成,该材料不仅仅重新打造了已有的结构,也撑起了屋顶的泳池。流水般的内部空间墙面则也被粗糙涂抹,以此与外部保持连贯性,而地面则由抛光混凝土构成,并有着磨细混凝土和镶木地板在其中点缀。建筑通过定制家具、木门和窗户,以及绿色森林的壮丽景观,和在公寓不同高度所切割的轻盈开口,以此缓和了直线条所带来的肃穆氛围。
    译者:黄菁菲 Jingfei Huang
    • 项目完工照片 | Finished Photos
    vsszan8392121458581.jpg
    vsszan8392121458582.jpg
    vsszan8392121458583.jpg
    vsszan8392121458584.jpg
    vsszan8392121458585.jpg
    vsszan8392121458586.jpg
    vsszan8392121458587.jpg
    vsszan8392121458588.jpg
    vsszan8392121458589.jpg
    vsszan83921214585810.jpg
    vsszan83921214585811.jpg
    vsszan83921214585812.jpg
    vsszan83921214585813.jpg
    vsszan83921214585814.jpg
    vsszan83921214585815.jpg
    vsszan83921214585816.jpg
    vsszan83921214585817.jpg
    vsszan83921214585818.jpg
    vsszan83921214585819.jpg
    vsszan83921214585820.jpg
    vsszan83921214585821.jpg
    vsszan83921214585822.jpg
    vsszan83921214585823.jpg
    vsszan83921214585824.jpg
    vsszan83921214585825.jpg
    vsszan83921214585826.jpg
    vsszan83921214585827.jpg
    vsszan83921214585828.jpg
    vsszan83921214585829.jpg
    vsszan83921214585830.jpg
    vsszan83921214585831.jpg
    vsszan83921214585832.jpg
    vsszan83921214585833.jpg
    vsszan83921214585834.jpg
      • 转载自:Archdaily
      • 设计师:Archisbang
      • 分类:公寓
      • 语言:简体中文
      • 阅读原文
      AI文本分析中……
      AI色彩命名中……

      序赞Ai时刻等待着你的命令!~

      与Ai对话形式持续执行相关Ai智能体任务。

      暂时没有评论,你回一个呗!~

      您需要登录后才可以回帖 登录 | 注册序赞号

      快速回复 返回顶部 返回列表