越南生境NT之家(2020) (Flex.atelier)设计
Casas, Vietnã
  • 设计师:Flex.atelier
  • 面积:190 m²
  • 年份:2020
  • 摄影:Minq Bui
  • 建造商:Aconcept, An Cuong, Toto
  • Arquitetos Responsáveis :Khoi Le
  • 设计团队:Flex.atelier
  • País:Vietnã
  • 设计师描述 | Designer description:Localizado em Phan Thiet, uma cidade no Vietnã que tem um clima quente e seco durante todo o ano, o projeto Habitat NT consiste na renovação e transformação de um pequeno armazém em uma residência para uma família com quatro pessoas.
  • Funcionalidade sempre foi um dos principais conceitos deste projeto. Como resultado, os arquitetos, primeiramente, entenderam as necessidades dos clientes e então observaram o local, buscando desenhar uma casa que não somente melhorasse o convívio, mas que também harmonizasse com os fatores externos. A casa consiste, portanto, em áreas abertas que conectam e áreas fechadas que dão privacidade. Essas áreas mais reservadas incluem os banheiros e dormitórios, enquanto as áreas mais abertas são o escritório, a cozinha e o espaço de brincar das crianças. Todos esses espaços se conectam a uma abertura zenital localizada no meio da casa, a qual serve a muitos propósitos como aumentar a ventilação natural para diminuir o calor devido ao clima local, e também promover luz natural durante o dia, reduzindo consumo elétrico.
  • O projeto usa concreto armado para a estrutura e os pés direito são altos para permitir maior fluxo de ventilação. A fachada é feita de tijolos fabricados localmente, e foram cuidadosamente instalados, o que valoriza toda a estrutura, criando permeabilidade que permite que o ar flua de dentro para fora, e promove também visibilidade para os moradores. Além disso, a parede branca reduz a absorção de luz solar, o que também coopera para o conforto interno.
  • No térreo é onde se concentram os espaços coletivos, onde a família mais se encontra. Como os pais costumam trabalhar em casa, o escritório tem vista para os espaços coletivos, onde eles conseguem ver seus filhos durante o dia. Uma pequena biblioteca se esconde abaixo da escada, onde as crianças leem ou tiram uma soneca. A área de brincar das crianças foi projetada como a área central da casa, que é rebaixada, representando um espaço de refeições diariamente, mas facilmente revertida para espaço de brincadeiras onde toda a família pode se reunir.
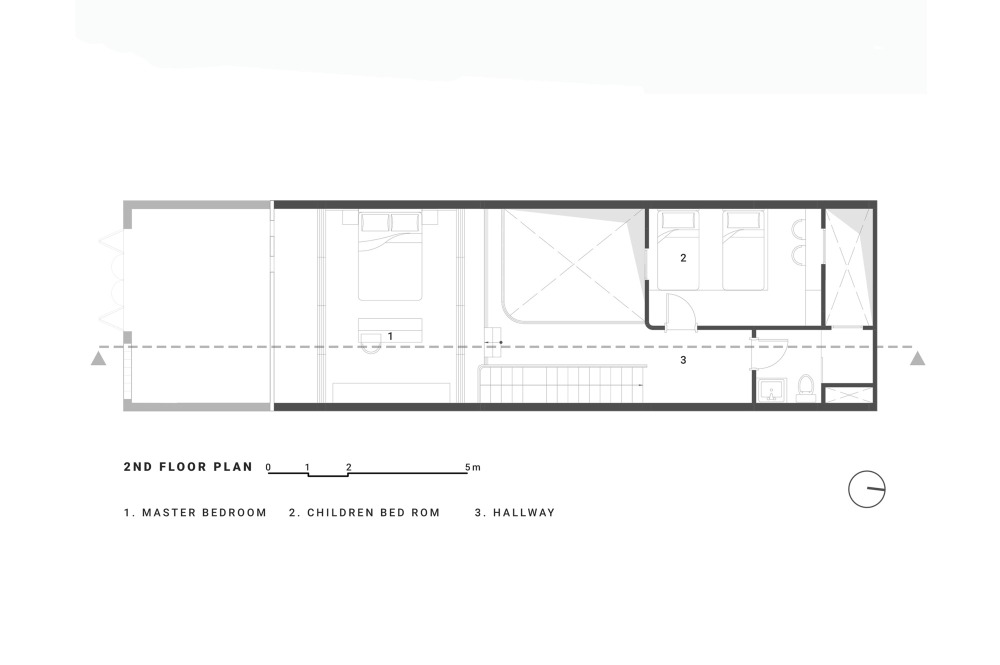
  • No segundo pavimento, a ideia de que fora é tudo claro e dentro tudo é mais escuro, mais confortável, se revela, pois os quartos são aconchegantes enquanto as sombras nas paredes do corredor aparecem à medida que o dia avança. Ao combinar os ladrilhos cinza e o mosaico verde do banheiro, cria-se uma sensação relaxante aos moradores. Ao elevar o quarto de casal, esse espaço se distingue do seu entorno, e ao abrir as portas o espaço fica mais arejado.
    • 项目完工照片 | Finished Photos
    vsszan8913240106041.jpg
    vsszan8913240106042.jpg
    vsszan8913240106043.jpg
    vsszan8913240106044.jpg
    vsszan8913240106045.jpg
    vsszan8913240106046.jpg
    vsszan8913240106047.jpg
    vsszan8913240106048.jpg
    vsszan8913240106049.jpg
    vsszan89132401060410.jpg
    vsszan89132401060411.jpg
    vsszan89132401060412.jpg
    vsszan89132401060413.jpg
    vsszan89132401060414.jpg
    vsszan89132401060415.jpg
    vsszan89132401060416.jpg
    vsszan89132401060417.jpg
    vsszan89132401060418.jpg
    vsszan89132401060419.jpg
    vsszan89132401060420.jpg
    vsszan89132401060421.jpg
    vsszan89132401060422.jpg
    vsszan89132401060423.jpg
    vsszan89132401060424.jpg
    vsszan89132401060425.jpg
    vsszan89132401060426.jpg
    vsszan89132401060427.jpg
    vsszan89132401060428.jpg
    vsszan89132401060429.jpg
    vsszan89132401060430.jpg
    vsszan89132401060431.jpg
    vsszan89132401060432.jpg
    vsszan89132401060433.jpg
    vsszan89132401060434.jpg
    vsszan89132401060435.jpg
      • 转载自:Archdaily
      • 设计师:Flex.atelier
      • 分类:Casas
      • 语言:葡萄牙语
      • 阅读原文
      AI文本分析中……
      AI色彩命名中……

      序赞Ai时刻等待着你的命令!~

      与Ai对话形式持续执行相关Ai智能体任务。

      暂时没有评论,你回一个呗!~

      您需要登录后才可以回帖 登录 | 注册序赞号

      快速回复 返回顶部 返回列表