挪威凹凸住宅(2021)(Trodahl Arkitekter)设计
独立住宅, 挪威
  • 建筑师:Trodahl Arkitekter
  • 面积:2368 ft²
  • 项目年份:2021
  • 摄影师: Rasmus Norlander
  • 厂家:Bega, Hans Grohe, Pilkington
  • 建筑师:Ådne Trodahl, Ingrid Eide
  • 室内设计:Egersund Møbelsnekkeri
  • 混凝土顾问:Sola Betong
  • 施工方:Entreprenørfirma Frode Olsson AS, Bjerga Bygg
  • 钢结构:Bergs Metall
  • 玻璃顾问:Glassløsninger
  • Country:挪威
  • 这所独立式住宅靠近挪威桑内斯镇中心,位于海岸西南,属于降雨丰富的海洋性气候。地块东侧陡坡落差约7米,可以俯瞰全镇。建筑是现浇混凝土结构,共三层,面积约220平方米。为了把白天和西向日落的景观尽收眼底,将顶层与地块最高点标高齐平。主要起居空间布置在该层,通过厨房可直入后花园。
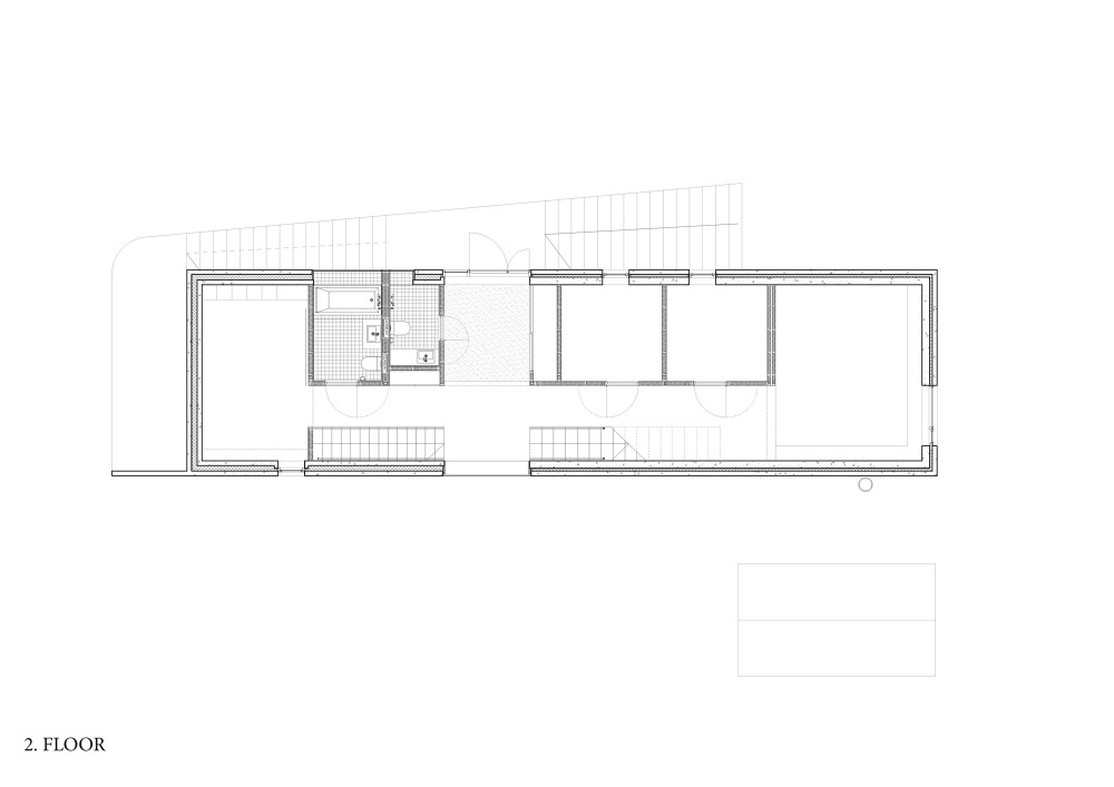
  • 进出后花园的厨房入口处理成内凹的空间,亦可遮风避雨。雨水被引至屋侧的一处独立水景。厨房上方的木夹层提供了一个安静的学习角落。不可开启的窗扇都直接密封在混凝土里。矩形大窗提供可坐的混凝土宽窗台。三间卧室和一个休息厅在二层,客卫公卫各一。主入口也在该层,通过室外花园踏步可达。这层所有混凝土楼面都经细磨抛光处理。
  • 灯具安装在天花上。内墙和门都是松板制成。最底层主要是住宅日常家居功能,包括存储设施和洗衣房,还可供分租。底层进深比二、三层少6米,创造出一个内凹式双车库。除了主体,还有一个配套小屋,用来存放垃圾桶和回收杂物。 文字描述由建筑师提供
    译者:王晨
    • 项目完工照片 | Finished Photos
    vsszan9806141223301.jpg
    vsszan9806141223302.jpg
    vsszan9806141223303.jpg
    vsszan9806141223304.jpg
    vsszan9806141223305.jpg
    vsszan9806141223306.jpg
    vsszan9806141223307.jpg
    vsszan9806141223308.jpg
    vsszan9806141223309.jpg
    vsszan98061412233010.jpg
    vsszan98061412233011.jpg
    vsszan98061412233012.jpg
    vsszan98061412233013.jpg
    vsszan98061412233014.jpg
    vsszan98061412233015.jpg
    vsszan98061412233016.jpg
    vsszan98061412233017.jpg
    vsszan98061412233018.jpg
    vsszan98061412233019.jpg
    vsszan98061412233020.jpg
    vsszan98061412233021.jpg
    vsszan98061412233022.jpg
      • 转载自:Archdaily
      • 设计师:Trodahl Arkitekter
      • 分类:独立住宅
      • 语言:简体中文
      • 阅读原文
      AI文本分析中……
      AI色彩命名中……

      序赞Ai时刻等待着你的命令!~

      与Ai对话形式持续执行相关Ai智能体任务。

      暂时没有评论,你回一个呗!~

      您需要登录后才可以回帖 登录 | 注册序赞号

      快速回复 返回顶部 返回列表