巴西Andaluz之家(2013)(Jayme Bernardo Arquitetura)设计
Casas, Piraquara, Brasil
  • 设计师:Jayme Bernardo Arquitetura
  • 面积:560 m²
  • 年份:2013
  • 摄影:Tuca Reinés
  • 建造商:Artigiano, Deca, Indusparquet, Montenapoleone
  • 设计师描述 | Designer description:Algumas casas parecem se estabelecer no limite entre o dentro e o fora. Por vezes, são os interiores que se projetam sobre o espaço externo, por meio de panos de vidro ou portas deslizantes. Em outras, é o meio exterior que adentra os domínios da casa na forma de jardins, canteiros e, nos dias de hoje, paredes verdes. O projeto funciona assim como um diafragma, pronto a determinar o ponto de simbiose ideal entre o ambiente doméstico e a natureza.
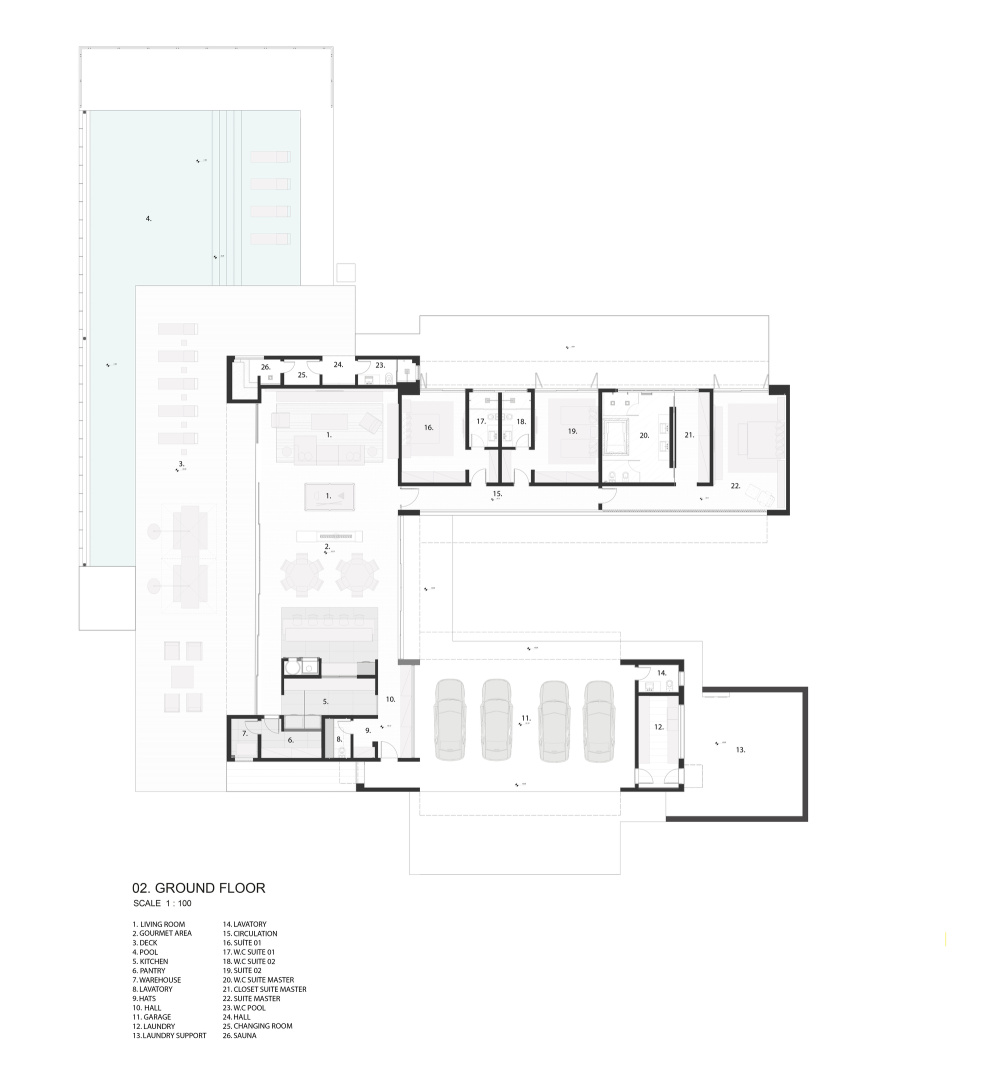
  • A planta desta casa térrea evidencia tal preocupação. Distribuída com formato de ‘C’, acompanhando a topografia de curvas suaves de seu terreno, com vistas para a Serra do Mar. Até por isso trata-se de uma residência de moldes contemporâneos, guarnecida por grandes painéis de vidro, na qual o volume da piscina e da própria casa parecem conversar com a paisagem do entorno de forma natural e delicada, sem maiores rupturas.
  • Nascida de muitas conversas com seus proprietários - um jovem empresário, admirador da natureza e que adora receber - a decoração segue o ritmo da arquitetura, perseguindo a atemporalidade das soluções, privilegiando a facilidade de circulação e a neutralidade nos acabamentos. Das texturas às tonalidades, tudo foi pensado de modo a se obter espaços leves e arejados, em total sintonia com a personalidade de seu morador.
    • 项目完工照片 | Finished Photos
    vsszan9866151632161.jpg
    vsszan9866151632162.jpg
    vsszan9866151632163.jpg
    vsszan9866151632164.jpg
    vsszan9866151632165.jpg
    vsszan9866151632166.jpg
    vsszan9866151632167.jpg
    vsszan9866151632168.jpg
    vsszan9866151632169.jpg
    vsszan98661516321610.jpg
    vsszan98661516321611.jpg
    vsszan98661516321612.jpg
    vsszan98661516321613.jpg
    vsszan98661516321614.jpg
    vsszan98661516321615.jpg
    vsszan98661516321616.jpg
    vsszan98661516321617.jpg
      • 转载自:Archdaily
      • 设计师:Jayme Bernardo Arquitetura
      • 分类:Casas
      • 语言:葡萄牙语
      • 阅读原文
      AI文本分析中……
      AI色彩命名中……

      序赞Ai时刻等待着你的命令!~

      与Ai对话形式持续执行相关Ai智能体任务。

      暂时没有评论,你回一个呗!~

      您需要登录后才可以回帖 登录 | 注册序赞号

      快速回复 返回顶部 返回列表