比利时布鲁塞尔大都会大楼(2019)(BOGDAN & VAN BROECK)设计
公寓, 更新项目, Brussel, 比利时
  • 建筑师:BOGDAN & VAN BROECK
  • 面积:16000 m²
  • 项目年份:2019
  • 摄影师: Laurian Ghinitoiu, Jeroen Verrecht, memymom
  • 设计团队:L. Croegaert, M. Czvek, M. Lefeber, M. Pocuch, S. Poot, T. Rigby, D. Stefanescu, L. van Innis, T. Willemse
  • 客户:Besix RED, Avenue des Communautés 100, 1200 Woluwe-Saint-Lambert, BE
  • 结构工程师:UTIL Struktuurstudies
  • 技术顾问:Concept Control
  • 声学顾问:ASM Acoustics
  • 项目管理:Cetim
  • City:Brussel
  • Country:比利时
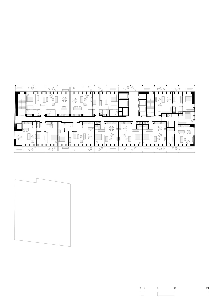
  • 皮埃尔·泰勒码头(Quai aux皮埃尔·泰勒码头)是布鲁塞尔连续不再存在的港口的前码头,周围是旧仓库,毗邻皇家佛兰德剧院(皇家佛兰德剧院),一幢60年代的办公大楼高耸于该项目将建筑物的建筑深度显着。地变为一个多功能综合体,包括130个单元,分为各种类型的住宅,从紧凑型智能工作室到宽敞的3间卧室的公寓。
  • 在这种城市环境中,精致的小植物的种植与大树结合的,以及地下停车场中的一棵树,通过上层甲板的一个开口探出。


现有体量的线性和场地的垂直度通过串联一楼的双高v形柱廊扩展强化,并确定了建筑主要入口的有遮蔽的行人通道。在这些柱廊上方,一个轻质的白色支架式钢结构支撑着宽敞的阳台。移动穿孔屏风优雅地效果,并具有防风功能。在场地的东南角,增加了一个有26个单元的中层住宅区,延续了Rue du Canal的街道立面。
  • 项目恢复并增强了场地的现有品质,增加了房屋单元的数量,从而促进了混合社区中心地带的优质的城市密度,同时又鼓励了软流动性。

    文字描述由建筑师提供
    译者:张熠菲
    • 项目完工照片 | Finished Photos
    vsszan9944181049371.jpg
    vsszan9944181049372.jpg
    vsszan9944181049373.jpg
    vsszan9944181049374.jpg
    vsszan9944181049375.jpg
    vsszan9944181049376.jpg
    vsszan9944181049377.jpg
    vsszan9944181049378.jpg
    vsszan9944181049379.jpg
    vsszan99441810493710.jpg
    vsszan99441810493711.jpg
    vsszan99441810493712.jpg
    vsszan99441810493713.jpg
    vsszan99441810493714.jpg
    vsszan99441810493715.jpg
    vsszan99441810493716.jpg
    vsszan99441810493717.jpg
    vsszan99441810493718.jpg
    vsszan99441810493719.jpg
    vsszan99441810493720.jpg
    vsszan99441810493721.jpg
    vsszan99441810493722.jpg
    vsszan99441810493723.jpg
    vsszan99441810493724.jpg
    vsszan99441810493725.jpg
    vsszan99441810493726.jpg
      • 转载自:Archdaily
      • 设计师:BOGDAN \u0026 VAN BROECK
      • 分类:公寓
      • 语言:简体中文
      • 阅读原文
      AI文本分析中……
      AI色彩命名中……

      序赞Ai时刻等待着你的命令!~

      与Ai对话形式持续执行相关Ai智能体任务。

      4220549632021-1-18 11:29:43
      谢谢分享,谢谢分享!
      您需要登录后才可以回帖 登录 | 注册序赞号

      快速回复 返回顶部 返回列表