比利时Sint-Amandscollege塔楼改造(2018)(Philippe Samyn and Partners)设计
公寓, 居住建筑, Kortrijk, 比利时
  • 建筑设计:Philippe Samyn and Partners
  • 面积:11348 m²
  • 项目年份:2018
  • City:Kortrijk
  • Country:比利时
  • 作为未来城市主义的基本之一,城市的垂直发展能够保护自然和农业用地。垂直性是常识性的结果,但垂直住宅作为一种建筑,其宜居性仍有待完善以形成居民社区。几十年来,Philippe Samyn一直在构思相关的方案。例如,2014年9月,比利时皇家学院发表了他的论文《垂直城市》。
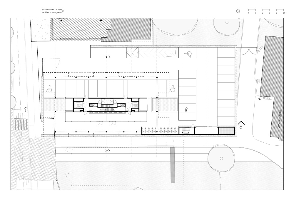
  • K塔项目是该愿景不可分割的一部分。这一项目并不是外围布置的漂亮别墅,其目的在于提供优质的公寓住宅。因为别墅会造成土地资源的过度消耗和交通网络的过度发展。选址。圣·阿曼斯学院的位于Kortrijk外围,Leie河的岸边。现存的学校建筑建于不同的年代,因此在外观上有很大的差异。
  • “Collegetoren”建于1960年,是一所寄宿学校;原校舍有附属的教育设施。由于“Collegetoren”不再满足当前的需求,Kortrijk城市发展委员会在2005年发起了一项竞赛,对学院建筑进行重新分配和修复。对现有情况进行深度分析后,可以得出结论,塔楼必须被拆除,基地应该得到维护。
  • 植入塔楼
    塔楼无法为自己任意选址。因此,新塔楼位于剩余基地的东侧,紧邻艾伯特公园。这个选址深化了基地的形象,并以一种合理的方式围合了整体。这座塔位于Leie河岸边,使这座密集的城市和它辽阔的郊外绿地之间产生视觉连接,提供了极为宽广的视野。
  • 形式
    基于一比二的矩形平面,细长的塔楼限制了其阴影的面积,展示了城市最优美的轮廓。它纤细的视觉效果强调了的外观,就像是闪闪发光的白色信封、缎面和抛光的镜子。感官。Christopher Alexander的《模式语言》被Françoise Choay认为是维特鲁威之后唯一的建筑理论书。Philippe Samyn的所有思想都以Hans Dom Van der Laan关于比例的“塑料数”为理论基础。
  • 同样,Philippe Samyn也一直关注对人类五感的尊重,尤其是对自然光的尊重。其中,特别注重视觉、听觉、嗅觉和触觉的特性。最引人注目的是,在立面上大量使用了具有高显色指数的镜子和玻璃,这增加了建筑和露台的亮度。
  • 朝向和视野
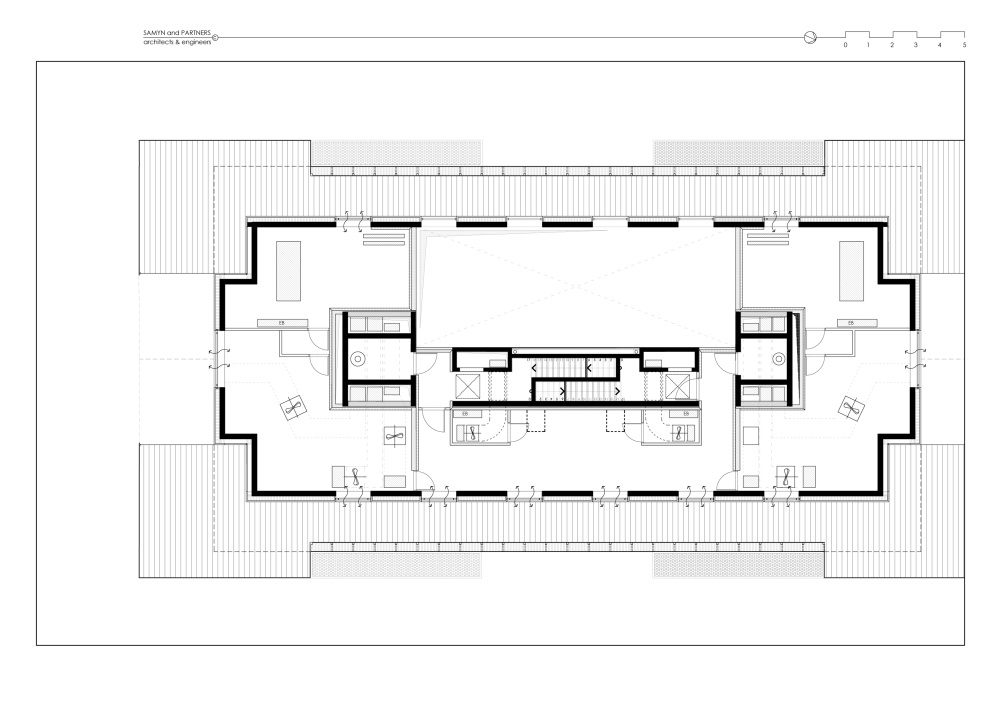
    计划对塔楼内部进行灵活地布置,包括了65个公寓。围绕着涵盖了循环技术的核心,每层可以设置了两到四组公寓。顶层有一间阁楼,包括了一个双层通高的客厅。东西朝向的塔楼可以看到远处的Leie河,而从狭长的南立面可以欣赏到城市历史中心的景色。
  • 每个单元至少有两个朝向,它们露台宽窄不一。双倍高度的露台使公寓内部有充足的阳光和高质量的自然光线。露台周围的穿孔板遮罩确保了公寓的私密性,并保障它们不受气流影响。每个阳台和每个公寓都设置了开口,形成绘画般的美丽框景。立面。所有结构都用七种数量级的路径对视野进行标示,就像等程音阶钢琴键盘上的七个八度在听觉中扩展。这些秩序的可读性对视觉上的和谐至关重要。必须保证建筑的物质性。
  • 因此,塔楼的大型立面被划分为嵌套在越来越小的维度上的子集,每个子集都基于内部舒适度和自然光吸收的不同处理进行具体化——白色、镜面或缎面反光的表面。这种剪纸般的处理方式与穿孔金属板围合的露台产生联系,使其规模从大城市和广阔的景观逐渐转换到门把手般的大小。同时,这座塔的形象也会随着时间产生动态的变化。

    文字描述由建筑师提供
    译者:张心璇
    • 项目完工照片 | Finished Photos
    vsszan11769261215551.jpg
    vsszan11769261215552.jpg
    vsszan11769261215553.jpg
    vsszan11769261215554.jpg
    vsszan11769261215555.jpg
    vsszan11769261215556.jpg
    vsszan11769261215557.jpg
    vsszan11769261215558.jpg
    vsszan11769261215559.jpg
    vsszan117692612155510.jpg
    vsszan117692612155511.jpg
    vsszan117692612155512.jpg
    vsszan117692612155513.jpg
    vsszan117692612155514.jpg
    vsszan117692612155515.jpg
    vsszan117692612155516.jpg
    vsszan117692612155517.jpg
    vsszan117692612155518.jpg
    vsszan117692612155519.jpg
    vsszan117692612155520.jpg
    vsszan117692612155521.jpg
    vsszan117692612155522.jpg
    vsszan117692612155523.jpg
    vsszan117692612155524.jpg
    vsszan117692612155525.jpg
    vsszan117692612155526.jpg
    vsszan117692612155527.jpg
    vsszan117692612155528.jpg
    vsszan117692612155529.jpg
    vsszan117692612155530.jpg
    vsszan117692612155531.jpg
    vsszan117692612155532.jpg
    vsszan117692612155533.jpg
    vsszan117692612155534.jpg
    vsszan117692612155535.jpg
    vsszan117692612155536.jpg
    vsszan117692612155537.jpg
    vsszan117692612155538.jpg
    vsszan117692612155539.jpg
    vsszan117692612155540.jpg
    vsszan117692612155541.jpg
    vsszan117692612155542.jpg
      • 转载自:Archdaily
      • 设计师:Philippe Samyn and Partners
      • 分类:公寓
      • 语言:简体中文
      • 阅读原文
      AI文本分析中……
      AI色彩命名中……

      序赞Ai时刻等待着你的命令!~

      与Ai对话形式持续执行相关Ai智能体任务。

      暂时没有评论,你回一个呗!~

      您需要登录后才可以回帖 登录 | 注册序赞号

      快速回复 返回顶部 返回列表