澳大利亚Haymarket Boutique办公室(2020)(Make Architects)设计
办公室内部,澳大利亚Haymarket
  • 设计师:Make Architects
  • 面积:  413 m²
  • 年份:2020
  • 摄影:Martin Mischkulnig
  • 建造商: Cemintel, Covet, Plank Floors
  • 项目负责人:Lucy Feast
  • 项目顾问:Simon Lincoln
  • 城市:Haymarket
  • 国家:澳大利亚

设计师描述 | Designer description:
  • 悉尼Haymarket区的一家前巧克力工厂已经过翻新,成为由Make Architects设计的精品新办公楼。该建筑的历史可以追溯到1900年代,是该项目的核心。设计对现有结构进行了庆祝和调整,使新材料和插入物保持简单和精致,因此建筑物的特征及其历史仍然是重点。该计划位于干草市场中心的巷道坎宁安街,是该地区一系列新开发项目中的最新项目,食品,饮料,商业和零售用途正在涌入。
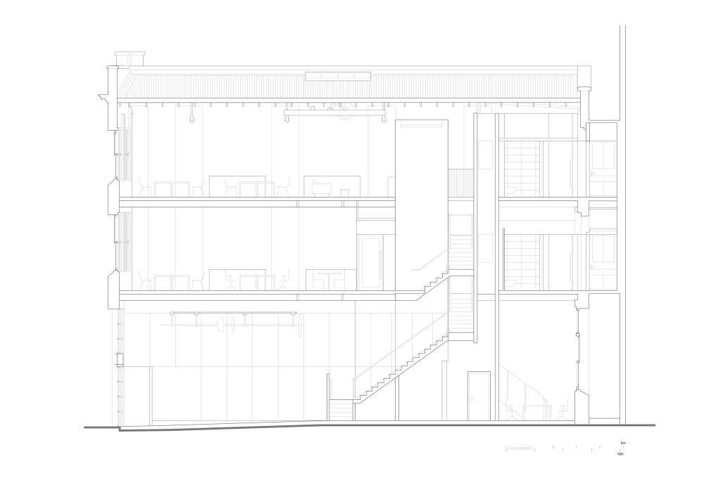
  • Make保留了三层413平方米建筑物中尽可能多的原始面料,包括钢梁,木地板,裸露的砖墙和原始的葫芦。在使用新材料的地方,Make故意选择对比材料-铜,混凝土和水磨石,以显示新旧之间的区别。优先考虑可持续性,所有新材料均来自澳大利亚内部。
  • 从车道上看,外部变化很小,但引人注目。砖的外墙已经粉刷过,新的铜和钢门户门已插入建筑物的正门。原来的卷帘百叶窗入口已被定制的双高玻璃钢入口门所取代,该门垂直向上滑动以坐在上方不对称的芦苇玻璃窗后面,从而使入口大厅可以敞开并与街道互动。关闭时,玻璃在晚上变成温暖照明的灯箱,同时为住户保持私密性。
  • 进入时,建筑物从门户门和狭窄的巷道打开,进入双高,自然采光的入口空间,突出了原始的砖木天花板吊车。作为以前的工厂,一楼的天花板很高,因此Make增加了一个新的夹层,以增加可出租的地板空间。从下方的大堂可以看到夹层楼,通过一扇全高的芦苇玻璃窗可以将自然采光充斥整个空间,还可以从人们的活动中获得动画效果。夹层有自己的专用楼梯,该楼梯由漆成的折叠钢连接到地面。
  • 主楼梯间连接着地面,一楼和二楼,并表现为插入楼梯的铜盒子–一种与众不同的材料,与原始的建筑面料形成鲜明对比。当铜盒向上延伸时,材料变为钢和玻璃,以使运动和光线透过建筑物可见。已经安装了一部电梯,以连接包括夹层楼在内的所有楼层,但被塞进去以鼓励租户上楼梯。
  • 办公室地板已被最小化,只剩下裸露的砖墙,仅在需要的地方涂成白色,并带有微妙的墙壁和悬挂式灯,突出了该结构。在第一层和第二层增加了新的工程橡木地板,这使原始的地板可以形成下面的裸露天花板。在形成新的流通口的地方,现有的木材结构已被回收,并在整个建筑中用作天花板或加固结构。
    • 项目完工照片 | Finished Photos
    vsszan12626170932411.jpg
    vsszan12626170932412.jpg
    vsszan12626170932413.jpg
    vsszan12626170932414.jpg
    vsszan12626170932415.jpg
    vsszan12626170932416.jpg
    vsszan12626170932417.jpg
    vsszan12626170932418.jpg
    vsszan12626170932419.jpg
    vsszan126261709324110.jpg
    vsszan126261709324111.jpg
    vsszan126261709324112.jpg
    vsszan126261709324113.jpg
    vsszan126261709324114.jpg
    vsszan126261709324115.jpg
    vsszan126261709324116.jpg
    vsszan126261709324117.jpg
    vsszan126261709324118.jpg
    vsszan126261709324119.jpg
    vsszan126261709324120.jpg
    vsszan126261709324121.jpg
    vsszan126261709324122.jpg
    vsszan126261709324123.jpg
      • 转载自:Archdaily
      • 设计师:Make Architects
      • 分类:Offices Interiors
      • 语言:英语
      • 阅读原文
      AI文本分析中……
      AI色彩命名中……

      序赞Ai时刻等待着你的命令!~

      与Ai对话形式持续执行相关Ai智能体任务。

      暂时没有评论,你回一个呗!~

      您需要登录后才可以回帖 登录 | 注册序赞号

      快速回复 返回顶部 返回列表