哥伦布colombe文化中心colombe(2020)(Brenac&Gonzalez&Associés)设计
图书馆,文化中心,照明,哥伦布,法国
  • 设计师:Brenac&Gonzalez&Associés
  • 面积:3060m²
  • 年份:2020
  • 摄影:Sergio Grazia
  • 城市:哥伦布
  • 国家:法国
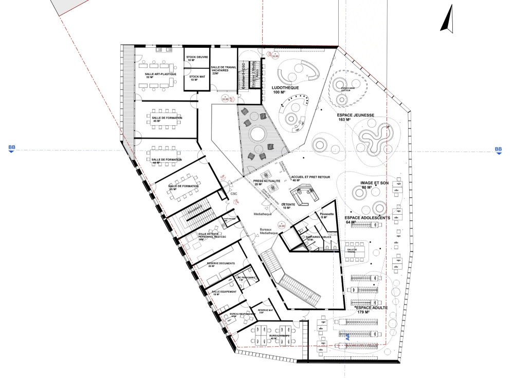
  • 设计师描述| 设计师描述:位于巴黎附近的Colombes的媒体库是新的社会中心的一部分,该中心的更大范围是城市更新和对该镇FossésJean / Bouviers区的升级。因此,该建筑必须具有示范性。
  • 为了增强该站点的独特特性,该卷向城市开放,与地面分离,并从透明的Michelet一直到社会中心的花园都可以看到建筑物的透明度和深处的景象。高架的高空空间在建筑物下方产生了一个空间,使人们可以透过玻璃大厅和室内街道看到该设施的所有实体。
  • 看似悬浮的空间像丝带一样环绕着露台,同时通过构筑非典型房间(例如视觉艺术画廊或媒体库)的大开口,向邻里敞开。由于其特定的数量和动态的特性,新设施通过象征性地表示其在正在进行重大重建的该地区中心地存在而自然地融入其环境。
  • 但是,通过将其质量提高,而将其放置在大部分为玻璃地板的地面上,则可以减轻整体体积,该地面与建筑水泥中的基层交替使用,可以将其结构牢固地固定在地面上。上层地板覆盖着金属复合板,可根据要覆盖的表面折叠和展开。朝向城镇的大框架打开了大玻璃海湾,并根据有利的方向由垂直的垂直花甲保护。屋顶上雕刻了一些空心区域,像碗一样打开了建筑物的内部,并包含了许多受保护的带有绿色植物的内部露台。由指示主要事件的LED组成的招牌放置在建筑物的上部,进一步增强了建筑物的可见性。
  • 媒体库是一个很棒的工具,需要强大的建筑和象征性图像来充分参与地区形象的发展,并在城市的吸引力中扮演至关重要的角色。这里选择的人物是一个螺旋形,象征着通过知识,文化和世代相传的运动和社会进步。宽敞的开放区域像功能性和程序化功能区一样围绕大厅的中央空隙盘旋。该组织形成了抽象的保护性轮廓,从地面一直延伸到较高的楼层。
  • 项目完工照片| 成品照片
vsszan12902230132361.jpg
vsszan12902230132362.jpg
vsszan12902230132363.jpg
vsszan12902230132364.jpg
vsszan12902230132365.jpg
vsszan12902230132366.jpg
vsszan12902230132367.jpg
vsszan12902230132368.jpg
vsszan12902230132369.jpg
vsszan129022301323610.jpg
vsszan129022301323611.jpg
vsszan129022301323612.jpg
vsszan129022301323613.jpg
vsszan129022301323614.jpg
vsszan129022301323615.jpg
vsszan129022301323616.jpg
vsszan129022301323617.jpg
vsszan129022301323618.jpg
vsszan129022301323619.jpg
vsszan129022301323620.jpg
  • 转载自:Archdaily
  • 设计师:Brenac \ Gonzalez \associés
  • 分类:图书馆
  • 语言:英语
  • 阅读报纸
AI文本分析中……
AI色彩命名中……

序赞Ai时刻等待着你的命令!~

与Ai对话形式持续执行相关Ai智能体任务。

暂时没有评论,你回一个呗!~

您需要登录后才可以回帖 登录 | 注册序赞号

快速回复 返回顶部 返回列表