西班牙胶合板住宅(2017)(SMS Arquitectos)设计
独立住宅, 更新项目, 加建项目, Palma de Mallorca, 西班牙
  • 建筑设计:SMS Arquitectos
  • 面积:190 m²
  • 项目年份:2017
  • 摄影师: Luis Diaz Diaz
  • 厂家:FSB, Huguet, Persiana Barcelona, THPG, Teulera Soler, Watsberg
  • 文字说明由建筑师提供(翻译:洪于雁)
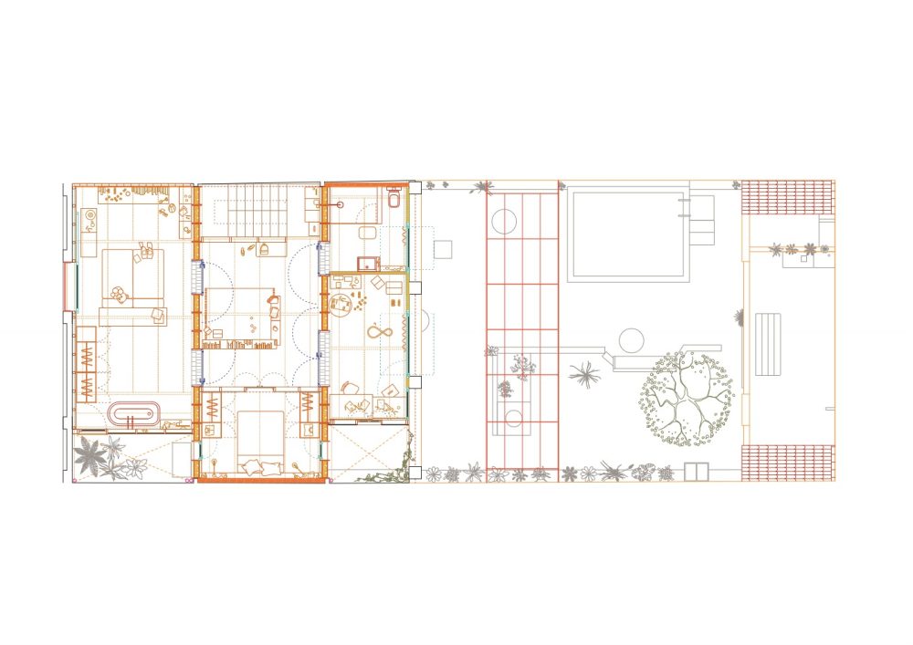
    胶合板住宅位于帕尔马安静街区的联排别墅街道上,保持其原始结构需要轻质解决原始石墙。
  • 工艺
    该项目已被视为两个平行的研究线。 一方面,我们探索了使用CNC路由器在当地制造胶合板元件的可能性,另一方面,我们对岛上仍然存在的工艺进行了深入研究。
  • 我们从自建和去背景化的结构或预先存在开始,我们预制了一个非现场预制胶合板系统。从244x122cm的杨木胶合板开始,该结构使我们有机会调查和测试使用的结构系统 制造过程的语言。 通过结合由CNC切割功能定义的该系统的元件,该系统作为起点并且可以在其他类型的建筑物中再现。
  • 该项目使用具有不同工业化程度的本地产品探索和整合当地材料和工匠。 我们关注像Huguet这样的公司,几十年来在马洛卡制造混凝土砖,在需要的地方设计平滑有趣的地砖。 来自Felanitx的传统制造商Miquel Soler的特殊陶土砖已被用于外墙和游泳池的几个部分。
  • 适应性
    该项目在房屋内建立了各种“大气区”。 客房拥有散射光线,拥有晨光,面向东北,面向西南。 客房俯瞰内部庭院,或享有午后阳光并享有附近城堡景致的客房。 一些空间的热质量在夏季较凉爽,而其他空间的热质量较少,冬季可以加热,允许在家中进行季节性迁移。
  • 建筑意图是在季节性使用的空间环境中创造一个环境,具体取决于只有潮湿的房间和厨房固定使用。
  • 材料
    cnc路由和结构要求的优化。 建筑希望是原始的,裸露的和未涂层的,而“装饰品”想要给出空间的装饰,装饰内部。 缺乏饰面表现出天花板的结构几何形状,将其与帕尔马古城的阿拉伯式花纹装饰联系起来。
  • 先前存在的干预是用原始材料,木材,石头,兵马俑完成的,都处于原始状态。
    • 项目完工照片 | Finished Photos
    vsszan13448032251441.jpg
    vsszan13448032251442.jpg
    vsszan13448032251443.jpg
    vsszan13448032251444.jpg
    vsszan13448032251445.jpg
    vsszan13448032251446.jpg
    vsszan13448032251447.jpg
    vsszan13448032251448.jpg
    vsszan13448032251449.jpg
    vsszan134480322514410.jpg
    vsszan134480322514411.jpg
    vsszan134480322514412.jpg
    vsszan134480322514413.jpg
    vsszan134480322514414.jpg
    vsszan134480322514415.jpg
    vsszan134480322514416.jpg
    vsszan134480322514417.jpg
    vsszan134480322514418.jpg
    vsszan134480322514419.jpg
    vsszan134480322514420.jpg
    vsszan134480322514421.jpg
    vsszan134480322514422.jpg
    vsszan134480322514423.jpg
    vsszan134480322514424.jpg
    vsszan134480322514425.jpg
    vsszan134480322514426.jpg
    vsszan134480322514427.jpg
    vsszan134480322514428.jpg
    vsszan134480322514429.jpg
    vsszan134480322514430.jpg
    vsszan134480322514431.jpg
    vsszan134480322514432.jpg
    vsszan134480322514433.jpg
    vsszan134480322514434.jpg
    vsszan134480322514435.jpg
    vsszan134480322514436.jpg
      • 转载自:Archdaily
      • 设计师:SMS Arquitectos
      • 分类:独立住宅
      • 语言:简体中文
      • 阅读原文
      AI文本分析中……
      AI色彩命名中……

      序赞Ai时刻等待着你的命令!~

      与Ai对话形式持续执行相关Ai智能体任务。

      暂时没有评论,你回一个呗!~

      您需要登录后才可以回帖 登录 | 注册序赞号

      快速回复 返回顶部 返回列表