南非比勒陀利亚大学 Akanyang|2020|Two Five Five Architects
大学, Pretoria, 南非
  • 建筑设计:Two Five Five Architects
  • 面积:835 m²
  • 项目年份:2020
  • 摄影师: Natasha Dawjee Laurent
  • 厂家:Corobrik, Gyptone, Polyflor, Woven Image
  • 主创建筑师:Helaine Foley
  • City:Pretoria
  • Country:南非
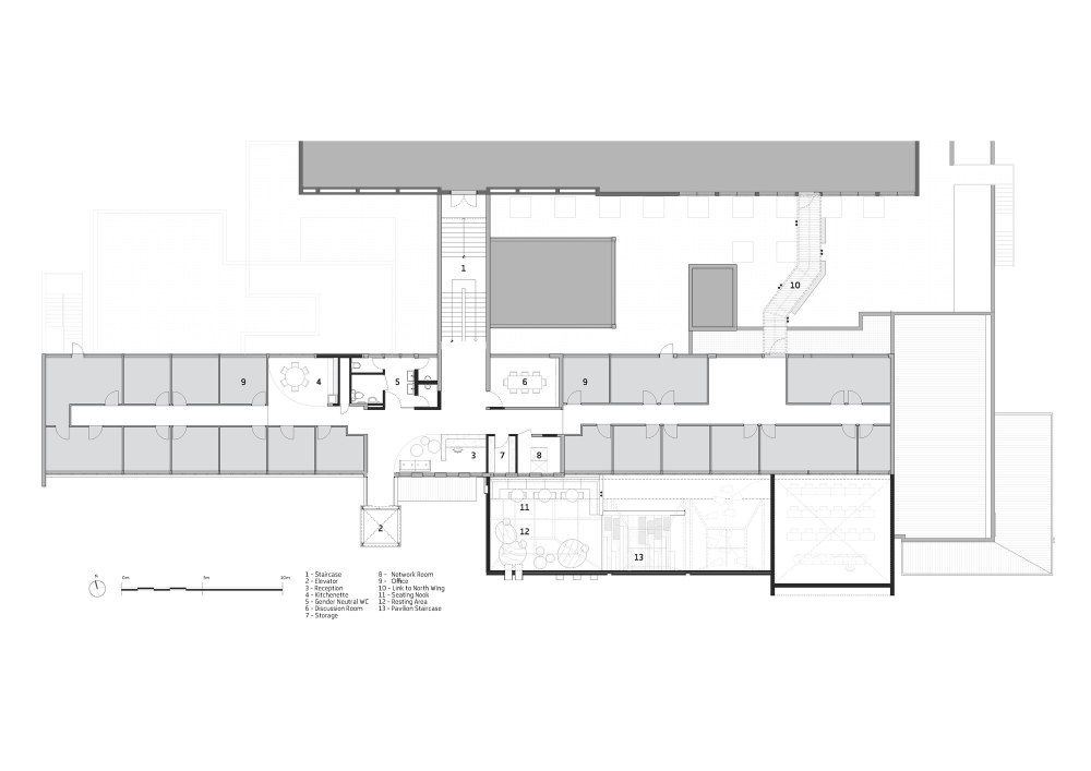
  • 从本质上讲, Akanyang是一个社会学习环境,学生可以聚集在这里以新的方式互动学习。Akanyang位于比勒陀利亚大学的哈菲尔德(Hatfield)校区,为学生提供了一个安全的空间。该建筑强调了大学的现代教育方法。Akanyang通过为学生提供教育和休闲场所,解决了大学对于社交互动学习环境不断增长的需求。
  • 这个设施是现有Huis & Haard建筑的南部延伸。Akanyang藏匿在该校区的人行走廊里,使它可以与路过的学生进行互动并引导学生们进入该空间。Akanyang的外立面由三个建筑组件组成。
  • 混凝土箱,屋顶空间和灯塔(升降井)。悬挂在人行道上的混凝土结构不仅可以作为社会评论的标牌,还可以当作一个长椅。灯塔被用作入口和标识。屋顶空间顺着建筑物的侧面向下延伸,使人们能够瞥见建筑的内部并产生好奇。这个设施的最终使用者和运营者是NAS(自然与农业科学学院)和CSA&G(性,艾滋与性别中心),他们的愿景是“了解力量,探索多样性,研究差异并想象包容性。”
  • 这些价值对于应用在Akanyang上的设计理念至关重要。重点放在了该设施的包容性上,以确保从公共通道到洗手间的所有事物都具有包容性且不分性别。建筑计划需要学生们能够在舒适的社交环境中聚会、学习、休息、见面、讨论、工作甚至购物。因此,我们希望学生能够探索空间所带来的多样性,并且能够自由的调整这些空间以适应他们的需求。
  • 从例如VITRA工具凳之类的家具到空间规划的所有过程,都使学生能够根据自己的需要塑造空间。画廊的座椅可以通过从组合中分离来达到更多的私密性,也可以排列成为演讲的场地。可移动的墙板使学生可以创造出自由的讨论空间或者小隔间,也可以折叠起来创造出更大的活动空间。
  • CSA&G的中心部分是学生咨询,这个计划不仅需要为大众提供能够使用社会学习设施的场地,还需要确保访问CSA&G的学生的隐私。因此,减少了放置在行人走廊上的窗户数量。同时屋顶空间向上连接现有的建筑,从而使北向的阳光能够通过天窗。
  • 项目的其他要求包括CSA&G办公室的升级和翻新,电梯的增加,杂货店/外卖店的零售空间增加,以及现有洗手间设施的升级从而确保他们都有包容性。这个建筑的设计意图是能够让他的使用者学习,社交并且对空间有拥有感。因此取名为Akanyang,这是一个茨纳瓦人的名字,意思为思考。
    文字描述由建筑师提供
    译者:杨雅涵
    • 项目完工照片 | Finished Photos
    vsszan16318231608151.jpg
    vsszan16318231608152.jpg
    vsszan16318231608153.jpg
    vsszan16318231608154.jpg
    vsszan16318231608155.jpg
    vsszan16318231608156.jpg
    vsszan16318231608157.jpg
    vsszan16318231608158.jpg
    vsszan16318231608159.jpg
    vsszan163182316081510.jpg
    vsszan163182316081511.jpg
    vsszan163182316081512.jpg
    vsszan163182316081513.jpg
    vsszan163182316081514.jpg
    vsszan163182316081515.jpg
    vsszan163182316081516.jpg
    vsszan163182316081517.jpg
    vsszan163182316081518.jpg
    vsszan163182316081519.jpg
    vsszan163182316081520.jpg
    vsszan163182316081521.jpg
    vsszan163182316081522.jpg
    vsszan163182316081523.jpg
    vsszan163182316081524.jpg
    vsszan163182316081525.jpg
    vsszan163182316081526.jpg
    vsszan163182316081527.jpg
    vsszan163182316081528.jpg
    vsszan163182316081529.jpg
    vsszan163182316081530.jpg
    vsszan163182316081531.jpg
    vsszan163182316081532.jpg
    vsszan163182316081533.jpg
    vsszan163182316081534.jpg
    vsszan163182316081535.jpg
    vsszan163182316081536.jpg
    vsszan163182316081537.jpg
    vsszan163182316081538.jpg
    vsszan163182316081539.jpg
    vsszan163182316081540.jpg
    vsszan163182316081541.jpg
    vsszan163182316081542.jpg
    vsszan163182316081543.jpg
    vsszan163182316081544.jpg
    vsszan163182316081545.jpg
    vsszan163182316081546.jpg
      • 转载自:Archdaily
      • 设计师:Two Five Five Architects
      • 分类:大学
      • 语言:简体中文
      • 编辑:序赞网
      • 翻译:序赞网
      • 声明:原创翻译,严禁转载;一经发现,法律追究
      • 阅读原文
      AI文本分析中……
      AI色彩命名中……

      序赞Ai时刻等待着你的命令!~

      与Ai对话形式持续执行相关Ai智能体任务。

      暂时没有评论,你回一个呗!~

      您需要登录后才可以回帖 登录 | 注册序赞号

      快速回复 返回顶部 返回列表