台湾黑白灰极简公寓 | Studio One








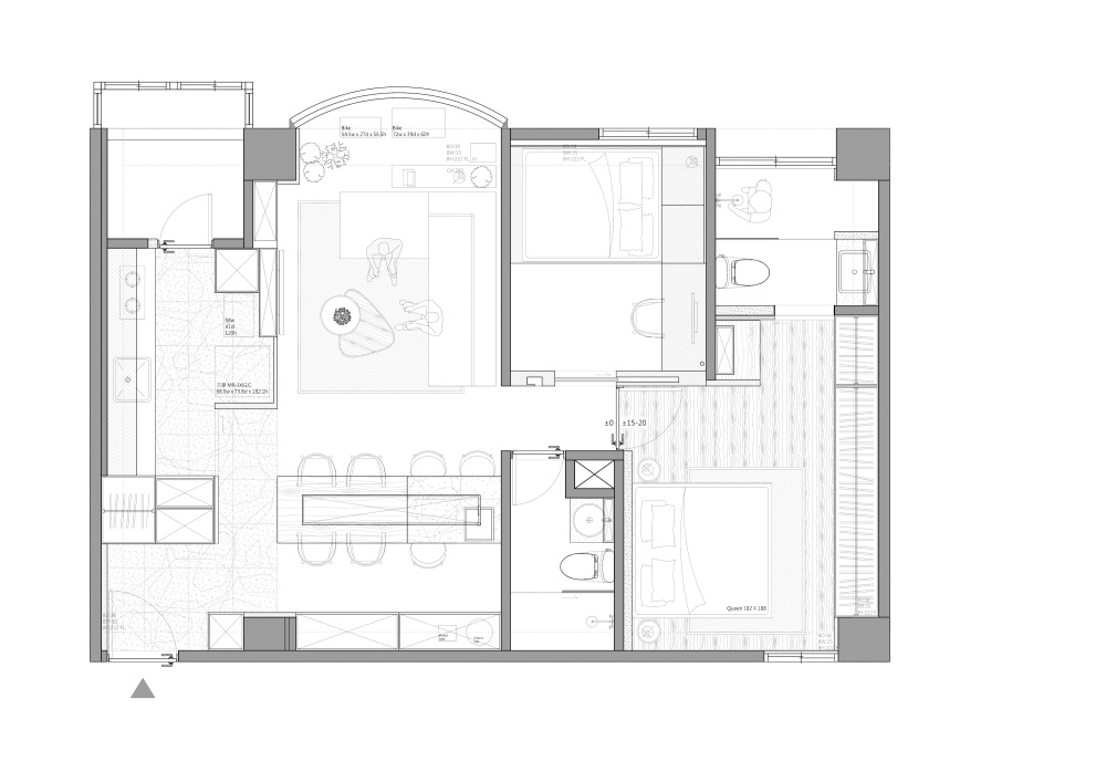
    这个项目是通过引入复杂的形式和带有纹理材料的单色方案量身定制的。一个空间有限的室内项目,设计目标是最大化空间的可能性和灵活性。以简约为本质的理念,设计师将设计体量最小化,作为区域分隔和视觉焦点,同时应用滑动隔断作为生活区和私人区域之间的灵活边界。墨灰色木镶板和浅灰色矿物漆的单色方案,带出一种宁静的感觉,但有趣的纹理对比,旨在创造一个由自然光雕刻而成的多变的空间,这种日常变化为业主提供了一种新的感知方式对生活及其存在的审美。
vsszan20981031837411.jpg
vsszan20981031837412.jpg
vsszan20981031837413.jpg
vsszan20981031837414.jpg
vsszan20981031837415.jpg
vsszan20981031837416.jpg
vsszan20981031837417.jpg
vsszan20981031837418.jpg
vsszan20981031837419.jpg
vsszan209810318374110.jpg
vsszan209810318374111.jpg
vsszan209810318374112.jpg
vsszan209810318374113.jpg
vsszan209810318374114.jpg
vsszan209810318374115.jpg
vsszan209810318374116.jpg
vsszan209810318374117.jpg






    项目名称: Gray Shadow


    类型:住宅


    办公室名称:


    面积:75.9平方米


    项目地点:台湾


    照片来源:MD Pusit

AI文本分析中……
AI色彩命名中……

序赞Ai时刻等待着你的命令!~

与Ai对话形式持续执行相关Ai智能体任务。

暂时没有评论,你回一个呗!~

您需要登录后才可以回帖 登录 | 注册序赞号

快速回复 返回顶部 返回列表