阿萨奇农舍 | Alchemy | 2022 | 印度
vsszan56486271203551.jpg

一位热爱大自然的 NRI 选择了一个贴心的度假屋。 坐落在著名的喀拉拉邦农田中,在帕拉卡德山口的平原上,两侧是西高止山脉,这导致了度假屋的概念化,可以在他的家乡度假期间将他的家人聚在一起。 有限的时间框架催生了80%的建筑面积使用钢结构的想法。
vsszan56486271203552.jpg

由于客户对热带地区自然和绿色植物的热爱,他对药用植物有机耕作实践的贡献,以及他对健康产品的冒险,家庭成为了他农业原则的愿景,为家庭提供了一种原始的极简主义方法, 朴实而柔和的色调来传达上下文。
vsszan56486271203553.jpg
vsszan56486271203554.jpg
vsszan56486271203555.jpg

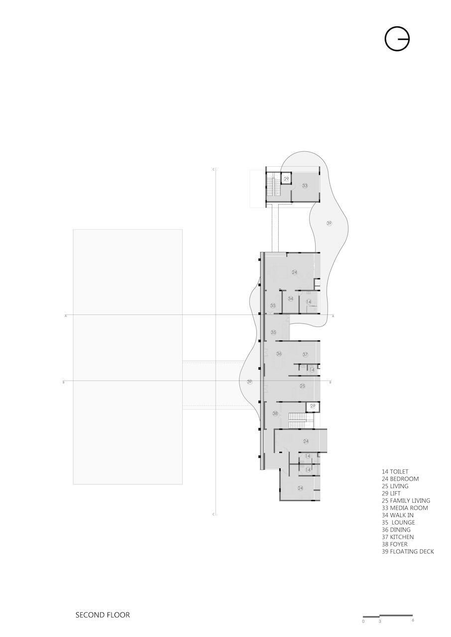
设计背景 - 设计方法始于利用现场 3 英亩天然水体俯瞰高止山脉所创造的广阔视野的想法。 功能需求创建了两个主要区域,一个住宅区和一个聚会区。 主要想法是通过提供更大更长的窗户而不阻挡视线,将主人和客人入住的房间放置在俯瞰水体和高止山脉的地方,保持南北方向的最长跨度。
vsszan56486271203556.jpg

带有派对大厅的聚会区被放置在序列的末端,提供了一个相互连接的餐厅,因为它使用了中央形成的甲板和后面的圆形剧场,更大的开口量为他们的会众提供了无限的视觉连接 . 宴会厅内可容纳 100 人,设有 24 个座位的用餐区,现场铸造的餐桌跨越 24 英尺“悬臂式巨石”放置在中央连接庞大的甲板进出,在前甲板和圆形剧场提供无限的派对区 背部。
vsszan56486271203557.jpg
vsszan56486271203558.jpg

住宅单元有 6 间套房,呈线性排列,宽大的走廊被针孔砖隔开,保护它免受南方的高温和眩光。 一个 3 床的工作室位于二楼,供主人使用,宽阔的悬垂甲板俯瞰两侧的高止山脉。 所有这些都是由定制的家具铸件和少数精心挑选的家具来实现的。
vsszan56486271203559.jpg

材料规格 - 项目中使用的材料可以定义为原始和基本的极简主义,即炫耀裸露的材料和结构元素,几乎没有或没有装饰元素,现代材料和经过改造的古董元素。 立面的针孔砖、修饰过的石墙、抛光的未上漆的水泥墙,以及手工水泥砖的抛光混凝土地板,都由柔和而朴实的色调支撑,与环境相得益彰。 墙壁都由较大的开口交替,以带来更多的通风和光线。
vsszan564862712035510.jpg

vsszan564862712035511.jpg
vsszan564862712035512.jpg
vsszan564862712035513.jpg
vsszan564862712035514.jpg
vsszan564862712035515.jpg
vsszan564862712035516.jpg
vsszan564862712035517.jpg
vsszan564862712035518.jpg
vsszan564862712035519.jpg
vsszan564862712035520.jpg
vsszan564862712035521.jpg
vsszan564862712035522.jpg
vsszan564862712035523.jpg
vsszan564862712035524.jpg
vsszan564862712035525.jpg
vsszan564862712035526.jpg
vsszan564862712035527.jpg
vsszan564862712035528.jpg
vsszan564862712035529.jpg
  • 项目设计:Alchemy
  • 项目面积:35000m²
  • 项目年份:2022
  • 项目摄影:Shamanth Patil J
  • 供应商: D'Décor, Kohler, Aludecor, Asian Paints, Creanza, Fenesta, Kanchi Designs, Lioness Tile, Mitsubishi, Simpolo
  • 首席设计师:Subeesh Madhavan
  • 建筑师:Anjala Sulthana, Minhaj Mansoor, Shehee,n Vinod
  • 现场工程师:Pranav Mohandas, Raihan Haneef
  • 项目成市: Palakkad
  • 项目国家:India
    • 转载自:Archdaily
    • 设计师:Alchemy
    • 图片©Alchemy
    • 语言:英语
    • 编辑:序赞网
    • 阅读原文
    AI文本分析中……
    AI色彩命名中……

    序赞Ai时刻等待着你的命令!~

    与Ai对话形式持续执行相关Ai智能体任务。

    您需要登录后才可以回帖 登录 | 注册序赞号

    快速回复 返回顶部 返回列表