昭岛住宅 | Office m-sa | 2021 | 日本

该设计诞生于我们与客户的谈话,他们表示:“如果我们居住在丰富的环境中,它能够跟随时间变化,那么场地就活化了。”因此,在我们设计的房子中,混凝土基础从地面升起,划分了空间,同时又用作家具,塑造出可以逗留的空间。
▽空间概览©Kazuhisa Kota

vsszan59243130932191.jpg

我们反复研究了基础布局,发现既有基础可以作为扩建或改造的起始点,而不仅仅是用来支撑木结构的。这一混凝土布局是根据“烹饪、阅读、空间转换通道”等功能确定的,基础间的墙壁和屋顶则塑造了房屋的每个空间。在设计中,我们认为那些隐约相连的房间会随着日积月累的变化而改变功能,同时我们也意识到室内外空间需要被同等对待。最终,我们希望使用者可以与我们的计划背道而驰,以一种出人意料的方式使用房屋。
▽主要生活空间©Kazuhisa Kota

vsszan59243130932192.jpg

▽客厅©Kazuhisa Kota

vsszan59243130932193.jpg

▽餐厅&厨房©Kazuhisa Kota

vsszan59243130932194.jpg

▽书房©Kazuhisa Kota

vsszan59243130932195.jpg

▽由书房望向卧室©Kazuhisa Kota

vsszan59243130932196.jpg

▽卧室©Kazuhisa Kota

vsszan59243130932197.jpg

我们了解混凝土和木材各自的强度以及使用年限、纹理和质感等方面的差异,其中,木结构可能会在几年内被扩建或拆除,混凝土结构则可以保持数百年,甚至可以用作新房子的基础,或者用作日后的游乐场或表演舞台。
▽材质搭配©Kazuhisa Kota

vsszan59243130932198.jpg

▽混凝土部分©Kazuhisa Kota

vsszan59243130932199.jpg

▽木材部分©Kazuhisa Kota

vsszan592431309321910.jpg

我们在基础上建立起长期规划体系,创造出居住的场所。而通过这座房子,我们思考了建筑是如何随着环境和生活变化而进行适应和改变的。
▽屋顶露台©Kazuhisa Kota

vsszan592431309321911.jpg

▽建筑外观©Kazuhisa Kota

vsszan592431309321912.jpg

▽模型©Office m-sa

vsszan592431309321913.jpg
vsszan592431309321914.jpg

▽区位图©Office m-sa

vsszan592431309321915.jpg

▽一层平面图©Office m-sa

vsszan592431309321916.jpg

▽二层平面图©Office m-sa

vsszan592431309321917.jpg

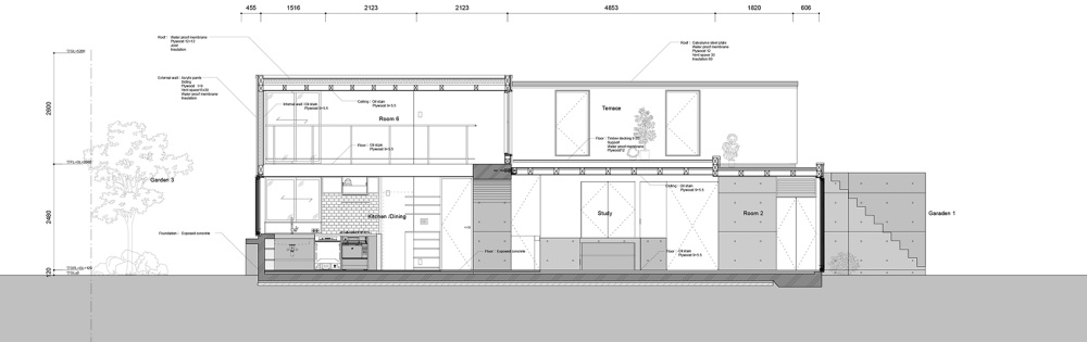
▽剖面图1©Office m-sa

vsszan592431309321918.jpg

▽剖面图2©Office m-sa

vsszan592431309321919.jpg
vsszan592431309321920.jpg
vsszan592431309321921.jpeg
vsszan592431309321922.jpeg
vsszan592431309321923.jpg
vsszan592431309321924.jpg
AI文本分析中……
AI色彩命名中……

序赞Ai时刻等待着你的命令!~

与Ai对话形式持续执行相关Ai智能体任务。

月饼20162022-6-13 21:46:03
谢谢分享,值得学习!!!
您需要登录后才可以回帖 登录 | 注册序赞号

快速回复 返回顶部 返回列表