鸟巢 | YCL Studio | 2022 | 立陶宛
vsszan61826042211531.jpg

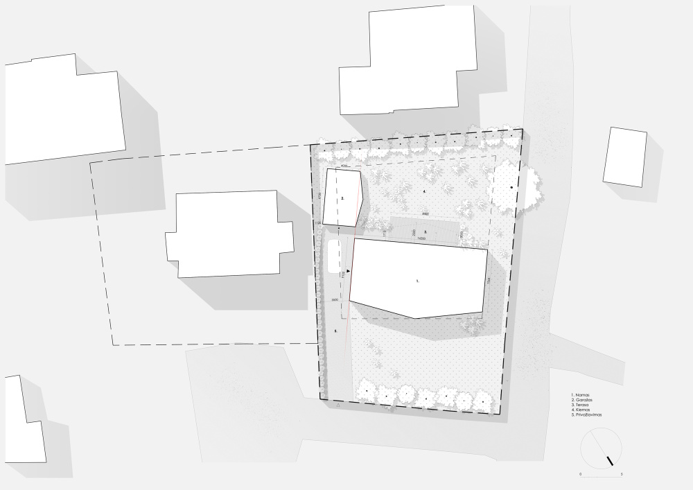
圆窗的房子在维尔纽斯的一个密密麻麻的私人住宅区。 182平方米,一栋两层楼的房子,车库体积很小,形状相同,大小合适,可以放一辆车。 客户的主要愿望是拥有一个不被楼梯隔开的大公共空间。 所以我们选择将楼梯移出房子的主要周边。 这个想法创造了一个有趣的形状,当你在房子周围走动时看起来会有所不同。 有楼梯的房子的北部只有一个圆窗。 它让我们想起了一个新建的鸟舍,等待它的居民。
vsszan61826042211532.jpg
vsszan61826042211533.jpg

整个房子的镜像细节是反映不断变化的环境的错觉,但不是很多,只是一点点。 新房子,新人,阳光,白天和黑夜,只是在镜面细节的雨露中反射的周围环境的一瞥。 在深色的热木外墙中,镜面细节创造出一点点颜色,随着与周围环境的小聊天或对话,它会发生变化并使其与众不同。
vsszan61826042211534.jpg
vsszan61826042211535.jpg
vsszan61826042211536.jpg

车库的体量与邻近的地块形成了私人分隔,但与此同时,在私人院子里拥有一个体量并没有吸引力。 所以我们把它镜像出来,通过幻觉,把院子延伸到平行世界。 它有效,看起来不错,客户喜欢它。
vsszan61826042211537.jpg

内部结构分为楼层。 一楼设有起居区、客用浴室、杂物间和客用工作间。 二楼有三间卧室和两间浴室,与一楼有空隙。 南立面有一个有节奏的窗户图案,这样鸟舍的整体和简洁的形状可以尽可能地保持坚固。
vsszan61826042211538.jpg

与形状的整体组成相对应的悬挂露台屋顶使户外家庭空间即使在下雨时也更有吸引力。 新建房屋的简洁形状在色彩缤纷的环境中清晰可见,易于识别为当代结构,并在旧的私人住宅区中创造了新建筑的新路径。
vsszan61826042211539.jpg
vsszan618260422115310.jpg
vsszan618260422115311.jpg
vsszan618260422115312.jpg
vsszan618260422115313.jpg
vsszan618260422115314.jpg
vsszan618260422115315.jpg
vsszan618260422115316.jpg
vsszan618260422115317.jpg
vsszan618260422115318.jpg
vsszan618260422115319.jpg
vsszan618260422115320.jpg
vsszan618260422115321.jpg
vsszan618260422115322.jpg
vsszan618260422115323.jpg
vsszan618260422115324.jpg
vsszan618260422115325.jpg
vsszan618260422115326.jpg
vsszan618260422115327.jpg
vsszan618260422115328.jpg
vsszan618260422115329.jpg
  • 项目设计:YCL Studio
  • 项目面积:181m²
  • 项目年份:2022
  • 项目摄影:Norbert Tukaj
  • 供应商: Brolis Timber, Sumeda
  • 首席建筑师:Tomas Umbrasas, Aidas Barzda, Tautvydas Vileikis
  • 工程师:Projektų srautas
  • 项目成市:Vilnius
  • 项目国家:Lithuania
    • 转载自:Archdaily
    • 设计师:YCL Studio
    • 图片©YCL Studio
    • 语言:英语
    • 编辑:序赞网
    • 阅读原文
    AI文本分析中……
    AI色彩命名中……

    序赞Ai时刻等待着你的命令!~

    与Ai对话形式持续执行相关Ai智能体任务。

    4220549632022-7-5 00:10:57
    谢谢分享,谢谢分享!
    您需要登录后才可以回帖 登录 | 注册序赞号

    快速回复 返回顶部 返回列表