不同屋顶的住宅 | RC Architects India | 2021 | 印度
vsszan62107071133431.jpg

建筑作为一种科学,源于人类对遮蔽物的基本需要。“家”是最纯粹的设计形式。虽然拥有着现代化的表皮,家的精神所在却是它的永恒性,超越了当下的潮流。除了拥有坚固的墙壁、屋顶、窗户和炉灶的房间之外,其他的都是奢侈的。
vsszan62107071133432.jpg

“不同屋顶的住宅”的场地位于一个密集的社区,在半城市环境中塑造了一种独特的氛围。场地较长的两边被相邻的房子挤压着,短的两边则对着两条平行的街道,不仅为这个住宅提供了光照和通风,也提供了出入的通道。这个项目的设想是在不破坏居民隐私的情况下确保这个住宅最大程度的自然光照和通风。同时尽可能减少在通风方面对人工资源的运用,创造可以为不同人群提供不同活动的空间。
vsszan62107071133433.jpg
vsszan62107071133434.jpg
vsszan62107071133435.jpg

概念
就像名字所表达的那样,不同屋顶的住宅利用了四种屋顶,每种都塑造了不同的空间体验。屋顶由能够导入新鲜空气的天窗和为整个房屋提供自然光的被动式自然采光系统组成。除了防止外部环境以及噪音的干扰外,还在它们内部和周围创造了有趣的空间体验。该设计把握了场地较长侧的两个平行墙和较短侧的街道。通过中央的核心部分,它提供了最大程度的光照。在围绕核心的部分布置了公共空间,将建筑的大部分体块都靠近在场地边缘布置。
vsszan62107071133436.jpg
vsszan62107071133437.jpg

空间
在底层,人们通过一个开敞但顶部有遮盖的外廊进入住宅,可以看到整个街道。它导入了充足的自然光,这些光会继续进入临近的门厅,而在门厅中有一个能够通往二层的楼梯。如果人们继续进入这栋房子,他们会发现从顶部天窗照入的光,并得以窥见前方的花园。被两面外墙限定的客厅空间尽可能地利用了其他两面,一面通过窗户看向大厅,另一面变成了半墙,看向用餐区和外面的花园。厨房位于用餐区的对面,一面是外墙,另一面则是开敞的,并包含了杂物间和共用的厕所。
vsszan62107071133438.jpg
vsszan62107071133439.jpg

公共花园被客厅、厨房还有卧室围绕着,能够全天提供多样的活动。它也在为整个房子提供充足光照和通风方面起到了重要作用。带有私人厕所的卧室在另一面墙上有一个开口,便于交叉通风,并可通往私人花园。
vsszan621070711334310.jpg
vsszan621070711334311.jpg
vsszan621070711334312.jpg

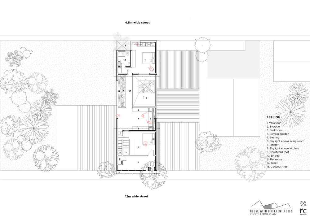
第二层由两个连接着公共平台的卧室组成。这个公共平台是一个半遮蔽的空间,上面有一个松木的格状遮盖,创造了一个富有魅力的空间,使用者可以一起坐在长椅上,把它用作一个聚会的地点。这个空间连接着一个露台,露台上有一些花槽,并且可以俯瞰底层的花园。考虑到平台受到刺眼太阳光的直接照射,平台的墙壁被涂成棕红色,以减少眩光,使其成为一个舒适的居住空间。平台的终点一端是第二间卧室,可以看到两个花园—底层花园和私人格状屋顶花园,此外还可以通过一个角落的窗户看到后街。
  • 文字说明由建筑师提供,由 ArchDaily 翻译及整理。
  • 译者:许佩瑶

vsszan621070711334313.jpg
vsszan621070711334314.jpg
vsszan621070711334315.jpg
vsszan621070711334316.jpg
vsszan621070711334317.jpg
vsszan621070711334318.jpg
vsszan621070711334319.jpg
vsszan621070711334320.jpg
vsszan621070711334321.jpg
vsszan621070711334322.jpg
vsszan621070711334323.jpg
vsszan621070711334324.jpg
vsszan621070711334325.jpg
vsszan621070711334326.jpg
vsszan621070711334327.jpg
vsszan621070711334328.jpg
vsszan621070711334329.jpg
vsszan621070711334330.jpg
vsszan621070711334331.jpg
  • 建筑设计: RC Architects India
  • 面积: 2800 ft²
  • 项目年份:2021
  • 摄影师:Hemant Patil
  • 主持建筑师:Rohan Chavan, Prachi Kadam
  • 结构顾问: Prashant Haval
  • 演示图纸:Rahul Ciby, Nikita Saraf
  • 作者:Shalini Prakash
  • 项目城市:Gadhinglaj
  • 项目国家:印度
    • 转载自:Archdaily
    • 设计师:RC Architects India
    • 图片©RC Architects India
    • 编辑:序赞网
    • 阅读原文
    AI文本分析中……
    AI色彩命名中……

    序赞Ai时刻等待着你的命令!~

    与Ai对话形式持续执行相关Ai智能体任务。

    HZ小青年2024-4-7 10:04:44
    感谢分享!感谢分享!
    您需要登录后才可以回帖 登录 | 注册序赞号

    快速回复 返回顶部 返回列表