海厄姆路之家 | Philip Stejskal Architecture | 2021 | 澳大利亚
vsszan67440230812441.jpg


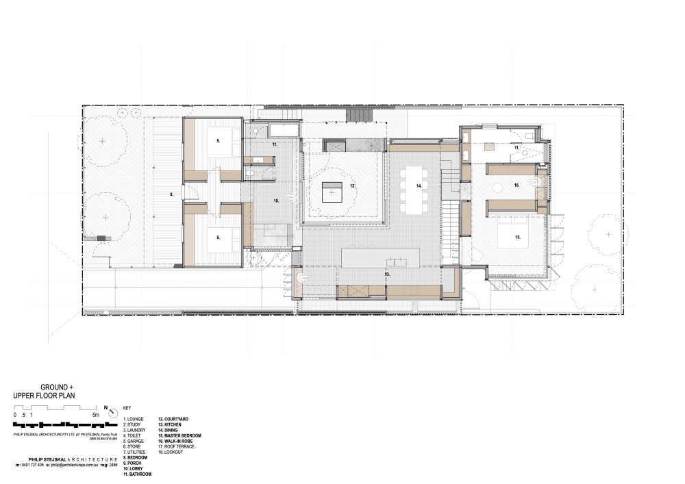
概念框架:项目的基本原则、价值观、核心思想和理念。 这座两居室的工人小屋已经大幅扩建,以适应不断壮大的家庭。 我们的回应是从该地点具有挑战性的地形中得知的; 受损的北面; 捕捉地区观点的潜力; 以及与街道的隐私和连接问题。 该设计通过一系列既独立又相互连接的空间和楼层,通过中央庭院和视觉通透的楼梯,在强烈的空间秩序感中提供了灵活性。
vsszan67440230812442.jpg

公共和文化利益:项目的舒适性及其对公共领域的概念贡献。 我们的客户在装修前就住在这所房子里,与他们希望保留的邻居建立了牢固的联系。 原来的小屋保持了其对街道的适度展示,并拥有一个新的甲板和前花园; 这个户外空间由家庭享受,并促进与路人的互动。 新的高架厨房也与街道和旁边的邻居相连; 可渗透的边界墙使食物可以通过栅栏共享。
vsszan67440230812443.jpg
vsszan67440230812444.jpg
vsszan67440230812445.jpg
vsszan67440230812446.jpg
vsszan67440230812447.jpg

构建形式与上下文的关系:与新的和预先存在的条件相关的概念。 新增建筑尊重周围房屋的规模,材料调色板借鉴了当地的乡土风格。 北部边界的瞭望塔有几个关键功能:它提供了一个室外壁炉和庭院的背景; 它将视线从相邻邻居的墙壁上转移开,并策划了整个地区对弗里曼特尔港的看法。
vsszan67440230812448.jpg

建筑分辨率:根据简报评估的功能性能。 房子在孩子之前受孕,随着时间的推移很容易适应。 厨房附近的靠窗座位目前是一个游乐区; 将来它可能会变成一个阅读角。 厨房和用餐空间通向庭院,提供灵活的娱乐选择。 楼下的客厅舒适而包容,但仍通过开放式楼梯的视线与其他生活空间相连。
vsszan67440230812449.jpg
vsszan674402308124410.jpg

联合学科的整合:其他人的贡献,包括工程师、景观设计师、艺术家和其他专家对结果的贡献。 值得信赖的顾问的贡献对于该项目的成功至关重要。 景观设计提供了大多数房间的室内外连接; 结构工程师详细介绍了轻型支撑结构,水力工程师解决了在分层之间安装管道和管道系统所产生的问题。
vsszan674402308124411.jpg
vsszan674402308124412.jpg

成本/价值结果:与财务问题相关的决策的有效性。 对最少维护的渴望导致在外部使用锌、accoya 木材、Equitone 镶板、夯实混凝土和面砖,以及在内部使用裸石和低碳钢橱柜正面、Paperock、赤土砖、斑点胶合板和天然石材。 这些导致建设成本增加,但随着时间的推移会降低持续运营成本。
vsszan674402308124413.jpg
vsszan674402308124414.jpg

通过设计对环境的好处:庭院周围空间的方向和布置是由被动式太阳能设计原则驱动的。 有目的地放置的开口可提供良好的交叉通风,可操作的屏幕和静态悬垂可根据需要全年保护这些开口。 通过地板下的循环加热和充足的热质量实现稳定的室内温度。 雨水储存在地下车库下方的地下水箱中。 通过即时电力使用点系统提供热水,最大限度地减少浪费。 光伏电池的供应已包含在构建中,它们将很快安装。
vsszan674402308124415.jpg

vsszan674402308124416.jpg
vsszan674402308124417.jpg
vsszan674402308124418.jpg
vsszan674402308124419.jpg
vsszan674402308124420.jpg
vsszan674402308124421.jpg
vsszan674402308124422.jpg
vsszan674402308124423.jpg
vsszan674402308124424.jpg
vsszan674402308124425.jpg
vsszan674402308124426.jpg
vsszan674402308124427.jpg
vsszan674402308124428.jpg
vsszan674402308124429.jpg
vsszan674402308124430.jpg
vsszan674402308124431.jpg
vsszan674402308124432.jpg
vsszan674402308124433.jpg
vsszan674402308124434.jpg
vsszan674402308124435.jpg
vsszan674402308124436.jpg
  • 项目设计:Philip Stejskal Architecture
  • 项目面积:300m²
  • 项目年份:2021
  • 项目摄影:Bo Wong
  • 供应商: Bowral, Eternit Equitone (facade cladding)
  • 项目施工:Portrait Custom Homes
  • 景观设计:Annghi Tran Landscape Architecture Studio
  • 设计团队: Philip Stejskal, Yang Yang Lee
  • 项目成市:North Fremantle
  • 项目国家:Australia
    • 转载自:Archdaily
    • 设计师:Philip Stejskal Architecture
    • 图片©Philip Stejskal Architecture
    • 语言:英语
    • 编辑:序赞网
    • 阅读原文
    AI文本分析中……
    AI色彩命名中……

    序赞Ai时刻等待着你的命令!~

    与Ai对话形式持续执行相关Ai智能体任务。

    您需要登录后才可以回帖 登录 | 注册序赞号

    快速回复 返回顶部 返回列表