181室办公室 | Gibert&Tan | 2022 | 马来西亚
vsszan78436171637431.jpg

这是为一家律师事务所设计的项目,位于吉隆坡市中心的 Damansara Heights 住宅区。该项目涉及再利用一栋 40 年老房子,该房屋已部分拆除,设计后扩大了其原始面积的 50%。 大面积的砖砌结构将现有建筑和新的建筑部分结合在一起,并通过大范围的墙体突起来保护玻璃窗免受阳光的直射,从而增加了热质量。 虽然建筑的外观从街道正面看是整体式的,但两侧立面都是大面积的玻璃,通向一系列口袋式花园,为室内提供充足的自然采光和交叉通风。 从本质上讲,被动冷却方法已被用作核心原则,以优化建筑物的性能并防止大量使用机械空调,同时保持最佳舒适度。
vsszan78436171637432.jpg

除此之外,律师事务所的设计趋势以个性、交流性、健康和灵活性等因素为中心。 我们与高级合伙人密切合作,使我们的设计与公司的工作文化保持一致。 如果由于种种原因私人办公室是律师的永久固定设施,虽然这很明显,但是,这设计初期,协作和连通的概念似乎也是必不可少的。
vsszan78436171637433.jpg
vsszan78436171637434.jpg
vsszan78436171637435.jpg

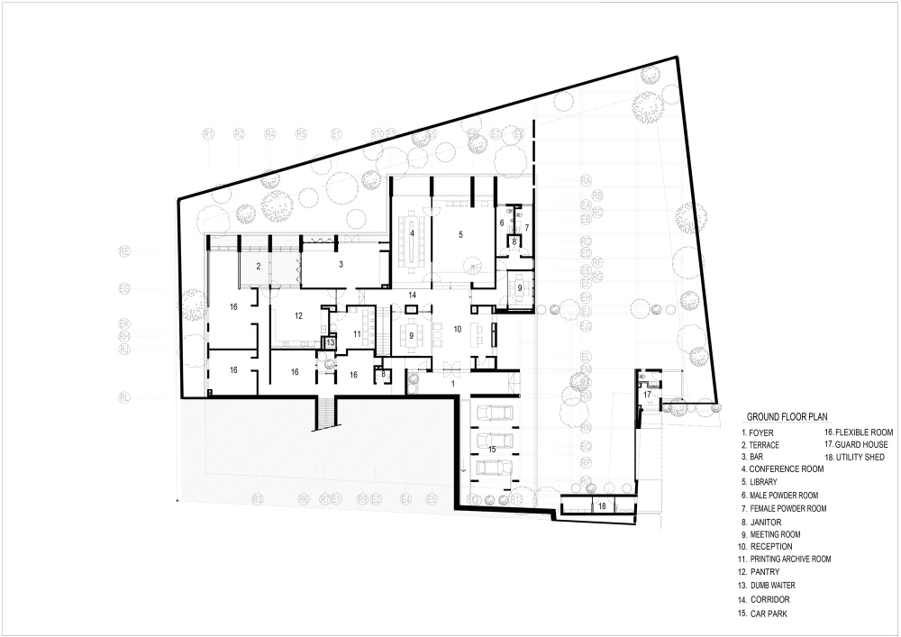
鉴于律师承受的巨大压力,对他们来说,离开办公桌的机会越多越好——被不同的事物(颜色/声音)包围,甚至在小房间里见面或在“咖啡馆”闲逛。 考虑到这一点,主要想法是整合“休憩”空间——例如室内“休息室”或室外空间——以便提供兼顾幸福感的替代工作环境。 因此,各种单元被整合在一起,例如私人会议室、咖啡厅/酒吧、2 个带露台的茶水间,以及一个用于活动和活动的屋顶露台。 上述所有功能设置的位置均战略性的与众多袖珍花园相连,并同时扩展办公室和会议室。 主入口位于地面层。 这里设有客户会议室、会议室、图书馆、茶水间、酒吧、印刷室和一些多功能室,而大部分办公室位于二楼。与周围郁郁葱葱的环境有直接的视觉关系,绿色植物立即将我们带到了远离建筑物外的繁忙城市的遥远宇宙。
vsszan78436171637436.jpg
vsszan78436171637437.jpg
vsszan78436171637438.jpg

建筑的亮点是图书馆,它构成了该空间的焦点。 图书馆在律师事务所中具有重要的象征意义。 因此,它成为建筑组织的核心元素。 对我们来说,它应该是访客到访时的第一个可见元素,这似乎也很合适,因此这不应该只是一个积累和整理书籍的元素,而是一个代表办公室意识形态的元素。 律师的工作本质上是脑力劳动。 它形成于协议和讨论,但它同时也是一项基于人和知识的服务工作。 因此,图书馆可以说是代表了公司客户可用的所有知识汇总。 两层楼的图书馆在功能和视觉上都连接着办公室,从接待处到会议室,再到露台和周围的绿色草坪,而螺旋楼梯将客户带到位于上层的私人会议室,标有“战争” 的房间,是公司重要工作产出的地方。
vsszan78436171637439.jpg

  • 除此之外,大约三分之一的建筑主要规划为多用途房间,旨在出租给个体从业者,同时允许他们接入主要办公基础设施。 这些单元同时允许适应潜在的增长、员工增加和假设因素,现成的空间可以适应未来低成本的变化。 最后,整体内部设计旨在保持清醒和简约。 地板采用定制的预制抛光混凝土板设计,强调了这一方面,外墙的砖块也强化了传统感。 此外, Supereka 工作室设计和挑选的木制品、艺术品和家具的将增加一种对比感,将 181Chambers@Semantan 的主要空间转变为一个真正的画廊,进一步表达公司固有的价值观和稳固性理念。
  • 文字介绍来自建筑师
  • 译者:孙静琳

vsszan784361716374310.jpg
vsszan784361716374311.jpg
vsszan784361716374312.jpg
vsszan784361716374313.jpg
vsszan784361716374314.jpg
vsszan784361716374315.jpg
vsszan784361716374316.jpg
vsszan784361716374317.jpg
vsszan784361716374318.jpg
vsszan784361716374319.jpg
vsszan784361716374320.jpg
vsszan784361716374321.jpg
vsszan784361716374322.jpg
vsszan784361716374323.jpg
  • 建筑师: Gibert&Tan
  • 面积: 633m²
  • 项目年份:2022
  • 摄影师:Pixelaw Photography
  • 厂家: Daikin, GNG Tiles, Hengwood, Legrand, Roca, Siematic, Sunway, Trend Thermal
  • 主创建筑师:Michael Gibert
  • 建筑师:Abhari Ahmat Tidjani, Yong Hon Weng, Lim Pui Er
  • 建筑设计:Gibert&Tan
  • 承包商:TSH Construction
  • 项目城市:Kuala Lumpur
  • 项目国家:马来西亚
    • 转载自:Archdaily
    • 设计师:Gibert\u0026Tan
    • 图片©Gibert\u0026Tan
    • 编辑:序赞网
    • 阅读原文
    AI文本分析中……
    AI色彩命名中……

    序赞Ai时刻等待着你的命令!~

    与Ai对话形式持续执行相关Ai智能体任务。

    95qabc2023-1-17 18:50:25
    谢谢分享!谢谢分享!!!
    您需要登录后才可以回帖 登录 | 注册序赞号

    快速回复 返回顶部 返回列表