Svinninge小屋 | Lowén Widman Arkitekter | 2020 | 瑞典
vsszan79932091658391.jpg

这座房子是基于一个经典的瑞典房子的想法,以当地天然石材、木框架和木立面为坚实基础,简单的山墙屋顶带有可见的山墙图案。 该建筑应被解读为对位于神奇森林山丘上的传统房屋的现代诠释。
vsszan79932091658392.jpg

由于地块有一定的限制尺寸和相对复杂的地面条件,在此基础上的草图过程力求找到最佳位置,同时利用这些条件赋予房屋和地块以自己的特点。 该建筑的设计基于方向和日照条件,但也尽可能地保护了该场地今天所具有的自然场地品质,包括可见的山脉、庄严的松树和未受破坏的森林斜坡。
vsszan79932091658393.jpg
vsszan79932091658394.jpg

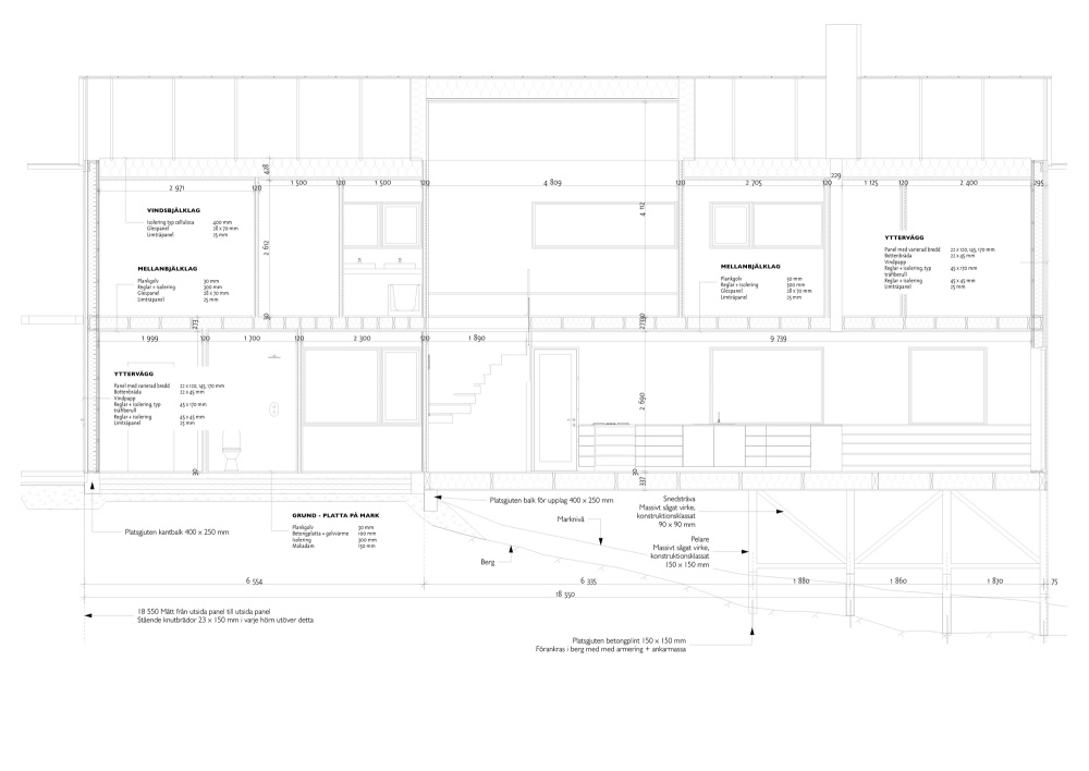
通过拟议的布置,尽可能避免爆破和土方工程,并且由于该物业在同一自然特征的两侧与公地接壤,感觉这是一种使该地点从属的体贴方式。 地基 地基的墙壁是用砖砌成的,它们之间的空间使森林能够在房子下面和旁边自由生长。 凸起的露台实现并强化了这种姿态。
vsszan79932091658395.jpg
vsszan79932091658396.jpg

该地基应被解读为对天然石材地基的当代诠释和柱基的组合,但没有柱基森林。 有了这个基础,您还可以实现完全扩散开放和生态绝缘的房屋框架,墙壁、天花板和托梁可以同样的方式绝缘,并且可以避免石化产品,例如蜂窝塑料。
vsszan79932091658397.jpg
vsszan79932091658398.jpg

地点。 沿坡的位置,在山与松之间的自然洼地的前面,根据我们和详细的计划应该保留的位置,是最好地利用地块的方式。 房子的长方形创造了一个面向开放公共场所和矗立在那里的老 härbret (Stabbur / Hórreo) 的正面。 它还与山和斜坡一起创造了一个背侧,沐浴着早晨的阳光,遮挡着道路和邻居。
vsszan79932091658399.jpg
vsszan799320916583910.jpg
vsszan799320916583911.jpg
vsszan799320916583912.jpg
vsszan799320916583913.jpg
vsszan799320916583914.jpg
vsszan799320916583915.jpg
vsszan799320916583916.jpg
vsszan799320916583917.jpg
vsszan799320916583918.jpg
vsszan799320916583919.jpg
vsszan799320916583920.jpg
vsszan799320916583921.jpg
vsszan799320916583922.jpg
vsszan799320916583923.jpg
vsszan799320916583924.jpg
  • 项目设计:Lowén Widman Arkitekter
  • 项目面积:90m²
  • 项目年份:2020
  • 项目摄影:Erik Levander
  • 供应商: Ekonomistål, Fönsterspecialisten, KL-Panel
  • 建筑工程:ZIZAH
  • 首席建筑师:Daniel Widman, Ulrika Lowén af Franzién
  • 建筑师:Arthur Salonen, Cristian Ernst
  • 项目成市:Svinninge
  • 项目国家:Sweden
    • 转载自:Archdaily
    • 设计师:Lowén Widman Arkitekter
    • 图片©Lowén Widman Arkitekter
    • 语言:英语
    • 编辑:序赞网
    • 阅读原文
    AI文本分析中……
    AI色彩命名中……

    序赞Ai时刻等待着你的命令!~

    与Ai对话形式持续执行相关Ai智能体任务。

    一壶2023-2-10 07:56:39
    优秀设计,谢谢分享,点赞学习
    您需要登录后才可以回帖 登录 | 注册序赞号

    快速回复 返回顶部 返回列表