屋外屋内 | HYLA Architects | 2021 | 新加坡
vsszan84436260856281.jpg

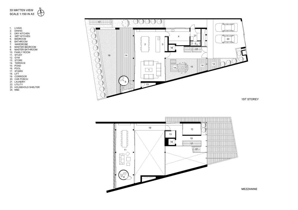
这栋五口之家坐拥高地,后方朝西,视野开阔。 在一条典型的住宅街道上,正面朝东。 设计策略是将起居区和主卧室朝西放置,以利用景观。 这些空间有很深的悬挑或可操作的木屏风,以保护它们免受午后的阳光照射。
vsszan84436260856282.jpg
vsszan84436260856283.jpg
vsszan84436260856284.jpg

在前面,一个 15 米高的前院有一个锦鲤池和特色树,作为公共街道临街的缓冲区。 这个空间被覆盖,但在室外,因为各个侧面都有开口。 它是封闭的,但永久有效地通风。 它对外界来说是私密的,但却是大多数流通发生的房子的公共空间。
vsszan84436260856285.jpg
vsszan84436260856286.jpg
vsszan84436260856287.jpg
vsszan84436260856288.jpg

在后面,泳池甲板被夹层书房遮挡,夹层书房上方充当双容积起居-用餐空间的屏障。 这项研究又受到旋转木屏风的保护,每个叶片由 8 块木材组成。 为了跨越房子的整个宽度,地板通过一对深梁从顶层悬挂下来,这对深梁也作为主卧室的花盆。 在整个房子里,自然被引入并强调空间的二元性。 你是在里面,还是在外面。
vsszan84436260856289.jpg
vsszan844362608562810.jpg
vsszan844362608562811.jpg
vsszan844362608562812.jpg
vsszan844362608562813.jpg
vsszan844362608562814.jpg
vsszan844362608562815.jpg
vsszan844362608562816.jpg
vsszan844362608562817.jpg
  • 项目设计:HYLA Architects
  • 项目面积: 778m²
  • 项目年份:2021
  • 项目摄影: Derek Swalwell
  • 供应商:  AutoDesk, Chaos Group, Bretz, Kawajun, Made & Make, Phylux, Trimble Navigation, Wantai
  • 首席建筑师:Han Loke Kwang
  • 工程师:GCE Consulting Engineers
  • 景观承包商:Nyee Phoe Flower Garden Pte Ltd
  • 主承包商:Emma Groups Construction Pte Ltd
  • 室内:Graceful Décor Pte Ltd
  • 设计团队: Tran Thi Thu Trang, Constans Tan
  • 项目国家: Singapore
    • 转载自:Archdaily
    • 设计师:HYLA Architects
    • 图片©HYLA Architects
    • 语言:英语
    • 编辑:序赞网
    • 阅读原文
    AI文本分析中……
    AI色彩命名中……

    序赞Ai时刻等待着你的命令!~

    与Ai对话形式持续执行相关Ai智能体任务。

    暂时没有评论,你回一个呗!~

    您需要登录后才可以回帖 登录 | 注册序赞号

    快速回复 返回顶部 返回列表