闻堰教堂 | 浙江大学城乡规划设计 | 2023 | 中国

“十字”成为人们崇拜的标识源于早期人类对宇宙世界的天文观测,最早通过直立地表标竿的影子了解天文规律。光是一种安静的力量,光可以打开灵魂的诗意境界,而建筑是捕捉光的容器。闻堰教堂是团队的一次精神空间实践,我们设计的出发点是使其成为“可看到江的教堂”。杭州闻堰是钱塘江、富春江、浦阳江交汇之地,项目位于闻堰街道的钱塘江东侧,毗邻闻堰老街。
▽项目概览©张玉龙

vsszan182679151059541.jpg

闻堰教会的建立始于1921年,1929年冬,由加拿大传教士罗戈登在闻堰创办中华基督教五旬节圣洁会闻家堰福音堂。因历史原因教会活动几经停止恢复,1999年,闻堰基督教会出资拍购位于闻堰新市街180号的繁达商场食品厂房屋作为教堂。这是一个原址更新的项目,老教堂空间狭小,较为破败,当接到设计这样一个仪式之所的邀约时,业主提出原址重新建造的要求,我们试图以一种精神空间的视角去审视和创建这个新的建筑。
▽鸟瞰©张玉龙

vsszan182679151059542.jpg

▽俯视图©张玉龙

vsszan182679151059543.jpg

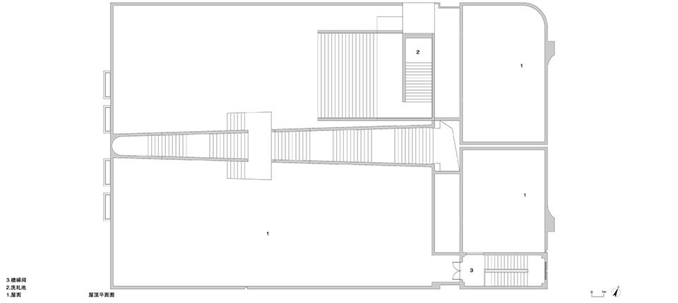
新的教堂建筑旨在营造一个既满足宗教功能与精神性需求、又具艺术属性的空间容器。开放的中轴天梯连接入口广场与屋顶,象征摆脱了束缚,奔向天国。建筑入口颇有仪式感,沿着中轴的阶梯而上,高大入口上泄神圣之光。通过大台阶进入二层的主礼堂,沿着天梯上行到达天台,向西眺钱塘江,在这里可以看到最美日落,落日被视为天堂的曙光。通过天梯完成了仪式感的空间序列,是一次神圣的体验。天梯在引导人们进入教堂的同时,开始探索屋顶的空间。由于高度限制,建筑做半下沉处理,一层布置了办公、活动、储藏、设备等附属功能;主堂设置于二层,透过天梯两侧的屋顶天光,传递造物之福音,局部三层则为牧师办公及设备等功能。
▽东南视角© 汤晓宇

vsszan182679151059544.jpg

▽入口© 汤晓宇

vsszan182679151059545.jpg

▽入口© 汤晓宇

vsszan182679151059546.jpg
vsszan182679151059547.jpg

▽入口© 汤晓宇

vsszan182679151059548.jpg

▽阶梯仰视© 汤晓宇

vsszan182679151059549.jpg

▽入口屋顶细部© 汤晓宇

vsszan1826791510595410.jpg

宗教建筑中营造氛围及塑造神性能够在精神层面指引信徒,对非信徒参观者亦可强调场所特性。建筑在平面布局上回归轴向延伸,采用对称布局的十字经典空间原型。教堂中轴线“天梯”,源自圣经的“雅各的梯子”,寓意通向神圣和幸福的途径。天梯每12级一段,共八段,12蕴含着圣经“十二使徒”的意义。十字符号作为教堂的宗教象征,不仅运用在建筑平面的构成,同时也点缀在建筑的栏杆、雨棚、女儿墙构架等部位,体现了基督宗教特点的指向。
▽屋顶平台© 汤晓宇

vsszan1826791510595411.jpg

▽屋顶平台光影© 汤晓宇

vsszan1826791510595412.jpg
vsszan1826791510595413.jpg
vsszan1826791510595414.jpg

▽底层局部细节© 汤晓宇

vsszan1826791510595415.jpg

▽局部细节© 汤晓宇

vsszan1826791510595416.jpg
vsszan1826791510595417.jpg

▽局部细节© 汤晓宇

vsszan1826791510595418.jpg
vsszan1826791510595419.jpg

作为建筑的外部形象,我们认为它须是纯粹的,立面采用白色水洗石,纯净的外墙增加了一份虔诚的气氛。内部则像充满光的盒子,柔和的光线从侧面窗户照进室内。立面开窗的光线设计营造神性,光线通过大小不一的窗洞投射下来,使室内充满了神秘、宁静,置身其中会感受到神圣与精神力量。
▽室内光影© 汤晓宇

vsszan1826791510595420.jpg
vsszan1826791510595421.jpg

▽室内细部© 汤晓宇

vsszan1826791510595422.jpg
vsszan1826791510595423.jpg

▽室内光影细部© 汤晓宇

vsszan1826791510595424.jpg
vsszan1826791510595425.jpg

▽天窗© 汤晓宇

vsszan1826791510595426.jpg
vsszan1826791510595427.jpg

这里,光影、艺术、建筑、信仰和象征主义在和谐共处,为宗教场所创造了一个独特的精神领域。在阳光游走之间,人们感到静谧和诗意,时间仿佛永恒。
▽十字形开窗© 汤晓宇

vsszan1826791510595428.jpg
vsszan1826791510595429.jpg

▽区位图©浙江大学城乡规划设计研究院有限公司

vsszan1826791510595430.jpg

▽一层平面图© 浙江大学城乡规划设计研究院有限公司

vsszan1826791510595431.jpg

▽二层平面图© 浙江大学城乡规划设计研究院有限公司

vsszan1826791510595432.jpg

▽三层平面图© 浙江大学城乡规划设计研究院有限公司

vsszan1826791510595433.jpg

▽屋顶平面图© 浙江大学城乡规划设计研究院有限公司

vsszan1826791510595434.jpg

▽东立面图© 浙江大学城乡规划设计研究院有限公司

vsszan1826791510595435.jpg

▽南立面图© 浙江大学城乡规划设计研究院有限公司

vsszan1826791510595436.jpg

▽北立面图© 浙江大学城乡规划设计研究院有限公司


▽西立面图© 浙江大学城乡规划设计研究院有限公司

vsszan1826791510595437.jpg

▽剖面图© 浙江大学城乡规划设计研究院有限公司

vsszan1826791510595438.jpg

vsszan1826791510595439.jpg
vsszan1826791510595440.jpg
vsszan1826791510595441.jpg
vsszan1826791510595442.jpg
vsszan1826791510595443.jpg
vsszan1826791510595444.jpg
vsszan1826791510595445.jpg
vsszan1826791510595446.jpg
vsszan1826791510595447.jpg
vsszan1826791510595448.jpg
vsszan1826791510595449.jpg
vsszan1826791510595450.jpg
vsszan1826791510595451.jpg
vsszan1826791510595452.jpg
vsszan1826791510595453.jpg
vsszan1826791510595454.jpg

  • 项目名称:闻堰教堂
  • 项目类型:建筑
  • 设计方:浙江大学城乡规划设计研究院有限公司
  • 公司网站:http://www.zjdxghy.com
  • 联系邮箱:2466604607@qq.com
  • 设计时间:2021-2022年
  • 完成年份:2023年
  • 主持建筑师:龚永平
  • 主创设计:张玉龙
  • 项目成员:邵春俊、刘德志、王飞、王敏舟、余果、金其泉、曾紫晴
  • 项目地址:杭州市萧山区闻堰街道新市街
  • 建筑面积:2035㎡
  • 摄影版权:航拍:张玉龙 摄影:汤晓宇
  • 客户:杭州市萧山区闻堰街道基督教闻堰教堂
  • 材料:水洗石、水磨石、玻璃、金属

AI文本分析中……
AI色彩命名中……

序赞Ai时刻等待着你的命令!~

与Ai对话形式持续执行相关Ai智能体任务。

阿茂_design2023-11-16 09:01:17
感谢分享!感谢分享!
syhgdesign2023-11-17 17:39:32

感谢楼主辛苦分享
您需要登录后才可以回帖 登录 | 注册序赞号

快速回复 返回顶部 返回列表