漫步银座六号店 | Schemata Architects | 2024 | 日本

vsszan109927181643091.jpg

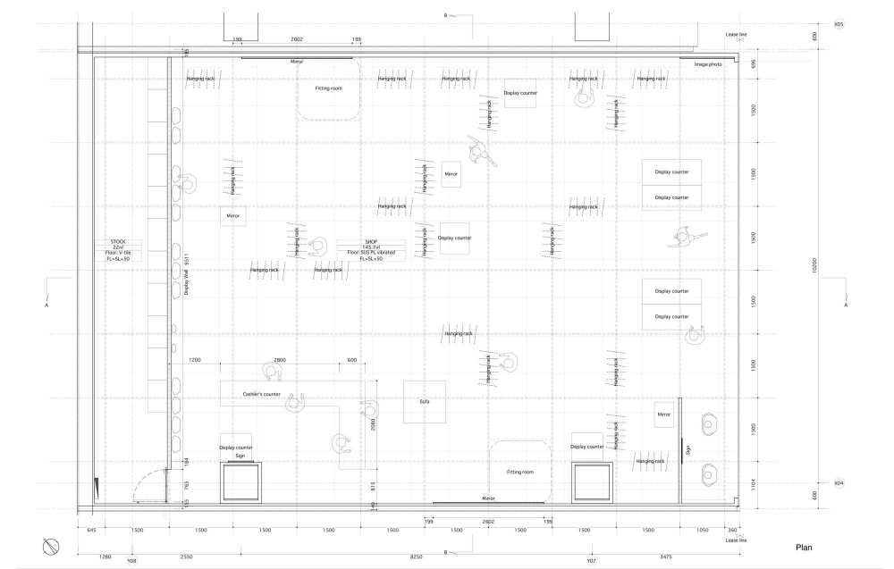
wander提供各种颜色的中性款商品。每件物品都有自己独特的切割和设计,只有当你把它拿在手里时才会注意到,让你每次都能发现新的东西。天花板上悬挂的网格系统用于创建可移动的布局,允许灵活安排照明、衣架、海报、试衣间等。
vsszan109927181643092.jpg

vsszan109927181643093.jpg

vsszan109927181643094.jpg

我们打算为该品牌的所有门店使用一致的系统,同时根据个人环境和目标客户进行定制,让客户享受不同的设计。
vsszan109927181643095.jpg

vsszan109927181643096.jpg

vsszan109927181643097.jpg

GINZA SIX大楼是新店的所在地,拥有高端品牌,吸引了许多海外游客,我们觉得有必要为背景创造一种类似的坚实感。地板主要是在我们之前设计的和漫游商店的砂浆中完成的。这一次,我们决定首次在地板上使用不锈钢,消除了街头的感觉,成功地将品牌推向了下一个阶段。该品牌以自然为主题,始终使用木材作为内饰。这一次,我们放置了红雪松块作为展示装置,以对抗不锈钢的强烈存在。木材的裂缝、凹痕和气味增添了标准材料所缺乏的非凡品质。我们希望延续之前设计的设计精神,将混凝土墙和天花板暴露在外。然而,由于我们无法通过拆除这座建筑的饰面来暴露混凝土,我们使用木纤维水泥板来创造混凝土般的外观。
vsszan109927181643098.jpg

vsszan109927181643099.jpg

此外,在墙上引入了一个由平板和钩子组成的可移动系统,以有效地展示该店受欢迎的袋子,这使得袋子和其他各种形状的小物品可以灵活排列。
vsszan1099271816430910.jpg
vsszan1099271816430911.jpg
vsszan1099271816430912.jpg
vsszan1099271816430913.jpg
vsszan1099271816430914.jpg
vsszan1099271816430915.jpg
vsszan1099271816430916.jpg
vsszan1099271816430917.jpg
vsszan1099271816430918.jpg
vsszan1099271816430919.jpg
vsszan1099271816430920.jpg
vsszan1099271816430921.jpg
vsszan1099271816430922.jpg
vsszan1099271816430923.jpg
vsszan1099271816430924.jpg
  • 项目设计:Jo Nagasaka, Schemata Architects
  • 项目面积: 167m²
  • 项目年份:2024
  • 项目摄影:Nacasa&Partners Inc.
  • 供应商:  Glory
  • 项目建造:Bauhaus Maruei Co., Ltd.
  • Lighting:GLORY
  • 项目团队: Shoichi Sato Keima Yamada
  • 项目成市: Chuo City
  • 项目国家: Japan
    • 转载自:Archdaily
    • 设计师:Schemata Architects
    • 图片©Schemata Architects
    • 语言:英语
    • 编辑:序赞网
    • 阅读原文
    AI文本分析中……
    AI色彩命名中……

    序赞Ai时刻等待着你的命令!~

    与Ai对话形式持续执行相关Ai智能体任务。

    syhgdesign2024-11-19 00:01:44
    感谢楼主辛苦分享   
    您需要登录后才可以回帖 登录 | 注册序赞号

    快速回复 返回顶部 返回列表