上升草地之家 | I/O architects | 2024 | 保加利亚

vsszan111124181926081.jpg

这座独栋住宅位于20世纪20年代的一个历史街区,规划为向邻近城市公园的低密度、小规模过渡。房子的简单体积三面被小庭院环绕。
vsszan111124181926082.jpg

vsszan111124181926083.jpg

vsszan111124181926084.jpg

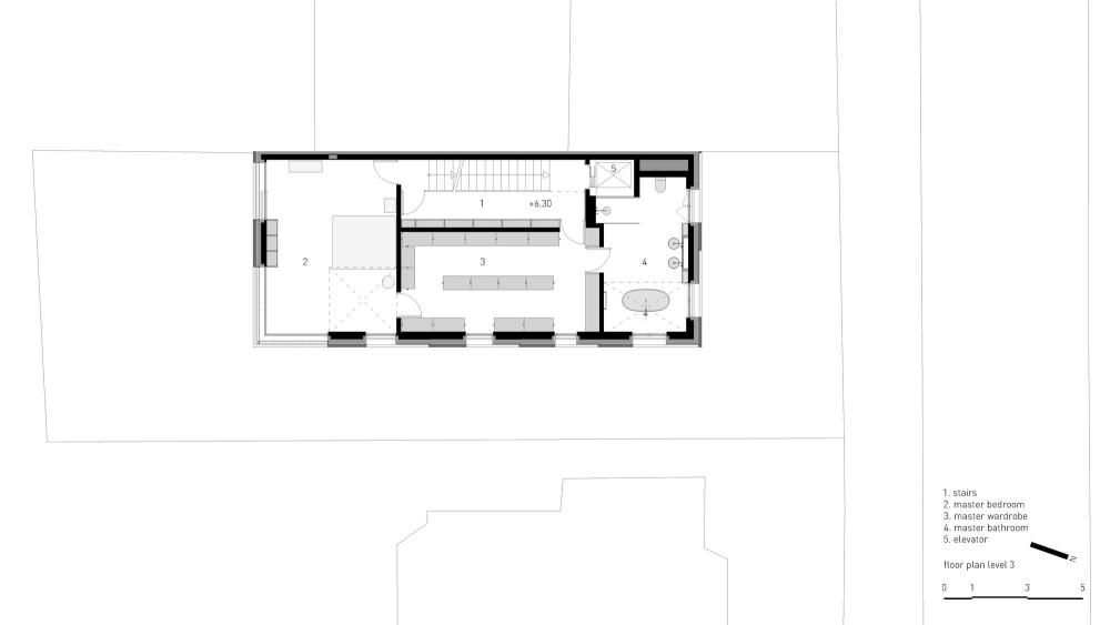
狭长的草侧部分是连接前门庭院和隐藏的亲密后院的关键。为了进入地下停车位,整个草地可以通过液压系统在空中升起。停车场和内院以圆形天窗为中心。立面开口的尺寸从街道向内院逐渐增大。
vsszan111124181926085.jpg

vsszan111124181926086.jpg

vsszan111124181926087.jpg

vsszan111124181926088.jpg

材料采用了附近的标志性历史实例,同时通过降低屋顶材料的线条和在四楼引入镜面玻璃体量,进一步减小了规模。第三层和第四层的主卧室和书房区域通过这些玻璃体量中的空隙相互连接。在第一层,客厅占据了房子的整个空间,向各个方向开放。内部空间以混凝土地板和天花板为主,辅以胡桃木和精细金属元素。
vsszan111124181926089.jpg
vsszan1111241819260810.jpg
vsszan1111241819260811.jpg
vsszan1111241819260812.jpg
vsszan1111241819260813.jpg
vsszan1111241819260814.jpg
vsszan1111241819260815.jpg
vsszan1111241819260816.jpg
vsszan1111241819260817.jpg
vsszan1111241819260818.jpg
vsszan1111241819260819.jpg
vsszan1111241819260820.jpg
vsszan1111241819260821.jpg
vsszan1111241819260822.jpg
vsszan1111241819260823.jpg
vsszan1111241819260824.jpg
vsszan1111241819260825.jpg
vsszan1111241819260826.jpg
vsszan1111241819260827.jpg
vsszan1111241819260828.jpg
vsszan1111241819260829.jpg
vsszan1111241819260830.jpg
vsszan1111241819260831.jpg
vsszan1111241819260832.jpg
vsszan1111241819260833.jpg
vsszan1111241819260834.jpg
  • 项目设计:I/O architects
  • 项目面积: 685m²
  • 项目年份:2024
  • 项目摄影:Assen Emilov
  • 设计团队: iara Jeliazkova, Georgi Katov, Rositsa Hristova, Stefan Apostolov
  • 结构工程: Neo Desk - Petar Chernev
  • 项目成市: Sofia
  • 项目国家: Bulgaria
    • 转载自:Archdaily
    • 设计师:I/O architects
    • 图片©I/O architects
    • 语言:英语
    • 编辑:序赞网
    • 阅读原文
    AI文本分析中……
    AI色彩命名中……

    序赞Ai时刻等待着你的命令!~

    与Ai对话形式持续执行相关Ai智能体任务。

    暂时没有评论,你回一个呗!~

    您需要登录后才可以回帖 登录 | 注册序赞号

    快速回复 返回顶部 返回列表